Active

$560,000

Features:
  • 5 Bedrooms
  • 4 Bathrooms
  • 3416 sq ft
Overview
  • ID: MFRO6323394
  • Bedrooms: 5
  • Bathrooms: 4
  • Size: 3416 sq ft
Property Details
Remarks
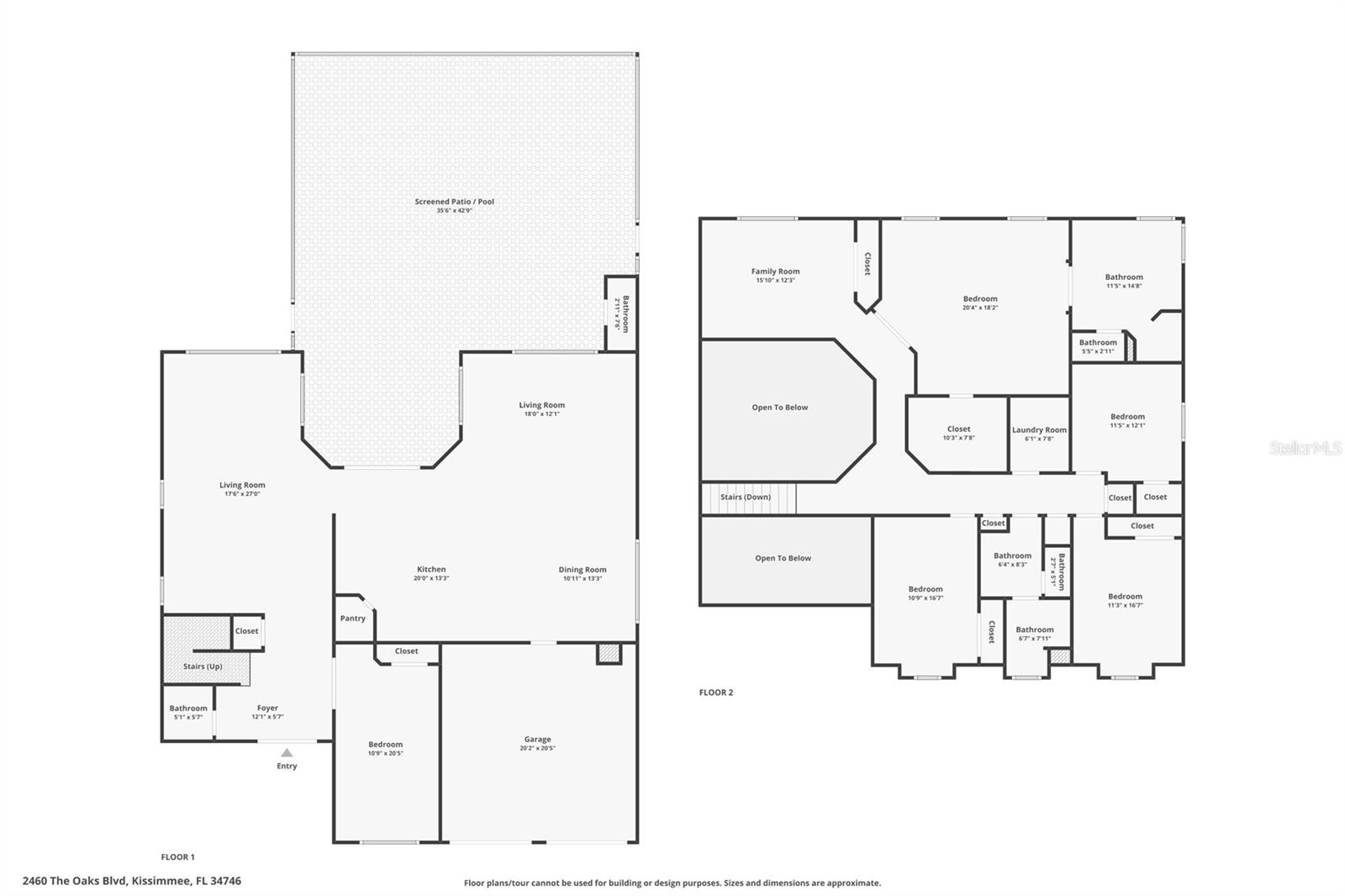
REDUCED PRICE on this stunning 5-bedroom, Pool Home with many upgrades on a Large Corner Lot, Water Views in a Golf Community! Welcome to your dream home in the beautifully established Oaks Golf Community—one of Kissimmee’s most desirable neighborhoods. Nestled among mature trees and manicured fairways, this spacious 5-bedroom, 2 full bath, 2 half bath pool home offers 3,416 sq. ft. of luxury, comfort, and convenience. Situated on a large corner lot, the property boasts private water view and ample space for indoor and outdoor living. Inside, you’ll find a thoughtfully designed layout with recent upgrades and generous living areas. The first floor features a bedroom, Luxury Vinyl and Tile flooring throughout, and a gourmet kitchen equipped with newer 2024 stainless steel appliances. The kitchen opens to the dining room, family room, and direct access to the Great Room, perfect for entertaining guests. Upstairs, all flooring was replaced with Luxury Vinyl and upgraded baseboards. The large loft with a closet is ideal for a workout area, gaming, or a family room. The primary suite is a serene retreat with a spa-like en-suite bath featuring dual sinks and a newly tiled shower to complete fresh new look upgrade, the primary has an expansive walk-in closet with shelving. Three additional bedrooms, a large laundry room, and an upgraded guest bathroom complete the second floor. Recent upgrades include a 2025 A/C Downstairs unit, 2023 A/C Upstairs unit, 2025 Stove, 2024 refrigerator, 2024 microwave, 2024 dishwasher, 2024 dryer, 2021 Roof, 2021 Hot water heater and two new garage door openers (2024). Bathrooms have been remodeled with upgraded fixtures and tile between 2022 and 2023. Enjoy year-round outdoor living in the private screened-in pool overlooking tranquil water view, surrounded by lush landscaping. Two half baths one in the pool area and one indoors, offer convenience for family and guests. The Oaks community is a serene, amenity-rich golf community ideal for families and retirees alike. With expansive green space, championship golf, private pool homes, and proximity to both nature and city life—it delivers a perfect blend of lifestyle and convenience in the heart of Kissimmee.. Minutes from popular destinations, you can explore The Loop for shopping, dining, and movies; stroll along the Lake Tohopekaliga waterfront; or visit Shingle Creek Regional Park for kayaking, biking, and bird-watching. With easy access to US-192, John Young Parkway, and the Florida Turnpike, you’re less than 30 minutes from Orlando International Airport, Lake Nona Medical City, and Walt Disney World Resort. Whether seeking a primary residence, second home, or investment, 2460 The Oaks Blvd offers a rare opportunity to live comfortably while enjoying everything Central Florida has to offer.
Financial Considerations
Price:
$560,000
HOA Fee:
280
Tax Amount:
$455
Price per SqFt:
$163.93
Tax Legal Description:
OAKS PHASE 1 B-1 PB 11 PG 146-154 LOT 370
Exterior Features
Lot Size:
12197
Lot Features:
Corner Lot, City Limits, Landscaped, Near Golf Course, Oversized Lot, Sidewalk, Paved
Waterfront:
No
Parking Spaces:
N/A
Parking:
Driveway, Garage Door Opener
Roof:
Shingle
Pool:
Yes
Pool Features:
In Ground, Lighting, Screen Enclosure
Interior Features
Bedrooms:
5
Bathrooms:
4
Heating:
Central, Electric
Cooling:
Central Air
Appliances:
Dishwasher, Dryer, Electric Water Heater, Microwave, Refrigerator, Washer
Furnished:
No
Floor:
Ceramic Tile, Luxury Vinyl
Levels:
Two
Additional Features
Property Sub Type:
Single Family Residence
Style:
N/A
Year Built:
2003
Construction Type:
Block, Concrete, Stucco
Garage Spaces:
Yes
Covered Spaces:
N/A
Direction Faces:
East
Pets Allowed:
Yes
Special Condition:
None
Additional Features:
Lighting, Rain Gutters, Sidewalk, Sliding Doors
Additional Features 2:
Please refer to the community HOA office, covenants, deeds, and restrictions. Buyer to verify with HOA.
Map
  • Address
    2460 THE OAKS BLVD
Contact a Professional
Why Choose Us?
  • Communication and Transparency
  • Skilled Negotiation
  • Robust Professional Network
  • After-Sale Support
Featured Properties

Related Properties

avt
Daniel Dourado
$ 550,000
avt
Daniel Dourado
$ 462,990
avt
Daniel Dourado
$ 850,000
avt
Daniel Dourado
$ 299,995
avt
Daniel Dourado
$ 375,000
avt
Daniel Dourado
$ 399,999
avt
Daniel Dourado
$ 499,000
avt
Daniel Dourado
$ 990,000