Active

$655,000

Features:
  • 6 Bedrooms
  • 4 Bathrooms
  • 2812 sq ft
Overview
  • ID: MFRO6250874
  • Bedrooms: 6
  • Bathrooms: 4
  • Size: 2812 sq ft
Property Details
Remarks
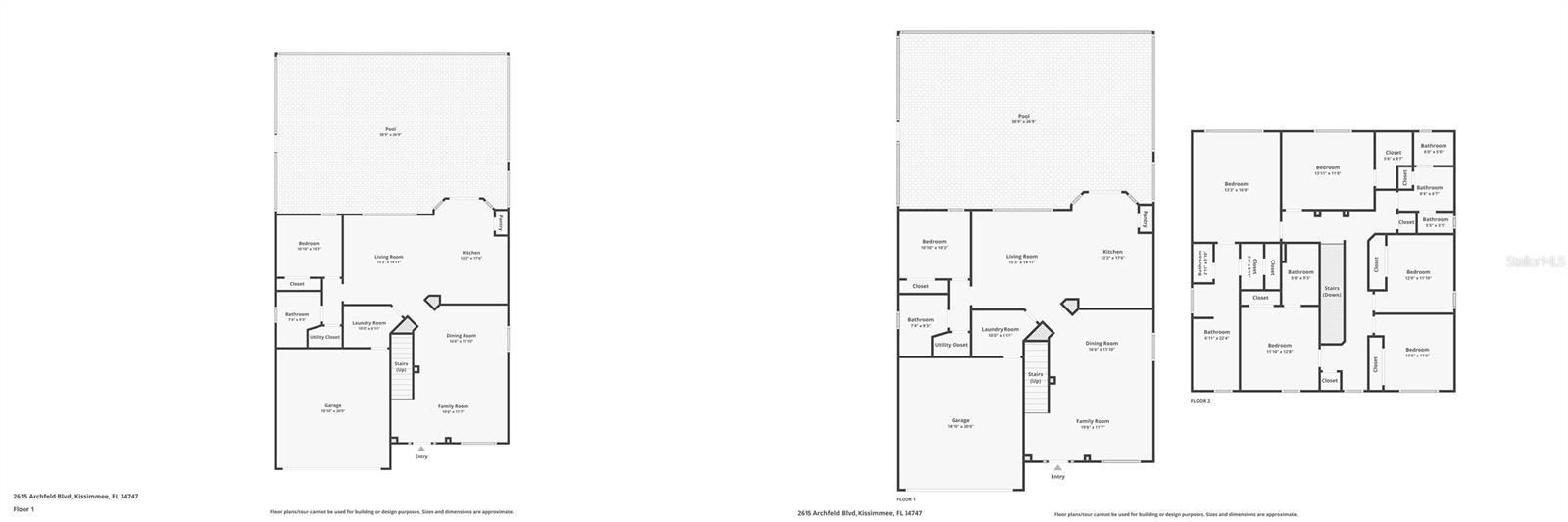
Fresh Exterior Paint! This stunning two-story, fully furnished home, located at 2615 Archfeld Blvd in Kissimmee, FL 34747, welcomes you with an impressive Mediterranean-style exterior, featuring a tile roof and elegant architectural details. Inside, the spacious kitchen boasts rich wood cabinetry, granite countertops, and stainless steel appliances, perfect for culinary enthusiasts. The open-concept layout flows seamlessly into the cozy living area, complete with a luxurious sectional, stylish light fixtures, and large windows that flood the space with natural light. Designed for both elegance and functionality, this home is perfect for entertaining. Neutral tones and archways create a warm and inviting ambiance, while tile flooring throughout adds a sleek touch to the modern design. The beautifully manicured lawn, with palm trees and lush landscaping, provides a serene setting ideal for enjoying Florida’s sunny weather. Located in the sought-after Windsor Hills Resort, you'll experience the magic of Walt Disney World just minutes away. As the closest vacation rental resort to Disney, Windsor Hills offers top-notch amenities and large, comfortable accommodations. Guests enjoy access to Sir Windsor's Waterpark, a resort-style pool, clubhouse, fitness center, sports courts, games room, movie theatre, marketplace & grill, community playgrounds, and regular clubhouse events. The 24/7 guard-gated community ensures peace of mind, providing a memorable and unforgettable vacation experience for all guests. This home is perfect for those seeking a blend of style, comfort, and relaxation in a highly desirable neighborhood—ready to enjoy from day one, as it comes fully furnished.
Financial Considerations
Price:
$655,000
HOA Fee:
1516.06
Tax Amount:
$6238.26
Price per SqFt:
$232.93
Tax Legal Description:
WINDSOR HILLS PH 6 PB 19 PG 78-82 LOT 122
Exterior Features
Lot Size:
9235
Lot Features:
N/A
Waterfront:
No
Parking Spaces:
N/A
Parking:
N/A
Roof:
Tile
Pool:
Yes
Pool Features:
Heated, In Ground, Screen Enclosure
Interior Features
Bedrooms:
6
Bathrooms:
4
Heating:
Central
Cooling:
Central Air
Appliances:
Dishwasher, Disposal, Dryer, Microwave, Range, Refrigerator, Washer
Furnished:
No
Floor:
Carpet, Ceramic Tile
Levels:
Two
Additional Features
Property Sub Type:
Single Family Residence
Style:
N/A
Year Built:
2008
Construction Type:
Brick, Stucco
Garage Spaces:
Yes
Covered Spaces:
N/A
Direction Faces:
West
Pets Allowed:
Yes
Special Condition:
None
Additional Features:
Irrigation System, Sidewalk, Sliding Doors
Additional Features 2:
Buyers are responsible to confirm by referencing the HOA CCR, by contacting the HOA management company and/or municipality.
Map
  • Address
    2615 ARCHFELD BLVD
Contact a Professional
Why Choose Us?
  • Communication and Transparency
  • Skilled Negotiation
  • Robust Professional Network
  • After-Sale Support
Featured Properties

Related Properties

avt
Daniel Dourado
$ 324,900
avt
Daniel Dourado
$ 440,000
avt
Daniel Dourado
$ 335,350
avt
Daniel Dourado
$ 529,000
avt
Daniel Dourado
$ 399,900
avt
Daniel Dourado
$ 465,000
avt
Daniel Dourado
$ 525,000
avt
Daniel Dourado
$ 840,000