Active

$309,900

Features:
  • 2 Bedrooms
  • 3 Bathrooms
  • 1350 sq ft
Overview
  • ID: MFRG5104082
  • Bedrooms: 2
  • Bathrooms: 3
  • Size: 1350 sq ft
Property Details
Remarks
Resort living at it's finest located just 4 miles to Disney, and just blocks from the famous Old Town & Fun Spot Park! Sitting on one of the most desirable lots in the neighborhood, you'll have a non-obstructed, waterfront, back yard view of the community amenities, including water park, pool, outside bar, and clubhouse! No more wondering if the pool is packed, just look out of your back window before you head down! The units with this view have always held more value in both resale and short term rental rates. So whether you're looking for a 2nd home, an AirBnb investment, or full time resort living, you'll have piece of mind knowing that you own one of the best views in this gated community! Community includes an on-site restaurant, mini market, fitness center, tennis, pool, water slide, and a pool side bar. This home is in great condition and comes fully furnished for a turn key experience! Kitchen includes granite countertops and stainless steel appliances. Both bedrooms are upstairs and each come with a full bathroom. One of the bathrooms have been fully renovated with a modern design! The large lanai includes a private hot tub; perfect for relaxing while enjoying the amazing views this unit offers! Great rental history with positive cash flow. Others are for sale, but THIS one "takes the cake"!
Financial Considerations
Price:
$309,900
HOA Fee:
1305
Tax Amount:
$3912.64
Price per SqFt:
$229.56
Tax Legal Description:
REGAL OAKS AT OLD TOWN PB 19 PG 135-146 LOT 226
Exterior Features
Lot Size:
1481
Lot Features:
N/A
Waterfront:
No
Parking Spaces:
N/A
Parking:
N/A
Roof:
Tile
Pool:
No
Pool Features:
N/A
Interior Features
Bedrooms:
2
Bathrooms:
3
Heating:
Central
Cooling:
Central Air
Appliances:
Dishwasher, Dryer, Microwave, Range, Refrigerator, Washer
Furnished:
No
Floor:
Carpet, Ceramic Tile
Levels:
Two
Additional Features
Property Sub Type:
Townhouse
Style:
N/A
Year Built:
2014
Construction Type:
Block, Stucco, Frame
Garage Spaces:
No
Covered Spaces:
N/A
Direction Faces:
East
Pets Allowed:
No
Special Condition:
None
Additional Features:
Lighting, Sidewalk, Sliding Doors
Additional Features 2:
N/A
Map
  • Address
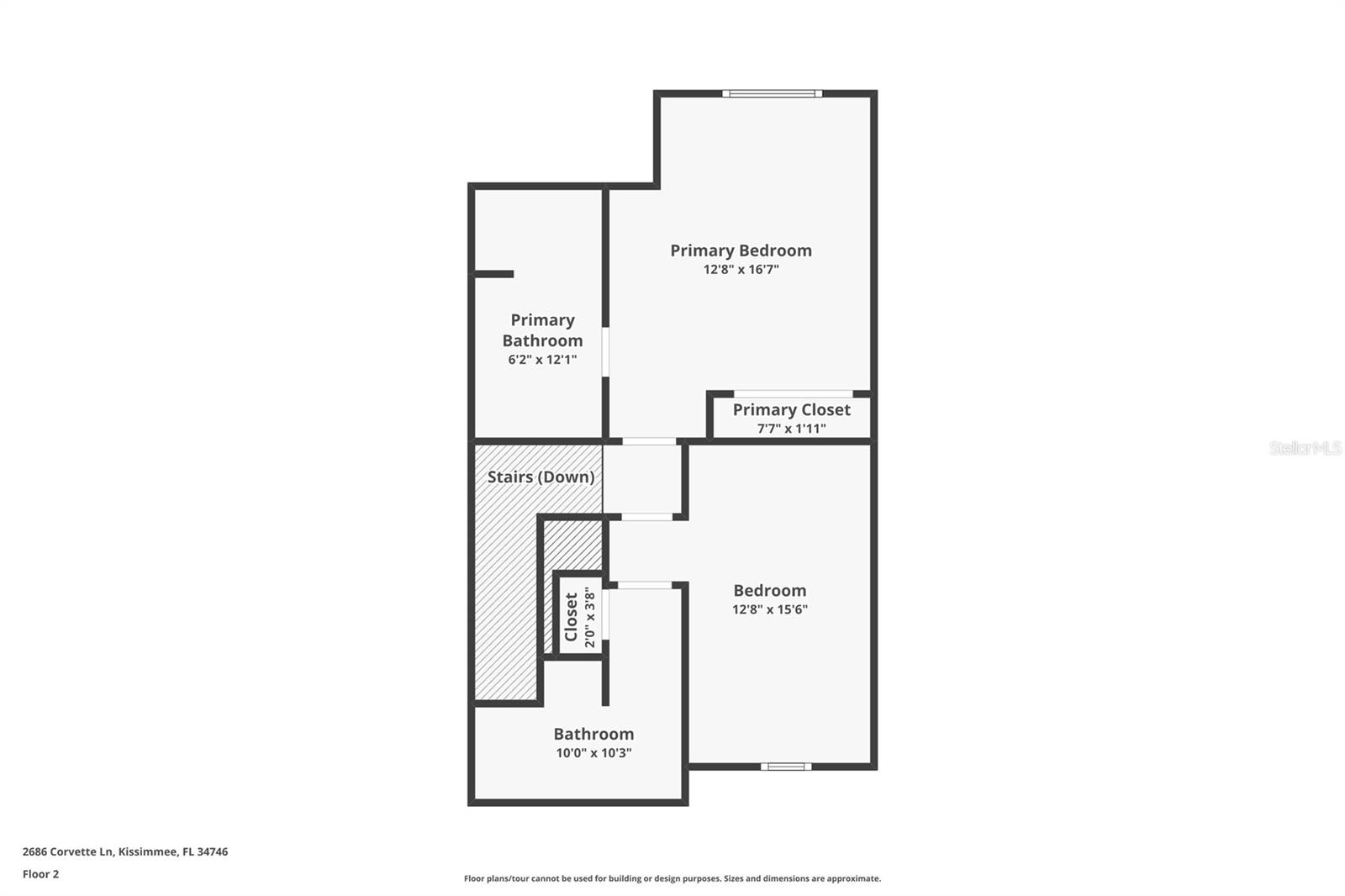
    2686 CORVETTE LN
Contact a Professional
Why Choose Us?
  • Communication and Transparency
  • Skilled Negotiation
  • Robust Professional Network
  • After-Sale Support
Featured Properties

Related Properties

avt
Daniel Dourado
$ 265,000
img
  • Featured
  • Active
Townhouse

4256 CHESTER SPRINGS BLVD

  • 3
  • 3
  • 157 m²
avt
Daniel Dourado
$ 289,390
img
  • Featured
  • Active
Townhouse

3322 PLEASANT WILLOW CT

  • 3
  • 3
  • 158 m²
avt
Daniel Dourado
$ 295,000
img
  • Featured
  • Active
Townhouse

10774 SUNSET RIDGE LN

  • 3
  • 4
  • 212 m²
avt
Daniel Dourado
$ 399,000
avt
Daniel Dourado
$ 285,000
avt
Daniel Dourado
$ 231,900
avt
Daniel Dourado
$ 237,440
img
  • Featured
  • Active
Townhouse

2952 LUCAYAN HARBOUR CIR #106

  • 3
  • 2
  • 120 m²
avt
Daniel Dourado
$ 288,999
avt
Daniel Dourado
$ 315,000
img
  • Featured
  • Active
Townhouse

6024 PARKSIDE MEADOW DR

  • 2
  • 3
  • 124 m²
avt
Daniel Dourado
$ 319,500
avt
Daniel Dourado
$ 615,000
avt
Daniel Dourado
$ 965,000