Active

$1,699,900

Features:
  • 3 Bedrooms
  • 3 Bathrooms
  • 2320 sq ft
Overview
  • ID: MFRTB8419883
  • Bedrooms: 3
  • Bathrooms: 3
  • Size: 2320 sq ft
Property Details
Remarks
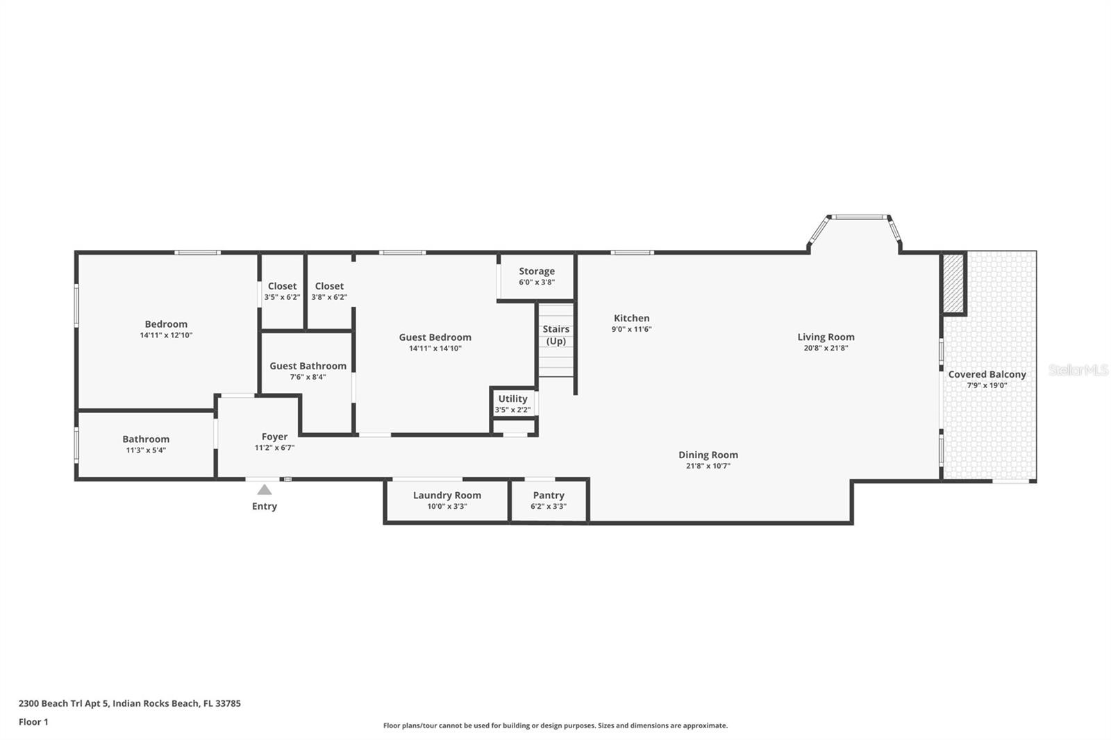
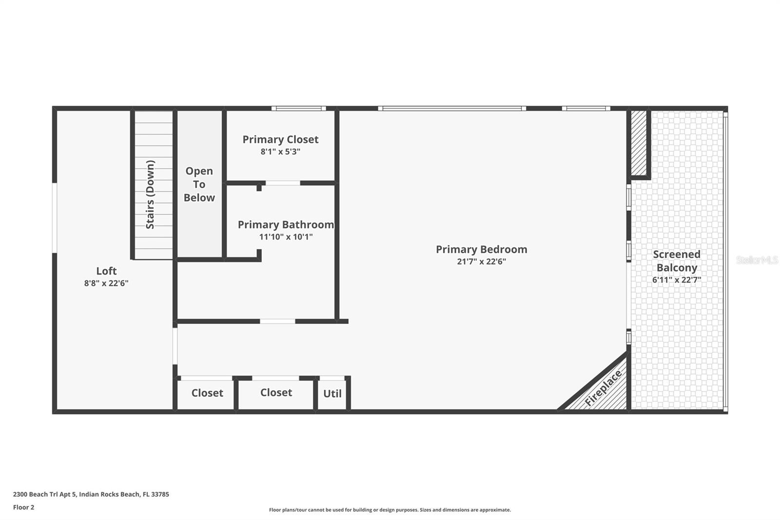
.. Updated Direct Gulf-front two-story Penthouse Condominium with Private 27' x 21' Roof Top/ Patio/ Sundeck with Gulf Views.. Private boutique six-unit complex. One-of-a-kind beautifully updated three-bedroom/ three-bath two-story penthouse condominium with 2,320 square feet of pure joy. Owners have updated with great care making every room its own sanctuary. Kitchen, floors, baths all updated and ready for immediate occupancy. One of only a few IRB – Gulf-front condominiums with a private rooftop patio. First floor enjoys a direct gulf-front great room with over 600 square feet with kitchen - Dining area and Living room all fronted by a 19 X 7.5 Gulf-Front Balcony. Both floors are complete with side Bay Windows adding additional long-range water views. First floor of penthouse also has two spacious guest bedrooms - one is En-suite with updated bath, spa tub and another next to hallway with updated Full Bath. Brazilian-engineered hardwood floors flow through the whole household beautifully complementing this beach home. The owner's primary suite takes up 75% of the second floor with a 25-by-21-foot bedroom fronted by a gulf-front 21-by-7-foot balcony plus bay windows with sweeping long-range water views. Updated 10 X 11.10 Main Bath with walk-in shower with built-in bench plus 9-foot vanity with dual Decolav Seagrass Glass Vessel Basins – one walk-in closet and three smaller 5' X 28" closets in main hallway. The entry loft stairs to access the top floor open to a finished 22.6 X 8.8 Parlor Room with seating and a 5' X 3' Wet Bar with sink, Wine Refrigerator and overhead Cabinets where you access owner's suite on one side and your Private Rooftop Patio/ Sundeck with wonderful street and water views on the other side. Just a unique sunning and entertaining area you rarely find along our waterfront. Welcome to Indian Rocks Beach. A small close-knit waterfront community with plenty of restaurants, cafes and nightlife all within a short distance. Pets OK. Two-week minimum rental makes this an ideal full-time residence or part-time beach getaway for the family with good beach rental income potential. Immediate showings available. Enjoy the tour - floorplans and photos. No water intrusion ever in entire complex".. Immediate Showings Available.
Financial Considerations
Price:
$1,699,900
HOA Fee:
N/A
Tax Amount:
$17901.17
Price per SqFt:
$732.72
Tax Legal Description:
BEACH TRAIL VILLAS A CONDO UNIT 5 TOGETHER WITH THE USE OF PARKING SPACES 5 & 5
Exterior Features
Lot Size:
9450
Lot Features:
N/A
Waterfront:
Yes
Parking Spaces:
N/A
Parking:
Assigned, Guest
Roof:
Built-Up, Membrane
Pool:
No
Pool Features:
N/A
Interior Features
Bedrooms:
3
Bathrooms:
3
Heating:
Central, Electric
Cooling:
Central Air
Appliances:
Dishwasher, Disposal, Dryer, Exhaust Fan, Microwave, Range, Refrigerator, Washer
Furnished:
Yes
Floor:
Tile, Wood
Levels:
Two
Additional Features
Property Sub Type:
Condominium
Style:
N/A
Year Built:
1983
Construction Type:
Block, Stucco
Garage Spaces:
No
Covered Spaces:
N/A
Direction Faces:
East
Pets Allowed:
No
Special Condition:
None
Additional Features:
Balcony, Hurricane Shutters, Private Mailbox, Sliding Doors
Additional Features 2:
Refer To Rules & Regs
Map
  • Address
    2300 BEACH TRL #5
Contact a Professional
Why Choose Us?
  • Communication and Transparency
  • Skilled Negotiation
  • Robust Professional Network
  • After-Sale Support
Featured Properties

Related Properties

avt
Daniel Dourado
$ 548,000
avt
Daniel Dourado
$ 1,499,000
img
  • Featured
  • Active
Condominium

2074 SUNSET POINT RD #137

  • 4
  • 2
  • 147 m²
avt
Daniel Dourado
$ 309,000
img
  • Featured
  • Active
Condominium

450 KNIGHTS RUN AVE #902

  • 3
  • 3
  • 218 m²
avt
Daniel Dourado
$ 1,595,000
avt
Daniel Dourado
$ 895,000
avt
Daniel Dourado
$ 575,000
avt
Daniel Dourado
$ 1,348,000
img
  • Featured
  • Active
Condominium

301 S BUNGALOW PARK AVE #C

  • 2
  • 2
  • 117 m²
avt
Daniel Dourado
$ 365,000
img
  • Featured
  • Active
Condominium

1000 BOULEVARD OF THE ARTS #903

  • 2
  • 3
  • 176 m²
avt
Daniel Dourado
$ 2,129,000
avt
Daniel Dourado
$ 325,000
avt
Daniel Dourado
$ 214,500
avt
Daniel Dourado
$ 209,900