Active

$245,000

Features:
  • 3 Bedrooms
  • 2 Bathrooms
  • 1296 sq ft
Overview
  • ID: MFRTB8499862
  • Bedrooms: 3
  • Bathrooms: 2
  • Size: 1296 sq ft
Property Details
Remarks
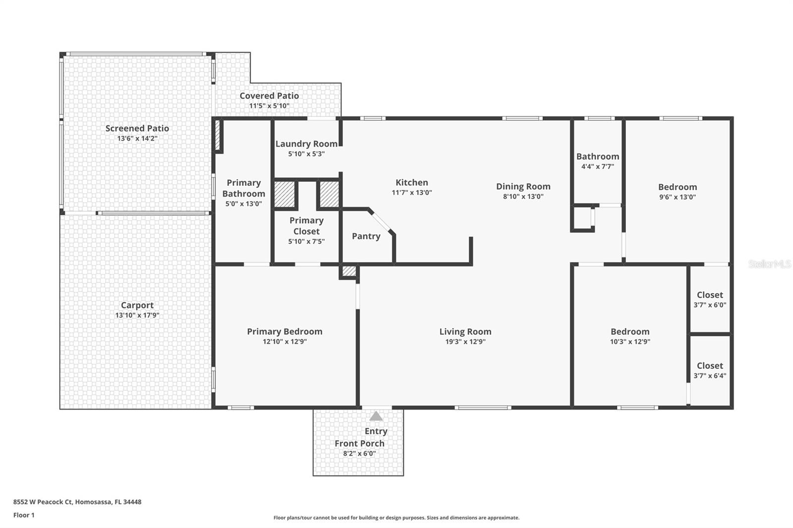
Tucked away in the heart of Florida’s Nature Coast, this canal-front retreat offers a rare chance to enjoy true waterfront living in the Chassahowitzka area. With direct access from your backyard to the Chassahowitzka River, you can spend your days kayaking, boating, or exploring the crystal-clear springs—including the well-known Seven Sisters—just a short ride away. This 3-bedroom, 2-bath home features a bright, open layout with thoughtful updates throughout. Recent improvements include new flooring and interior paint, giving the home a clean, refreshed feel. The spacious kitchen offers plenty of storage and workspace, flowing easily into the dining and living areas—ideal for everyday living or hosting guests. Previously used as a vacation rental, the property also presents a strong opportunity for income or a seasonal getaway. Outdoors is where this property truly shines. Enjoy your private canal frontage with a newly built wood deck, retention wall, and covered boathouse, creating a perfect setup for waterfront relaxation and easy access to the water . The screened patio provides a comfortable space to unwind while taking in the peaceful surroundings. Located in the quiet community of Chassahowitzka Village, this home offers a unique blend of natural beauty, recreation, and laid-back coastal living. Whether you're searching for a full-time residence, weekend escape, or investment property, this one delivers a lifestyle that’s hard to find. Experience the best of Old Florida—right from your own backyard.
Financial Considerations
Price:
$245,000
HOA Fee:
N/A
Tax Amount:
$2257.74
Price per SqFt:
$189.04
Tax Legal Description:
CHASSAHOWITZKA VLG UNIT 3 UNREC SUB LOT 12 BLK G SW 1/4 OF SE 1/4 SEC 26-20-17 :COMM SE COR SW 1/4 OF SE 1/4 SEC 26-20-17 TH S 89DEG 53M 10S W AL S LN OF SD SEC 26 DIST 50 FT TH N 0DEG 01M 40S E PAR E LN OF SD SW 1/4 OF SE 1/4 DIST 50 FT TH S 89DEG 5 3M 10S W PAR S LN OF SD SEC 26 DIST 1213.84 FT TO POINT THAT BEARS N 89DEG 53M 10S E 50 FT AND N 50 FT FROM SW COR OF SE 1/4 OF SEC 26-20-17 TH N PAR TO W LN OF SD SE 1/4 DIST 459.60 FT TH N 89DEG 53M 20S E 168.54 FT TO POB TH CONT N 89DEG 53M 20S E 81 FT TH S 1DEG 22M 30S E 35.40 FT MOL TO WATERS OF CANAL TH S 89DEG 07M 10S W AL SD WATERS 80.98 FT TO POINT THAT BEARS S 1DEG 22M 30S E FROM POB TH N 1DEG 22M 30S W 84.49 FT MOL TO POB DESC IN OR BK 1234 PG 2320 OR BK 2052 PG 1413 OR BK 2095 PG 50
Exterior Features
Lot Size:
6153
Lot Features:
Flood Insurance Required, Paved
Waterfront:
Yes
Parking Spaces:
N/A
Parking:
N/A
Roof:
Metal, Shingle
Pool:
No
Pool Features:
N/A
Interior Features
Bedrooms:
3
Bathrooms:
2
Heating:
Central, Electric
Cooling:
Central Air
Appliances:
Microwave, Range, Refrigerator
Furnished:
Yes
Floor:
Vinyl
Levels:
One
Additional Features
Property Sub Type:
Manufactured Home
Style:
N/A
Year Built:
1992
Construction Type:
Vinyl Siding
Garage Spaces:
No
Covered Spaces:
N/A
Direction Faces:
East
Pets Allowed:
No
Special Condition:
None
Additional Features:
Private Mailbox, Private Yard
Additional Features 2:
Please verify with county for any leasing restrictions.
Map
  • Address
    8552 W PEACOCK CT
Contact a Professional
Why Choose Us?
  • Communication and Transparency
  • Skilled Negotiation
  • Robust Professional Network
  • After-Sale Support
Featured Properties

Related Properties

avt
Daniel Dourado
$ 395,000
avt
Daniel Dourado
$ 345,000
avt
Daniel Dourado
$ 419,900
avt
Daniel Dourado
$ 255,000
avt
Daniel Dourado
$ 250,000
avt
Daniel Dourado
$ 250,000
avt
Daniel Dourado
$ 224,900
avt
Daniel Dourado
$ 539,000
avt
Daniel Dourado
$ 240,000
avt
Daniel Dourado
$ 279,900
avt
Daniel Dourado
$ 215,000
avt
Daniel Dourado
$ 459,900