Active

$1,100,000

Features:
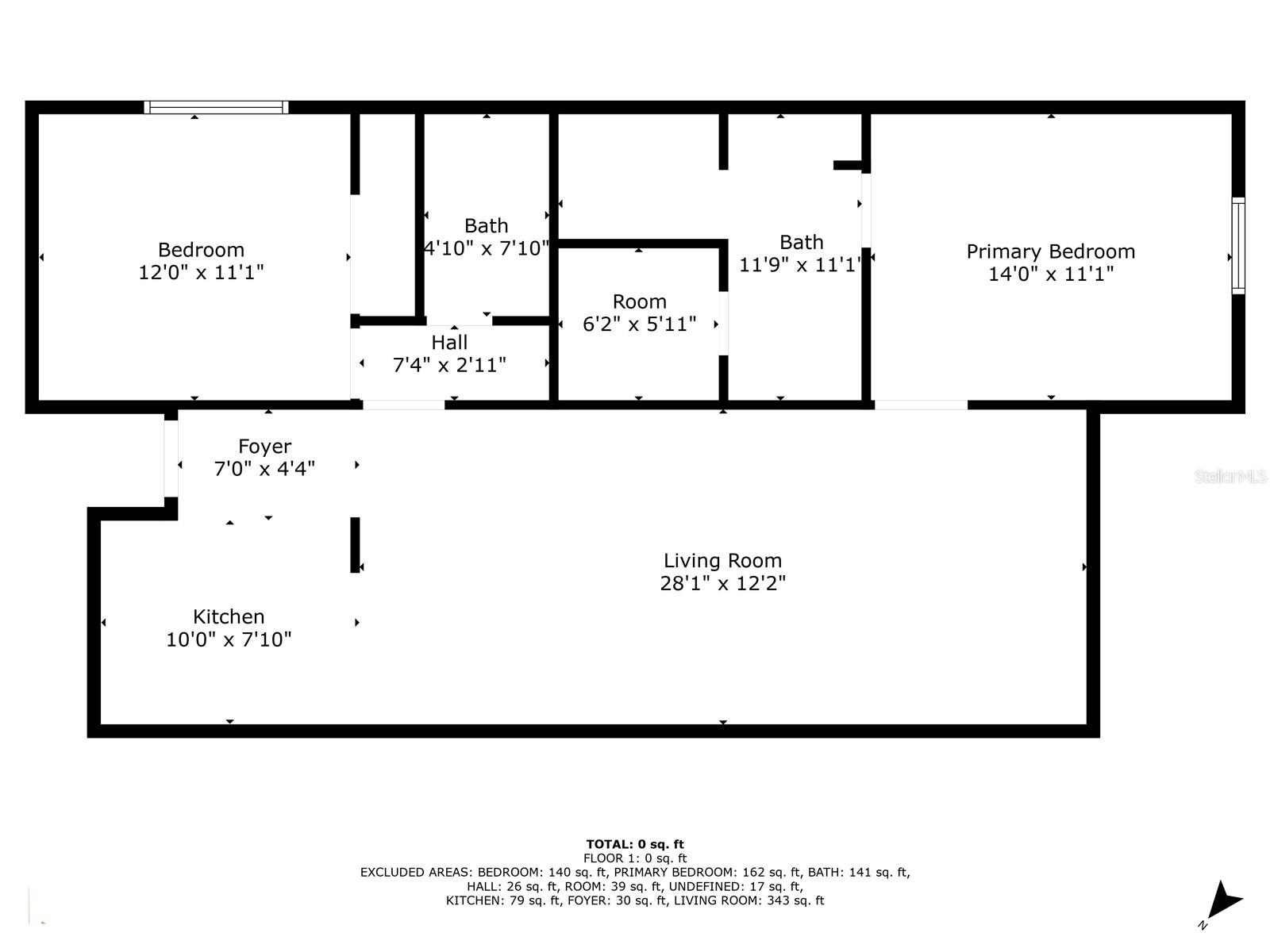
  • 2 Bedrooms
  • 2 Bathrooms
  • 1081 sq ft
Overview
  • ID: MFRA4630434
  • Bedrooms: 2
  • Bathrooms: 2
  • Size: 1081 sq ft
Property Details
Remarks
Gulf front condo at the Nautilus! Rarely available SW corner unit offering you unparalleled Gulf views and breathtaking sunsets. Pet friendly - owners are allowed to have dogs or cats. On site amenities include a pickle ball/tennis court and a heated pool for use throughout the year. The condo did receive damage from Hurricane Helene and has been professionally remediated. The unit is being offered AS-IS with plans for drywall and the AC to be reinstalled in the coming weeks. Electric has been replaced. Here is your opportunity to transform a blank slate into your dream coastal getaway or a lucrative investment property. One of the few condo complexes in Holmes Beach where weekly rentals are permitted. Schedule your private showing today!
Financial Considerations
Price:
$1,100,000
HOA Fee:
N/A
Tax Amount:
$12394.69
Price per SqFt:
$1017.58
Tax Legal Description:
APT 112 NAUTILUS OF HOLMES BEACH CONDOMINIUM ASSOCIATION INC PI #71723.1060/4
Exterior Features
Lot Size:
0
Lot Features:
N/A
Waterfront:
Yes
Parking Spaces:
N/A
Parking:
N/A
Roof:
Membrane
Pool:
No
Pool Features:
Heated, In Ground
Interior Features
Bedrooms:
2
Bathrooms:
2
Heating:
Electric
Cooling:
Central Air
Appliances:
Exhaust Fan
Furnished:
No
Floor:
Other
Levels:
One
Additional Features
Property Sub Type:
Condominium
Style:
N/A
Year Built:
1973
Construction Type:
Block, Stucco
Garage Spaces:
No
Covered Spaces:
N/A
Direction Faces:
West
Pets Allowed:
No
Special Condition:
None
Additional Features:
Lighting, Other, Outdoor Grill, Sidewalk
Additional Features 2:
See city ordinances. No board approval for renters
Map
  • Address
    7100 GULF DR #112
Contact a Professional
Why Choose Us?
  • Communication and Transparency
  • Skilled Negotiation
  • Robust Professional Network
  • After-Sale Support
Featured Properties

Related Properties

img
  • Featured
  • Active
Condominium

2525 MAITLAND CROSSING WAY #305

  • 2
  • 2
  • 93 m²
avt
Daniel Dourado
$ 215,000
avt
Daniel Dourado
$ 255,000
avt
Daniel Dourado
$ 550,000
avt
Daniel Dourado
$ 599,000
avt
Daniel Dourado
$ 450,000
avt
Daniel Dourado
$ 482,500
img
  • Featured
  • Active
Condominium

6750 GULF OF MEXICO DR #154

  • 2
  • 2
  • 133 m²
avt
Daniel Dourado
$ 569,000
avt
Daniel Dourado
$ 280,000
avt
Daniel Dourado
$ 1,150,000
img
  • Featured
  • Active
Condominium

1921 MONTE CARLO DR #603

  • 2
  • 2
  • 158 m²
avt
Daniel Dourado
$ 500,000
avt
Daniel Dourado
$ 349,000
avt
Daniel Dourado
$ 1,750,000