Active

$875,000

Features:
  • 3 Bedrooms
  • 3 Bathrooms
  • 2342 sq ft
Overview
  • ID: MFRO6256607
  • Bedrooms: 3
  • Bathrooms: 3
  • Size: 2342 sq ft
Property Details
Remarks
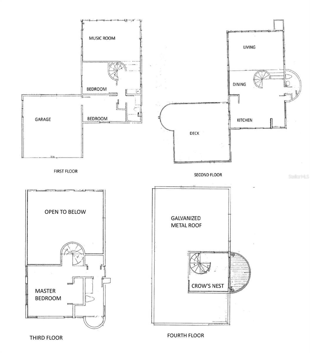
With its unparalleled architectural beauty, breath-taking panoramic views, and seamless blend of luxury and nature, 5311 NW 98th Terrace isn’t just a home—it's a private retreat offering the ultimate Florida lifestyle. Want to know more?! 1. ARCHITECTURAL DESIGN: This post-modern, multi-level home was inspired by Frank Lloyd Wright's designs and designed by Tom Tonnelier, a famous architect in Gainesville, offering a "treehouse" aesthetic with extensive use of natural materials and seamless integration into its wooded setting. Its unique design emphasizes light, space and connection to nature offering a luxurious and unique living experience. 2. EXCLUSIVE AMENITIES: The property boasts a heated 40-foot lap pool within a multi-story screened enclosure. Situated on nearly two acres of wooded land, an abundance of large windows and natural light, high ceilings, multiple decks and balconies, ensures that the property provides stunning lake views and an immersive connection to nature. 3. SPACIOUS LUXURIOUS LIVING: With over 2,300 square feet of living space spread across 4 levels, excluding the 400 square foot main screened deck area and double car garage, the home includes a sunken lounge, open-concept living and dining areas, and a top-floor observatory. The primary suite features a spa-like ensuite bathroom with a freestanding tub and a two-story rain shower and takes up the entire 3rd floor. While the music room, guest bedrooms and guest bathroom, a occupy the 1st floor. 4. MODERN CONVENIENCES: The home is fully outfitted with modern conveniences, including a built-in elevator. It boasts high-end appliances, luxury flooring, and a stunning showcase spiral staircase spanning all four floors. Additional features include granite countertops and custom wood cabinetry. 5. FURNISHED: The home is being sold fully furnished less items which are personal to the seller. 6. FLOOD ZONE X: Unlike many Florida properties, this home is situated in a Flood Zone X, providing peace of mind for buyers concerned about climate risks. 7. LOCATION: An upscale, highly sought-after neighborhood, located just 19 minutes from the University of Florida and 23 minutes from Gainesville Airport; other nearby amenities include Devil’s Millhopper Geological State Park and San Felasco Hammock Preserve State Park, Hunter's Crossing shopping center, UF Health Shands Hospital and more, offering a balanced lifestyle, offering both tranquility and accessibility to urban conveniences.
Financial Considerations
Price:
$875,000
HOA Fee:
650
Tax Amount:
$4950.19
Price per SqFt:
$373.61
Tax Legal Description:
THE HAMMOCK PB J-1 LOT 39 OR 2366/0027
Exterior Features
Lot Size:
0
Lot Features:
N/A
Waterfront:
Yes
Parking Spaces:
N/A
Parking:
N/A
Roof:
Metal
Pool:
Yes
Pool Features:
Deck, Heated, In Ground, Lap
Interior Features
Bedrooms:
3
Bathrooms:
3
Heating:
Central, Heat Pump, Other
Cooling:
Central Air, Mini-Split Unit(s)
Appliances:
Bar Fridge, Built-In Oven, Cooktop, Dishwasher, Disposal, Electric Water Heater, Microwave, Range Hood, Refrigerator
Furnished:
Yes
Floor:
Luxury Vinyl, Tile, Wood
Levels:
Three Or More
Additional Features
Property Sub Type:
Single Family Residence
Style:
N/A
Year Built:
1993
Construction Type:
Cedar, Wood Frame, Wood Siding
Garage Spaces:
Yes
Covered Spaces:
N/A
Direction Faces:
North
Pets Allowed:
Yes
Special Condition:
None
Additional Features:
Balcony, Sliding Doors
Additional Features 2:
N/A
Map
  • Address
    5311 NW 98TH TER
Contact a Professional
Why Choose Us?
  • Communication and Transparency
  • Skilled Negotiation
  • Robust Professional Network
  • After-Sale Support
Featured Properties

Related Properties

avt
Daniel Dourado
$ 419,000
avt
Daniel Dourado
$ 993,870
avt
Daniel Dourado
$ 339,000
avt
Daniel Dourado
$ 390,000
avt
Daniel Dourado
$ 560,000
avt
Daniel Dourado
$ 339,000
avt
Daniel Dourado
$ 214,900
avt
Daniel Dourado
$ 339,990
avt
Daniel Dourado
$ 425,000
avt
Daniel Dourado
$ 399,290