Active

$335,000

Features:
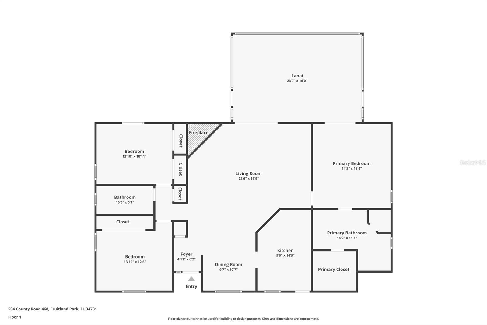
  • 3 Bedrooms
  • 2 Bathrooms
  • 1685 sq ft
Overview
  • ID: MFRG5109850
  • Bedrooms: 3
  • Bathrooms: 2
  • Size: 1685 sq ft
Property Details
Remarks
Welcome to your own private slice of Florida paradise! Situated on a spacious half-acre lot with no HOA, this beautifully maintained home offers the perfect blend of comfort, privacy, and convenience in one of Fruitland Park’s most desirable locations. Enjoy exclusive access to Crystal Lake, your very own private lake just steps away. Take a peaceful stroll down to the pavilion, unwind as you watch stunning Florida sunsets, and experience the beauty of local wildlife right from your backyard. This is the kind of setting that truly makes every day feel like a retreat. Inside, the home welcomes you with a warm and inviting atmosphere. The cozy living room features a natural gas fireplace—perfect for relaxing on cool mornings—while the layout offers both comfort and functionality for everyday living. Step outside to the large screened porch, an ideal space to enjoy breezy spring afternoons, entertain guests, or simply take in the quiet surroundings year-round. Located just minutes from the Fruitland Park Library and The Villages, you’ll have quick access to shopping, dining, and entertainment, all while enjoying the charm of a peaceful, small-town environment with a friendly neighborhood feel. This home has been well built and thoughtfully cared for, with updates throughout. For added peace of mind, the seller is offering a brand-new roof to be installed with an acceptable contract, making this an incredible opportunity for buyers looking for both value and long-term security. With so much already done, this home is truly move-in ready for the right buyer. If you’ve been searching for a property that combines location, lifestyle, and lasting quality, this is it. Come experience the beauty, tranquility, and convenience—Florida living at its absolute best.
Financial Considerations
Price:
$335,000
HOA Fee:
N/A
Tax Amount:
$2603
Price per SqFt:
$198.81
Tax Legal Description:
FRUITLAND PARK BEG AT NE COR OF BLK 52 & RUN W 150 FT S 28DEG 29MIN W TO LAKE & PT A BEG AGAIN AT POB & RUN S 95 FT W'LY 186.21 FT S 28DEG 29MIN E TO LAKE NW'LY ALONG LAKE TO PT A PB 3 PGS 8-9 ORB 3690 PG 438 ORB 5169 PG 292
Exterior Features
Lot Size:
20349
Lot Features:
Corner Lot, City Limits, Level, Near Golf Course
Waterfront:
No
Parking Spaces:
N/A
Parking:
Covered, Driveway, Garage Door Opener, Guest, Off Street, On Street, Open, Oversized, Basement, Workshop in Garage
Roof:
Shingle
Pool:
No
Pool Features:
N/A
Interior Features
Bedrooms:
3
Bathrooms:
2
Heating:
Central
Cooling:
Central Air
Appliances:
Convection Oven, Dishwasher, Disposal, Dryer, Electric Water Heater, Ice Maker, Microwave, Refrigerator, Washer
Furnished:
Yes
Floor:
Carpet, Tile
Levels:
One
Additional Features
Property Sub Type:
Single Family Residence
Style:
N/A
Year Built:
1988
Construction Type:
Block, Brick, Stucco
Garage Spaces:
Yes
Covered Spaces:
N/A
Direction Faces:
West
Pets Allowed:
No
Special Condition:
None
Additional Features:
Fire Pit, Hurricane Shutters, Lighting, Rain Gutters, Sprinkler Metered, Storage
Additional Features 2:
N/A
Map
  • Address
    504 COUNTY ROAD 468
Contact a Professional
Why Choose Us?
  • Communication and Transparency
  • Skilled Negotiation
  • Robust Professional Network
  • After-Sale Support
Featured Properties

Related Properties

avt
Daniel Dourado
$ 429,999
avt
Daniel Dourado
$ 429,000
avt
Daniel Dourado
$ 425,000
avt
Daniel Dourado
$ 210,000
avt
Daniel Dourado
$ 649,900
avt
Daniel Dourado
$ 420,000
avt
Daniel Dourado
$ 339,500
avt
Daniel Dourado
$ 249,900
avt
Daniel Dourado
$ 340,000
avt
Daniel Dourado
$ 279,000
avt
Daniel Dourado
$ 320,000