Active

$339,000

Features:
  • 3 Bedrooms
  • 2 Bathrooms
  • 1300 sq ft
Overview
  • ID: MFRGC536210
  • Bedrooms: 3
  • Bathrooms: 2
  • Size: 1300 sq ft
Property Details
Remarks
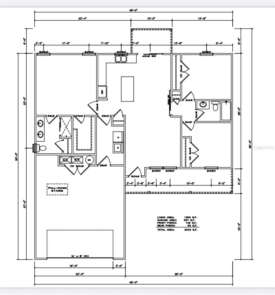
Under Construction. NEW CONSTRUCTION to be completed the end of March 2026. This beautifully designed 3-bedroom, 2-bath home offers both style and function in a serene Fort White setting. Featuring an open-concept floor plan, the main living areas are finished with durable and stylish luxury vinyl plank flooring, creating a seamless and inviting space for everyday living and entertaining. The open concept floor plan brings everything and everyone together. Enjoy this beautiful kitchen featuring granite counters, stainless steel appliances and solid wood cabinets with soft close doors and drawers along with an island providing additional space for entertaining. The spacious primary suite is a true retreat, complete with a large walk-in closet, and a spa-inspired ensuite bath featuring a tiled walk-in shower and dual vanities. The two additional bedrooms are located on the opposite side of the home and share a well-appointed bathroom with a stylish tiled shower. A centrally located laundry room between the kitchen and 2-car garage adds convenience, and the back porch provides the perfect spot for outdoor entertaining or quiet mornings surrounded by nature. Located in the sought after community of Fort White Station on just a half an acre, this home is just minutes from Downtown High Springs with the benefit of Columbia County taxes! Whether you're seeking a peaceful primary residence or a weekend escape near Florida's springs and rivers, this thoughtfully built home delivers comfort, quality, and timeless appeal. Just 25 minutes to Gainesville and 20 minutes to Lake City, this is the perfect retreat from everyday work life to the country.
Financial Considerations
Price:
$339,000
HOA Fee:
N/A
Tax Amount:
$197
Price per SqFt:
$260.77
Tax Legal Description:
LOT 23 FORT WHITE STATION S/D. 666-262, 701-276, 829-2186, WD 1026-1589, WD 1318-2685, WD 1417-2464,
Exterior Features
Lot Size:
21780
Lot Features:
N/A
Waterfront:
No
Parking Spaces:
N/A
Parking:
N/A
Roof:
Shingle
Pool:
No
Pool Features:
N/A
Interior Features
Bedrooms:
3
Bathrooms:
2
Heating:
Electric
Cooling:
Central Air
Appliances:
Dishwasher, Microwave, Range, Refrigerator
Furnished:
Yes
Floor:
Luxury Vinyl
Levels:
One
Additional Features
Property Sub Type:
Single Family Residence
Style:
N/A
Year Built:
2026
Construction Type:
Cement Siding
Garage Spaces:
Yes
Covered Spaces:
N/A
Direction Faces:
West
Pets Allowed:
No
Special Condition:
None
Additional Features:
Lighting
Additional Features 2:
N/A
Map
  • Address
    288 SW CABOOSE DR
Contact a Professional
Why Choose Us?
  • Communication and Transparency
  • Skilled Negotiation
  • Robust Professional Network
  • After-Sale Support
Featured Properties

Related Properties

avt
Daniel Dourado
$ 440,000
avt
Daniel Dourado
$ 1,795,000
avt
Daniel Dourado
$ 698,500
avt
Daniel Dourado
$ 353,500
avt
Daniel Dourado
$ 429,000
avt
Daniel Dourado
$ 2,200,000
avt
Daniel Dourado
$ 629,000
avt
Daniel Dourado
$ 650,000
avt
Daniel Dourado
$ 644,900
avt
Daniel Dourado
$ 425,000
avt
Daniel Dourado
$ 600,000
avt
Daniel Dourado
$ 475,000