Active

$895,000

Features:
  • 3 Bedrooms
  • 2 Bathrooms
  • 1570 sq ft
Overview
  • ID: MFRD6145143
  • Bedrooms: 3
  • Bathrooms: 2
  • Size: 1570 sq ft
Property Details
Remarks
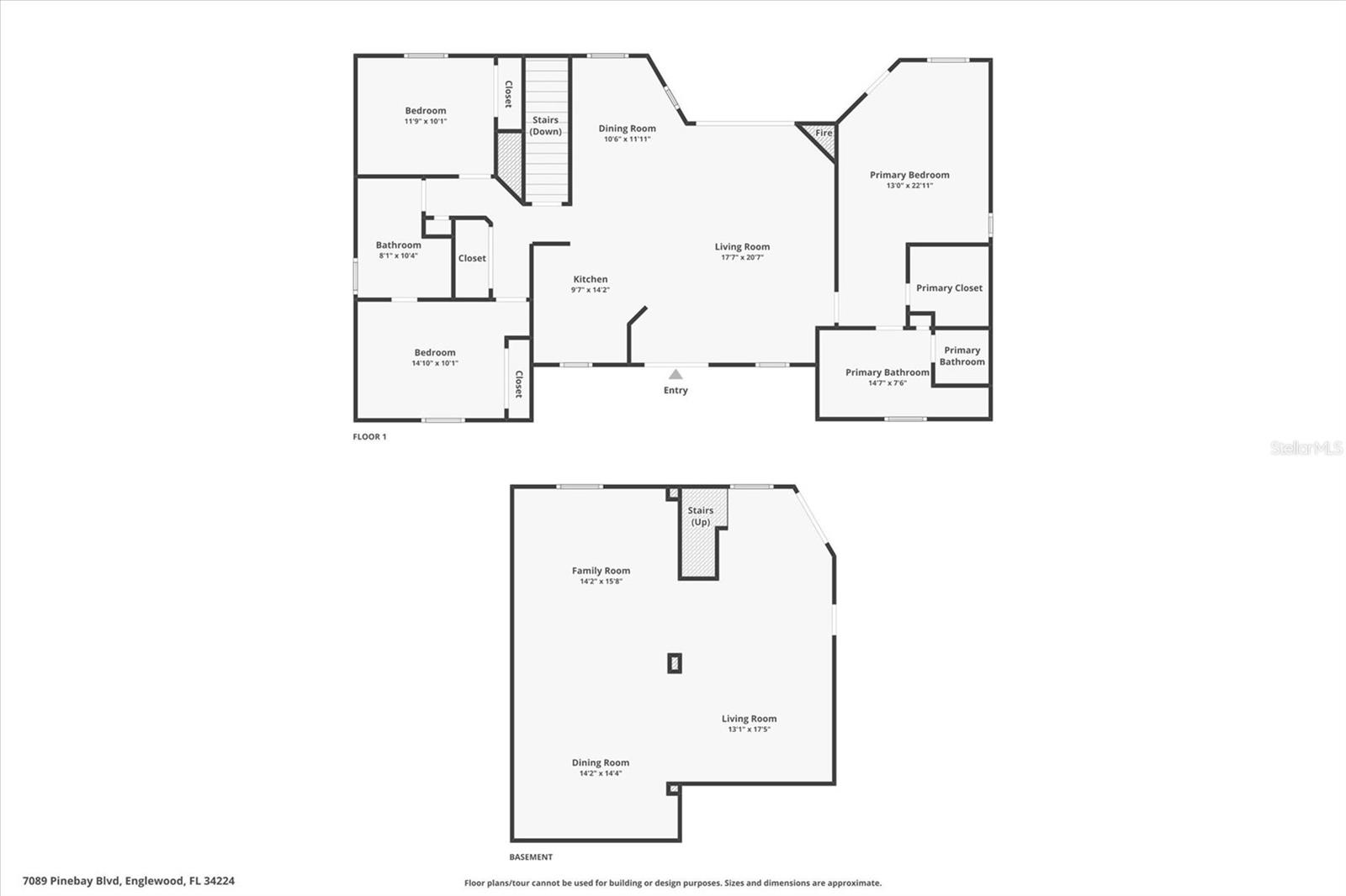
Custom Waterfront Retreat in Gated Community – Pines on the Bay Ideally situated in the private, gated enclave of Pines on the Bay, this custom-built residence offers the best of Southwest Florida living. Boasting 3 bedrooms, 2 baths, and expansive indoor and outdoor living areas, the home is perfectly positioned to take in panoramic views of Rocky Creek—with direct boating access to the Intracoastal Waterway and Gulf of Mexico via just one bridge. Enjoy easy use of the association boat ramp AND RV/trailer storage! Enjoy quiet mornings and colorful sunset skies from your private screened porch overlooking the water, or unwind in the swim spa while taking in the natural surroundings. The spacious layout offers additional flex living spaces both upstairs and down, ideal for a home office, entertainment area, or guest accommodations. An electric fireplace adds charm and warmth to the main living space. Constructed with durability and peace of mind in mind, this home features a standing seam metal roof, composite decking, Hardie Board Siding and hurricane shutters for added storm protection. Whether you're a boating enthusiast, nature lover, or simply seeking the tranquility of waterfront living in a secure neighborhood, this home delivers the ideal combination of privacy, comfort, and access. Pines on the Bay is known for its natural beauty, quiet surroundings, and close proximity to shopping, schools, dining, and area beaches—making this an exceptional opportunity to live the Florida coastal lifestyle.
Financial Considerations
Price:
$895,000
HOA Fee:
500
Tax Amount:
$4690.26
Price per SqFt:
$570.06
Tax Legal Description:
PBS 000 0001 0006 PINES ON THE BAY BLK 1 LT 6 973-797 E1073/1488 1233/2170 1713/1591 2198/170
Exterior Features
Lot Size:
9980
Lot Features:
FloodZone, In County, Landscaped, Level, Private, Unpaved
Waterfront:
Yes
Parking Spaces:
N/A
Parking:
N/A
Roof:
Metal
Pool:
No
Pool Features:
N/A
Interior Features
Bedrooms:
3
Bathrooms:
2
Heating:
Central, Electric
Cooling:
Central Air
Appliances:
Dishwasher, Dryer, Electric Water Heater, Microwave, Range, Refrigerator, Washer
Furnished:
Yes
Floor:
Ceramic Tile, Hardwood, Laminate
Levels:
One
Additional Features
Property Sub Type:
Single Family Residence
Style:
N/A
Year Built:
2004
Construction Type:
HardiPlank Type, Frame
Garage Spaces:
Yes
Covered Spaces:
N/A
Direction Faces:
Southwest
Pets Allowed:
No
Special Condition:
None
Additional Features:
French Doors, Hurricane Shutters, Lighting, Private Entrance, Rain Gutters, Sliding Doors, Storage
Additional Features 2:
Buyer to verify lease restrictions.
Map
  • Address
    7089 PINEBAY BLVD
Contact a Professional
Why Choose Us?
  • Communication and Transparency
  • Skilled Negotiation
  • Robust Professional Network
  • After-Sale Support
Featured Properties

Related Properties

avt
Daniel Dourado
$ 317,400
avt
Daniel Dourado
$ 595,000
avt
Daniel Dourado
$ 624,000
avt
Daniel Dourado
$ 445,000
avt
Daniel Dourado
$ 1,287,138
avt
Daniel Dourado
$ 698,547
avt
Daniel Dourado
$ 861,071
avt
Daniel Dourado
$ 250,000
avt
Daniel Dourado
$ 329,900
avt
Daniel Dourado
$ 389,900