Active

$284,000

Features:
  • 3 Bedrooms
  • 2 Bathrooms
  • 1524 sq ft
Overview
  • ID: MFRA4663106
  • Bedrooms: 3
  • Bathrooms: 2
  • Size: 1524 sq ft
Property Details
Remarks
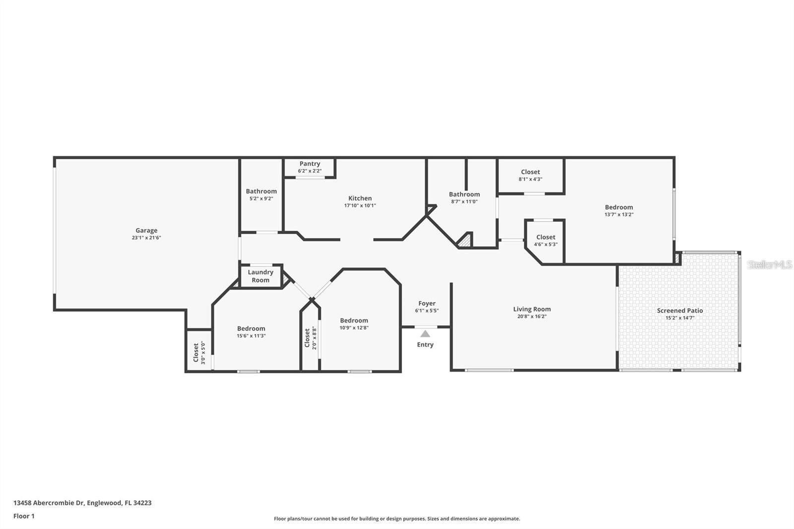
Welcome to Stillwater – A Gated Community in the Heart of Englewood! This beautifully maintained, 3BR/2BA villa features an open-concept layout with volume ceilings, tile flooring, granite countertops, and a bright kitchen with stainless appliances and a skylight. A Split Floor Plan. Enjoy peaceful preserve views from the screened lanai and extended patio. The primary suite includes a walk-in closet and en-suite bath. Nestled on the preserve, this villa ensures the utmost privacy, allowing residents to immerse themselves in the serene beauty of Florida's natural landscape and wildlife. New Roof 2024. Not in a flood zone! Community amenities include pool, spa, and clubhouse. Minutes to Englewood Beach, Dearborn St., YMCA, shopping, dining, and healthcare. Don't miss this unparalleled opportunity to make the Villas of Stillwater your new home, at this unbelievable price
Financial Considerations
Price:
$284,000
HOA Fee:
310
Tax Amount:
$2123.73
Price per SqFt:
$186.35
Tax Legal Description:
LOT 88, STILLWATER UNIT 3
Exterior Features
Lot Size:
5320
Lot Features:
N/A
Waterfront:
No
Parking Spaces:
N/A
Parking:
N/A
Roof:
Shingle
Pool:
No
Pool Features:
N/A
Interior Features
Bedrooms:
3
Bathrooms:
2
Heating:
Electric
Cooling:
Central Air
Appliances:
Convection Oven, Dishwasher, Dryer, Microwave, Range, Refrigerator, Washer
Furnished:
No
Floor:
Ceramic Tile, Hardwood, Tile, Vinyl
Levels:
One
Additional Features
Property Sub Type:
Villa
Style:
N/A
Year Built:
2011
Construction Type:
Block, Stucco
Garage Spaces:
Yes
Covered Spaces:
N/A
Direction Faces:
South
Pets Allowed:
No
Special Condition:
None
Additional Features:
Lighting, Shade Shutter(s), Sidewalk
Additional Features 2:
They have a 55 Rule - Please check with HOA for Lease period
Map
  • Address
    13458 ABERCROMBIE DR
Contact a Professional
Why Choose Us?
  • Communication and Transparency
  • Skilled Negotiation
  • Robust Professional Network
  • After-Sale Support
Featured Properties

Related Properties

img
  • Featured
  • Active
Villa

6566 GREEN VALLEY DR #6565

  • 2
  • 2
  • 125 m²
avt
Daniel Dourado
$ 329,900
img
  • Featured
  • Active
Villa

661 FAIRLAKES VILLAGE, PALMAS DEL MAR

  • 2
  • 2
  • 146 m²
avt
Daniel Dourado
$ 475,000
img
  • Featured
  • Active
Villa

4699 CHANDLERS FORDE #23

  • 2
  • 2
  • 175 m²
avt
Daniel Dourado
$ 410,000
img
  • Featured
  • Active
Villa

17003 CLEAR CORK DR

  • 2
  • 2
  • 151 m²
avt
Daniel Dourado
$ 298,000
img
  • Featured
  • Active
Villa

4238 ST THOMAS WAY

  • 2
  • 2
  • 145 m²
avt
Daniel Dourado
$ 279,540
avt
Daniel Dourado
$ 299,900
img
  • Featured
  • Active
Villa

2063 ROYAL TERN CIR

  • 2
  • 2
  • 139 m²
avt
Daniel Dourado
$ 269,440
img
  • Featured
  • Active
Villa

2061 ROYAL TERN CIR

  • 2
  • 2
  • 139 m²
avt
Daniel Dourado
$ 265,990
avt
Daniel Dourado
$ 364,900
img
  • Featured
  • Active
Villa

18044 TARRINGTON PL

  • 2
  • 2
  • 155 m²
avt
Daniel Dourado
$ 245,000
img
  • Featured
  • Active
Villa

858 TARTAN DR #858

  • 2
  • 2
  • 175 m²
avt
Daniel Dourado
$ 325,000
img
  • Featured
  • Active
Villa

166 SOUTHAMPTON PL S #348

  • 2
  • 3
  • 161 m²
avt
Daniel Dourado
$ 269,900