Active

$774,000

Features:
  • Bedrooms
  • 0 Bathrooms
  • sq ft
Overview
  • ID: MFRD6137677
  • Bedrooms:
  • Bathrooms: 0
  • Size: sq ft
Property Details
Remarks
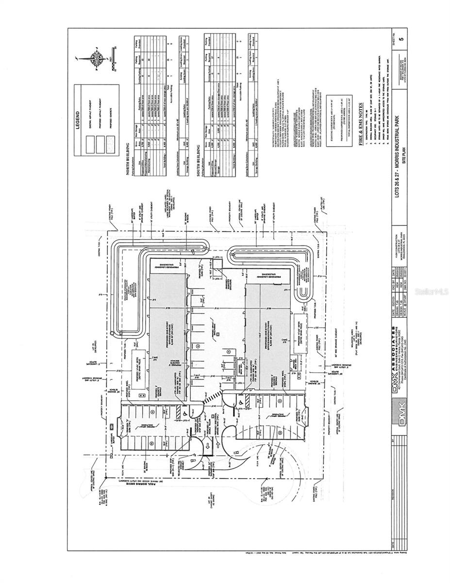
Price Improvement on 10-21-24 of $25K; down to $774,000. Owners have purchased an existing building, so take advantage of the Full Set of Building Plans that can get you in a new building in approximately six months. Two Acres For Sale - Zoned Industrial - Full Set of Building Plans Available - Building Permit ready in 30 to 45 days. Current Site Plan shows two one story buildings. Each building is approximately 8,400 square feet in size. North Building is 50 x 168 designed for seven RV / Storage Units. South Building is 60 x 140 designed for Office & Manufacturing. Take advantage of this rare opportunity to develop two acres of industrial space with full set of building plans. This will save you roughly two years in engineering design, environmental studies and permitting. Located in Morris Industrial Park off River Road giving you direct access to US-41 and I-75. Take advantage of this rare opportunity now before it's gone.
Financial Considerations
Price:
$774,000
HOA Fee:
N/A
Tax Amount:
$3465
Price per SqFt:
$8.87
Tax Legal Description:
LOTS 26 & 27, MORRIS INDUSTRIAL PARK, BEING SAME LANDS AS DESC IN ORI 2021118382 & 2022123874
Exterior Features
Lot Size:
87271
Lot Features:
Buildable, Cul-De-Sac, In County, Paved
Waterfront:
No
Parking Spaces:
N/A
Parking:
N/A
Roof:
N/A
Pool:
No
Pool Features:
N/A
Interior Features
Bedrooms:
Bathrooms:
0
Heating:
N/A
Cooling:
N/A
Appliances:
N/A
Furnished:
No
Floor:
N/A
Levels:
N/A
Additional Features
Property Sub Type:
N/A
Style:
N/A
Year Built:
N/A
Construction Type:
N/A
Garage Spaces:
No
Covered Spaces:
N/A
Direction Faces:
N/A
Pets Allowed:
No
Special Condition:
None
Additional Features:
N/A
Additional Features 2:
N/A
Map
  • Address
    PAUL MORRIS DR
Contact a Professional
Why Choose Us?
  • Communication and Transparency
  • Skilled Negotiation
  • Robust Professional Network
  • After-Sale Support
Featured Properties

Related Properties

img
  • Featured
  • Active

Lot 4, SPENCER CT

  • 0
  • 0 m²
avt
Daniel Dourado
$ 1,249,000
avt
Daniel Dourado
$ 600,000
img
  • Featured
  • Active

ALTURAS DE ZONI #6

  • 0
  • 0 m²
avt
Daniel Dourado
$ 440,000
img
  • Featured
  • Active

PR-4466 KM 2.0

  • 0
  • 0 m²
avt
Daniel Dourado
$ 2,775,000
img
  • Featured
  • Active

Carr. 140 KM 17.9

  • 0
  • 0 m²
avt
Daniel Dourado
$ 750,000
avt
Daniel Dourado
$ 620,000
img
  • Featured
  • Active

401 COLUMBIA DR

  • 0
  • 0 m²
avt
Daniel Dourado
$ 825,000
img
  • Featured
  • Active

1221 S BASIN LN

  • 0
  • 0 m²
avt
Daniel Dourado
$ 2,000,000
img
  • Featured
  • Active

1993 US HIGHWAY 27 S

  • 0
  • 0 m²
avt
Daniel Dourado
$ 1,499,900
img
  • Featured
  • Active

804 SHELL HARBOR RD

  • 0
  • 0 m²
avt
Daniel Dourado
$ 279,000
img
  • Featured
  • Active

45855 CLAY GULLY RD

  • 0
  • 0 m²
avt
Daniel Dourado
$ 875,000
img
  • Featured
  • Active

4177 OLD KINGS RD N

  • 0
  • 0 m²
avt
Daniel Dourado
$ 450,000