Sold

$234,900

Features:
  • 3 Bedrooms
  • 2 Bathrooms
  • 1575 sq ft
Overview
  • ID: MFRV4939388
  • Bedrooms: 3
  • Bathrooms: 2
  • Size: 1575 sq ft
Property Details
Remarks
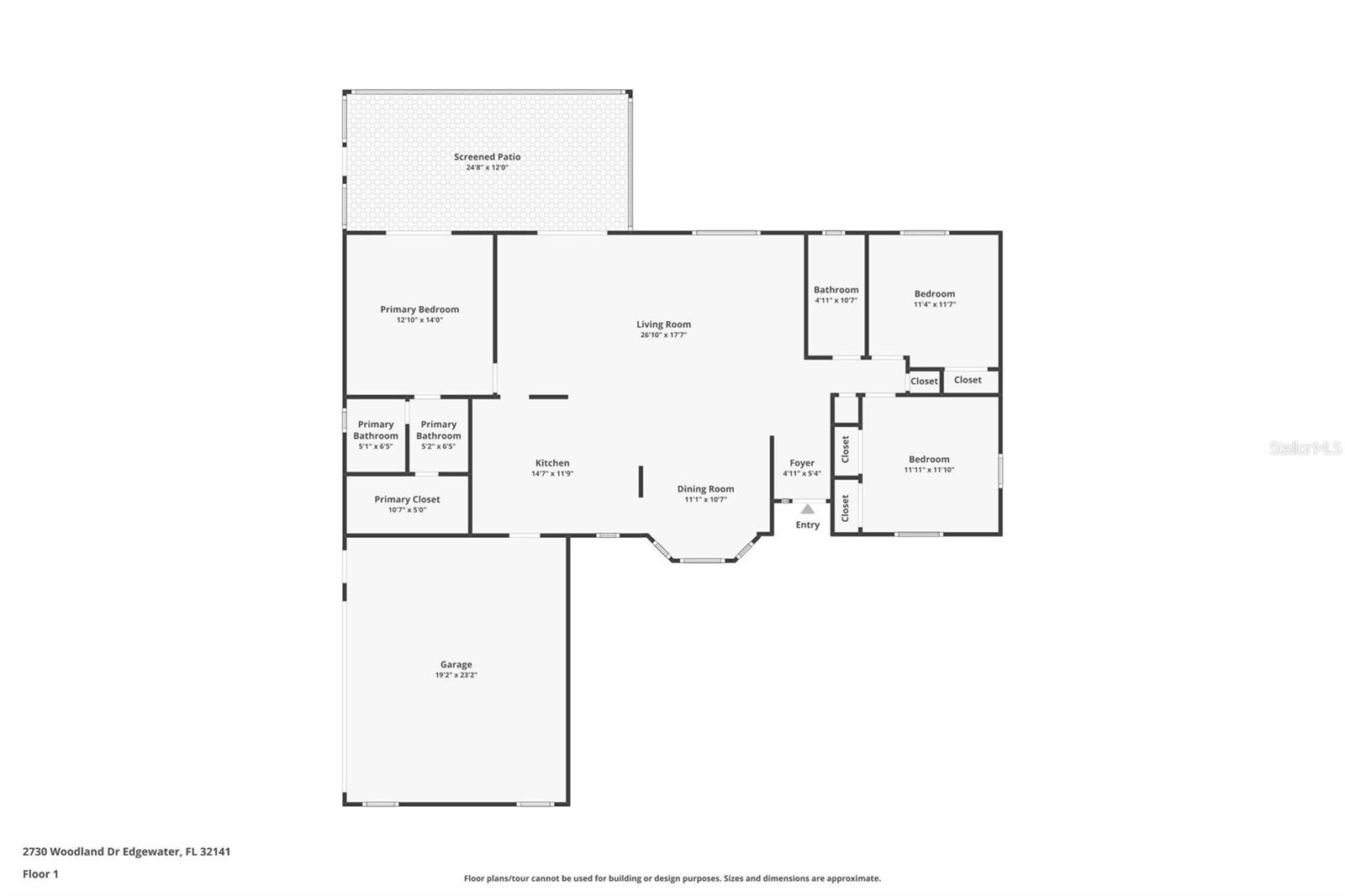
Welcome to this beautifully updated 3-bedroom, 2-bathroom home situated on an elevated lot in the lovely community of Florida Shores. Offering over a third of an acre, this property provides both space and privacy, making it an ideal retreat for those seeking comfort and outdoor living space. As you enter, you’re greeted by an open floor plan with soaring cathedral ceilings, creating a bright and airy atmosphere. The large custom kitchen, complete with stainless steel appliances and modern quartz tops, has been thoughtfully remodeled to include ample counter space and cabinetry, making it a chef’s dream. The living area flows seamlessly onto an oversized screened porch, perfect for entertaining or enjoying peaceful evenings outdoors. The split floor plan ensures privacy, with the spacious primary suite on one side of the home and two additional bedrooms on the other. Both bathrooms have been tastefully updated, offering modern finishes and functionality. Step outside to discover the expansive fenced-in yard, featuring a huge side yard that offers endless possibilities for gardening, play, or even adding a pool. The oversized side-entry two-car garage provides additional privacy and plenty of storage space, perfect for housing vehicles, tools, or recreational equipment. Recent updates include new flooring and fresh paint throughout, ensuring this home is move-in ready. Located in an established neighborhood, you’ll enjoy the tranquility of suburban living while being just a short drive to the beaches, intracoastal, fishing/boating, shopping, dining, and many other local attractions. Don’t miss your chance to own this beautifully updated home with plenty of space both inside and out. Schedule your private showing today and see why 2730 Woodland Drive is the perfect place to call home!
Financial Considerations
Price:
$234,900
HOA Fee:
N/A
Tax Amount:
$5074.51
Price per SqFt:
$142.86
Tax Legal Description:
LOTS 12171 TO 12173 INC BLK 396 FLORIDA SHORES NO 18 MB 19 PG 238 PER OR 4619 PG 1852 PER OR 5397 PG 2016 PER OR 6339 PG 4931 PER OR 6349 PG 3941 PER MC 6873 PG 1663 PER OR 7206 PGS 1189-1190 PER OR 8145 PG 3552
Exterior Features
Lot Size:
15000
Lot Features:
N/A
Waterfront:
No
Parking Spaces:
N/A
Parking:
N/A
Roof:
Shingle
Pool:
No
Pool Features:
N/A
Interior Features
Bedrooms:
3
Bathrooms:
2
Heating:
Central
Cooling:
Central Air
Appliances:
Dishwasher, Range, Refrigerator
Furnished:
No
Floor:
Laminate
Levels:
One
Additional Features
Property Sub Type:
Single Family Residence
Style:
N/A
Year Built:
1990
Construction Type:
Block, Stucco
Garage Spaces:
Yes
Covered Spaces:
N/A
Direction Faces:
East
Pets Allowed:
No
Special Condition:
None
Additional Features:
Other
Additional Features 2:
N/A
Map
  • Address
    2730 WOODLAND DR
Contact a Professional
Why Choose Us?
  • Communication and Transparency
  • Skilled Negotiation
  • Robust Professional Network
  • After-Sale Support
Featured Properties

Related Properties

avt
Daniel Dourado
$ 379,900
avt
Daniel Dourado
$ 490,000
img
  • Featured
  • Active
Single Family Residence

Carr 411 Km 0.3 SECTOR RUIZ BO. CALVACHE

  • 4
  • 4
  • 325 m²
avt
Daniel Dourado
$ 1,500,000
avt
Daniel Dourado
$ 279,900
avt
Daniel Dourado
$ 369,990
avt
Daniel Dourado
$ 1,690,000
avt
Daniel Dourado
$ 410,000
avt
Daniel Dourado
$ 419,900
avt
Daniel Dourado
$ 534,423