Active

$270,000

Features:
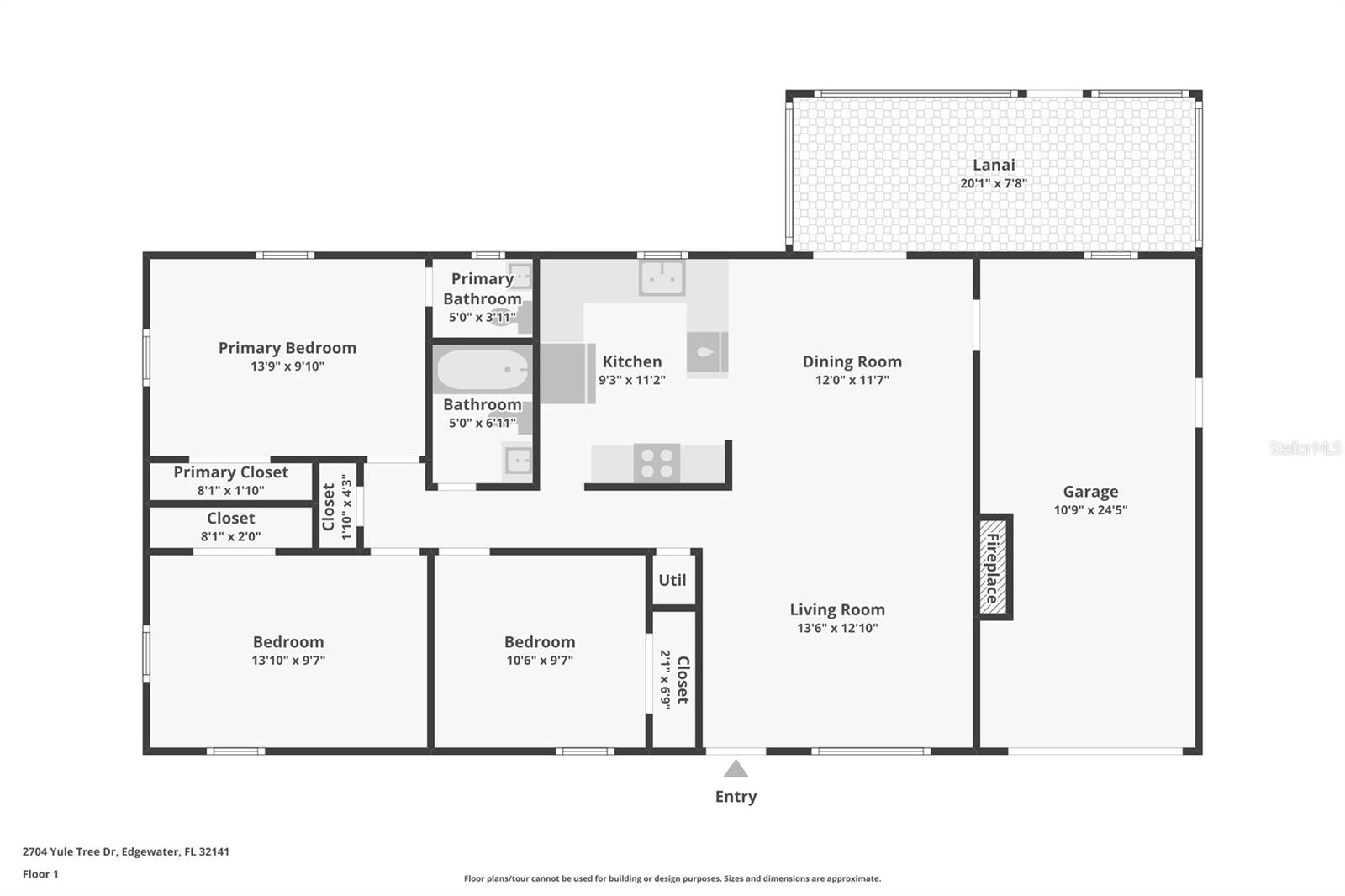
  • 3 Bedrooms
  • 2 Bathrooms
  • 1656 sq ft
Overview
  • ID: MFRO6312767
  • Bedrooms: 3
  • Bathrooms: 2
  • Size: 1656 sq ft
Property Details
Remarks
This beautiful, completely remodeled, and updated 3-bedroom, 1.5-bathroom home has been upgraded with all the modern amenities you could want. Featuring brand-new appliances, new flooring, new hurricane double pane windows, Two year old AC unit, this home is move-in ready and designed for ultimate comfort and convenience with a generator hook up already installed. Garage has portable A.C. unit already installed. The spacious, open-concept layout offers plenty of room to entertain guests or simply unwind. The large backyard is perfect for hosting outdoor gatherings or relaxing in your private retreat. There's ample space to park your boats, RVs, or weekend vehicles. In addition, the property includes a two-story barn-style shed and a private workshop, providing all the storage and workspace you could need. This is the perfect home for those looking for a blend of modern upgrades, a vast outdoor space, and the freedom to enjoy life to the fullest. Don't miss out—schedule your tour today and experience all this exceptional property has to offer! Full Home Inspection and passing 4-point and wind mitigation reports are available upon request, along with an updated survey to save you money at the closing table.
Financial Considerations
Price:
$270,000
HOA Fee:
N/A
Tax Amount:
$1970
Price per SqFt:
$163.04
Tax Legal Description:
LOTS 12136 12137 & 12138 BLK 394 FLORIDA SHORES NO 18 MB 19 PG 238 PER OR 4463 PG 2249 PER OR 5533 PG 1590 PER OR 6420 PG 1912 PER OR 7251 PG 3181 PER OR 7586 PGS 0777-0778 PER OR 8524 PGS 4521 THRU 4522 INC
Exterior Features
Lot Size:
15000
Lot Features:
Landscaped, Oversized Lot, Private
Waterfront:
No
Parking Spaces:
N/A
Parking:
Off Street, Oversized
Roof:
Shingle
Pool:
No
Pool Features:
N/A
Interior Features
Bedrooms:
3
Bathrooms:
2
Heating:
Electric, Ductless
Cooling:
Central Air, Wall/Window Unit(s)
Appliances:
Dishwasher, Disposal, Microwave, Range, Refrigerator
Furnished:
No
Floor:
Laminate, Vinyl
Levels:
One
Additional Features
Property Sub Type:
Single Family Residence
Style:
N/A
Year Built:
1980
Construction Type:
Block
Garage Spaces:
Yes
Covered Spaces:
N/A
Direction Faces:
East
Pets Allowed:
No
Special Condition:
None
Additional Features:
Other
Additional Features 2:
N/A
Map
  • Address
    2704 YULE TREE DR
Contact a Professional
Why Choose Us?
  • Communication and Transparency
  • Skilled Negotiation
  • Robust Professional Network
  • After-Sale Support
Featured Properties

Related Properties

avt
Daniel Dourado
$ 460,000
avt
Daniel Dourado
$ 1,145,000
avt
Daniel Dourado
$ 845,000
avt
Daniel Dourado
$ 415,000
avt
Daniel Dourado
$ 5,920,000
avt
Daniel Dourado
$ 449,000
avt
Daniel Dourado
$ 319,900
avt
Daniel Dourado
$ 1,199,000
avt
Daniel Dourado
$ 475,000
avt
Daniel Dourado
$ 464,900
avt
Daniel Dourado
$ 200,000