Active

$299,000

Features:
  • 3 Bedrooms
  • 2 Bathrooms
  • 1264 sq ft
Overview
  • ID: MFRO6377502
  • Bedrooms: 3
  • Bathrooms: 2
  • Size: 1264 sq ft
Property Details
Remarks
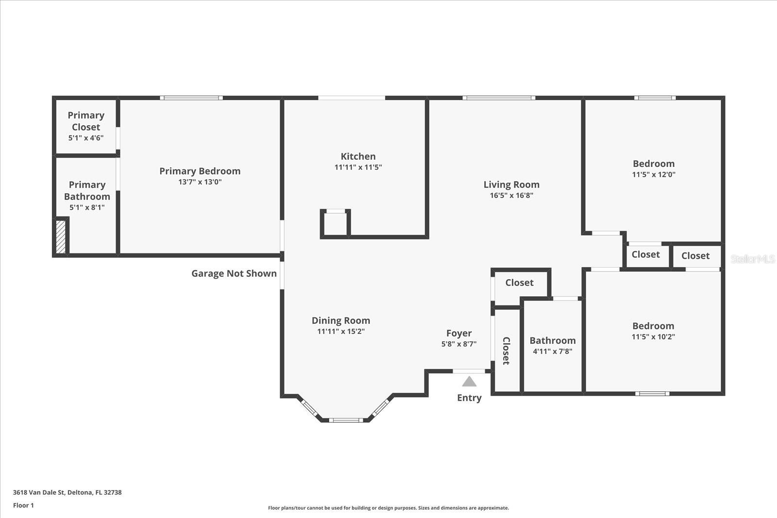
Welcome home to this charming 3-bedroom, 2-bath residence that offers a bright and inviting layout designed for comfortable everyday living. The open living and dining floor plan is enhanced by vaulted ceilings, creating a spacious and airy feel from the moment you step inside. The eat-in kitchen features a breakfast bar and granite countertops, providing both functionality and a welcoming space to gather. The generously sized primary bedroom serves as a relaxing retreat, complete with a large walk-in closet and a private ensuite bathroom. Wood flooring flows throughout the home, adding warmth and continuity. Step outside to the oversized screened patio, where you can unwind while overlooking a peaceful backyard—perfect for enjoying Florida’s outdoor lifestyle. This move-in ready home offers valuable updates including a 4-year-old roof, vinyl siding, and a newer AC system, delivering peace of mind for years to come. A wonderful opportunity to enjoy comfort, charm, and thoughtful updates all in one inviting Deltona home.
Financial Considerations
Price:
$299,000
HOA Fee:
N/A
Tax Amount:
$1295
Price per SqFt:
$236.55
Tax Legal Description:
LOT 2 BLK 1613 DELTONA LAKES UNIT 62 MB 28 PGS 95-99 INC PER OR 3632 PG 0018 PER OR 6127 PG 1705 PER OR 6462 PG 0001
Exterior Features
Lot Size:
10720
Lot Features:
Paved
Waterfront:
No
Parking Spaces:
N/A
Parking:
Driveway, Garage Door Opener, Oversized
Roof:
Shingle
Pool:
No
Pool Features:
N/A
Interior Features
Bedrooms:
3
Bathrooms:
2
Heating:
Central, Electric
Cooling:
Central Air
Appliances:
Dishwasher, Dryer, Microwave, Range, Refrigerator, Washer
Furnished:
Yes
Floor:
Carpet, Tile, Wood
Levels:
One
Additional Features
Property Sub Type:
Single Family Residence
Style:
N/A
Year Built:
1991
Construction Type:
Vinyl Siding
Garage Spaces:
Yes
Covered Spaces:
N/A
Direction Faces:
North
Pets Allowed:
No
Special Condition:
None
Additional Features:
Sliding Doors
Additional Features 2:
N/A
Map
  • Address
    3618 VAN DALE ST
Contact a Professional
Why Choose Us?
  • Communication and Transparency
  • Skilled Negotiation
  • Robust Professional Network
  • After-Sale Support
Featured Properties

Related Properties

avt
Daniel Dourado
$ 440,000
avt
Daniel Dourado
$ 795,000
avt
Daniel Dourado
$ 315,000
avt
Daniel Dourado
$ 674,000
avt
Daniel Dourado
$ 365,000
avt
Daniel Dourado
$ 420,000