Active

$204,900

Features:
  • 3 Bedrooms
  • 2 Bathrooms
  • 1384 sq ft
Overview
  • ID: MFRO6368027
  • Bedrooms: 3
  • Bathrooms: 2
  • Size: 1384 sq ft
Property Details
Remarks
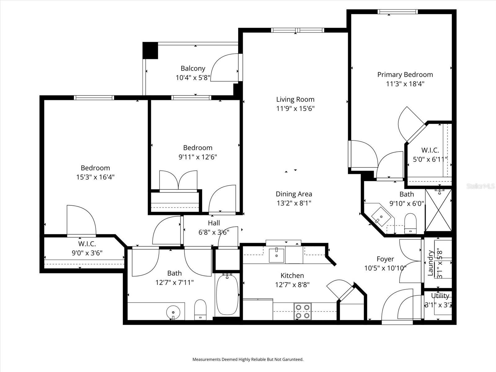
Welcome home to this top-floor condo in the gated community of Bella Trae, where comfort meets resort-style living. Enjoy peaceful mornings and relaxing evenings on the screened-in lanai overlooking a tranquil pond, offering added privacy with no neighbors above. The thoughtfully designed floor plan features a combined living and dining area, perfect for everyday living and entertaining. The kitchen overlooks the main living spaces and is equipped with stainless steel appliances, including a new refrigerator (2024), new microwave (2025), and upgraded dishwasher (2021). A laundry closet with a full-sized washer (2021) and dryer adds everyday convenience. The primary suite offers a walk-in closet and an updated en-suite bathroom with an upgraded sink and faucet plus medicine storage cabinets. The two additional bedrooms are separated for added privacy, with the second guest bedroom functioning as a dual primary suite featuring its own attached bathroom and walk-in closet—ideal for guests or multi-generational living. Additional highlights include one covered carport parking space with private storage, a smart door lock for remote access, and a newer AC (2021) with UV light. HOA dues include water, pest control, and basic cable and internet, making for low-maintenance living. Bella Trae delivers an exceptional lifestyle with resort-style amenities, including a zero-entry heated pool and spa, clubhouse, fitness center, community grills, billiards room, Wall Street library, putting green, and pickleball courts. Ideally located near world-famous theme parks and multiple golf courses, this condo offers the perfect blend of relaxation, recreation, and convenience. Schedule your private showing today and experience the Bella Trae lifestyle for yourself.
Financial Considerations
Price:
$204,900
HOA Fee:
535.58
Tax Amount:
$1295
Price per SqFt:
$148.05
Tax Legal Description:
VENTURA AT BELLA TRAE A CONDO PH 5 BLDG 5 CB 12 PG 158 OR 3693/2797 UNIT 41005
Exterior Features
Lot Size:
0
Lot Features:
N/A
Waterfront:
No
Parking Spaces:
N/A
Parking:
Deeded, Ground Level, Guest
Roof:
Tile
Pool:
No
Pool Features:
N/A
Interior Features
Bedrooms:
3
Bathrooms:
2
Heating:
Central, Electric
Cooling:
Central Air
Appliances:
Dishwasher, Dryer, Microwave, Range, Refrigerator, Washer
Furnished:
Yes
Floor:
Carpet, Tile
Levels:
One
Additional Features
Property Sub Type:
Condominium
Style:
N/A
Year Built:
2008
Construction Type:
Block, Stucco
Garage Spaces:
No
Covered Spaces:
N/A
Direction Faces:
Northwest
Pets Allowed:
No
Special Condition:
None
Additional Features:
Balcony, Other, Storage
Additional Features 2:
Please contact HOA for all lease restrictions. Short term leasing not permitted.
Map
  • Address
    8298 PORTOFINO DR #405
Contact a Professional
Why Choose Us?
  • Communication and Transparency
  • Skilled Negotiation
  • Robust Professional Network
  • After-Sale Support
Featured Properties

Related Properties

img
  • Featured
  • Active
Condominium

7697 HERITAGE CROSSING WAY #202

  • 3
  • 2
  • 124 m²
avt
Daniel Dourado
$ 249,900
avt
Daniel Dourado
$ 739,000
avt
Daniel Dourado
$ 1,699,000
img
  • Featured
  • Active
Condominium

2051 VISTA DEL SOL CIR #201

  • 3
  • 3
  • 252 m²
avt
Daniel Dourado
$ 459,900
img
  • Featured
  • Active
Condominium

500 THE ESPLANADE N #405

  • 2
  • 2
  • 108 m²
avt
Daniel Dourado
$ 649,900
img
  • Featured
  • Active
Condominium

13136 CYPRESS HILL DR #125A

  • 2
  • 2
  • 110 m²
avt
Daniel Dourado
$ 234,995
img
  • Featured
  • Active
Condominium

875 OCEAN COURSE AVE #875

  • 3
  • 2
  • 166 m²
avt
Daniel Dourado
$ 319,000
avt
Daniel Dourado
$ 1,495,000
avt
Daniel Dourado
$ 250,000
avt
Daniel Dourado
$ 1,750,000
avt
Daniel Dourado
$ 300,000
avt
Daniel Dourado
$ 1,300,000