Sold

$413,801

Features:
  • 4 Bedrooms
  • 3 Bathrooms
  • 1852 sq ft
Overview
  • ID: MFRO6302421
  • Bedrooms: 4
  • Bathrooms: 3
  • Size: 1852 sq ft
Property Details
Remarks
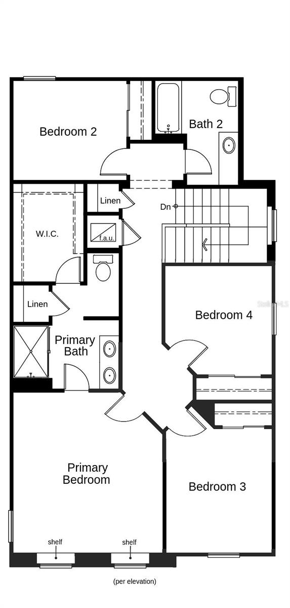
Under Construction. Comfort meets versatility in this stunning, two-story home, which showcases a charming, covered front porch. Inside, discover an open floor plan with a spacious great room, 9-ft. ceilings and tile flooring. Enjoy the convenience of a dedicated laundry room. The kitchen boasts 36-in. upper cabinets, granite countertops and Whirlpool® stainless steel appliances. Upstairs, a versatile loft provides extra space for entertaining or relaxing. The primary suite features a connecting bath that offers a large walk-in shower and oversized closet.
Financial Considerations
Price:
$413,801
HOA Fee:
55
Tax Amount:
$2800.24
Price per SqFt:
$215.98
Tax Legal Description:
BELLAVIVA REPLAT PB 36 PGS 19-20 LOT 203
Exterior Features
Lot Size:
3484
Lot Features:
N/A
Waterfront:
No
Parking Spaces:
N/A
Parking:
N/A
Roof:
Shingle
Pool:
No
Pool Features:
N/A
Interior Features
Bedrooms:
4
Bathrooms:
3
Heating:
Central
Cooling:
Central Air
Appliances:
Dishwasher, Disposal, Range, Range Hood
Furnished:
Yes
Floor:
Carpet, Tile
Levels:
Two
Additional Features
Property Sub Type:
Single Family Residence
Style:
N/A
Year Built:
2025
Construction Type:
Block, HardiPlank Type, Stucco, Frame
Garage Spaces:
Yes
Covered Spaces:
N/A
Direction Faces:
East
Pets Allowed:
Yes
Special Condition:
None
Additional Features:
Sidewalk, Sliding Doors
Additional Features 2:
Lease restrictions to be independently verified by the HOA
Map
  • Address
    9540 WESTSIDE HILLS DR
Contact a Professional
Why Choose Us?
  • Communication and Transparency
  • Skilled Negotiation
  • Robust Professional Network
  • After-Sale Support
Featured Properties

Related Properties

avt
Daniel Dourado
$ 367,490
avt
Daniel Dourado
$ 417,490
avt
Daniel Dourado
$ 300,000
avt
Daniel Dourado
$ 355,000
avt
Daniel Dourado
$ 453,685
avt
Daniel Dourado
$ 357,100
avt
Daniel Dourado
$ 405,400
avt
Daniel Dourado
$ 299,999
avt
Daniel Dourado
$ 620,000