Active

$850,000

Features:
  • Bedrooms
  • 0 Bathrooms
  • 4599 sq ft
Overview
  • ID: MFRL4946988
  • Bedrooms:
  • Bathrooms: 0
  • Size: 4599 sq ft
Property Details
Remarks
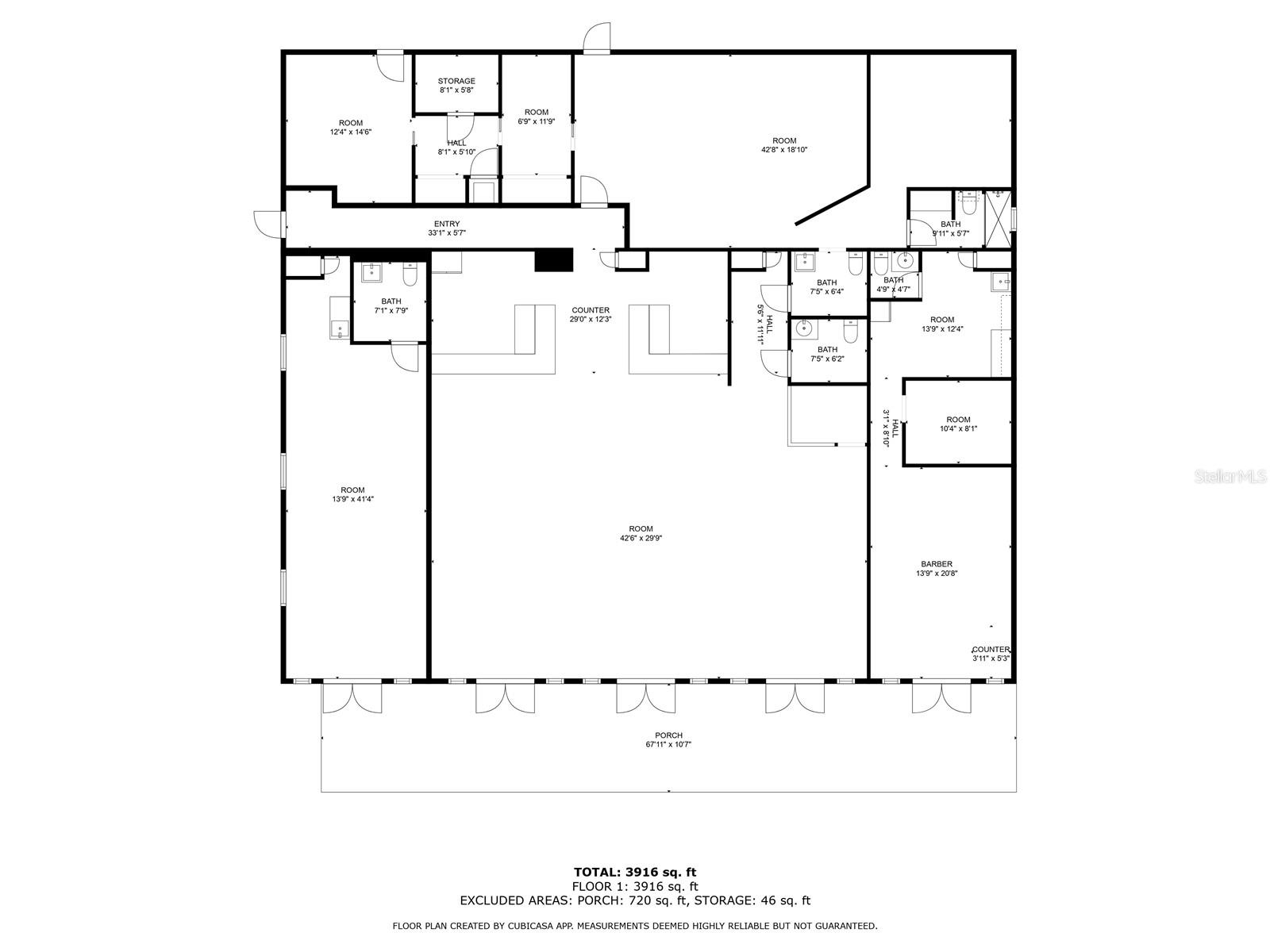
Welcome to Crystal River's newest treasure for commercial ventures. This is a fantastic business opportunity! Positioned directly on US-19 Building features 4599 square feet, with 5 separate front entrances and flexible interior spacing and 3 bathrooms. No need to worry about parking there are more than 30 parking areas. This building offers versatility to suit a variety of business or retail needs. Don't miss this incredible opportunity to own a commercial office building in one of Florida's most sought-after destinations. Whether you're expanding your business or seeking a lucrative investment opportunity, this property offers the space, amenities, and location. Future – Possible “Net Operating Income” (NOI) up to $76,980/year. There are endless possibilities that await within these walls!
Financial Considerations
Price:
$850,000
HOA Fee:
N/A
Tax Amount:
$2968
Price per SqFt:
$184.78
Tax Legal Description:
PCL C: COM AT INT OF N LN OF S 1591.12 FT OF SEC & W R/W LN OF US HWY 19 TH N 21 DEG 21M 49S W AL R/W LN 50 FT TO POB TH N 21 DEG 21M 49S W 100 FT TH W 429.51 FT TH S 21 DEG 21 M 49S E 100 FT TH E 429.51 FT TO POB DESC IN OR BK 1256 PG 1619 & OR BK 1 519 PG 1463
Exterior Features
Lot Size:
39962
Lot Features:
N/A
Waterfront:
No
Parking Spaces:
N/A
Parking:
Parking Spaces - 19 to 30
Roof:
N/A
Pool:
No
Pool Features:
N/A
Interior Features
Bedrooms:
Bathrooms:
0
Heating:
Electric
Cooling:
Central Air
Appliances:
N/A
Furnished:
No
Floor:
N/A
Levels:
N/A
Additional Features
Property Sub Type:
Retail
Style:
N/A
Year Built:
1986
Construction Type:
Block, Concrete, Stone
Garage Spaces:
No
Covered Spaces:
N/A
Direction Faces:
N/A
Pets Allowed:
No
Special Condition:
None
Additional Features:
N/A
Additional Features 2:
N/A
Map
  • Address
    4314 N SUNCOAST BLVD
Contact a Professional
Why Choose Us?
  • Communication and Transparency
  • Skilled Negotiation
  • Robust Professional Network
  • After-Sale Support
Featured Properties

Related Properties

avt
Daniel Dourado
$ 2,100,000
img
  • Featured
  • Active
Retail

7941 N ARMENIA AVE,

  • 0
  • 0 m²
avt
Daniel Dourado
$ 249,000
avt
Daniel Dourado
$ 850,000
avt
Daniel Dourado
$ 2,148,986
img
  • Featured
  • Active
Retail

1 BOULEVARD DE PALMAS

  • 0
  • 0 m²
avt
Daniel Dourado
$ 4,800,000
avt
Daniel Dourado
$ 1,799,000
img
  • Featured
  • Active
Retail

400-484 STATE ROAD 436

  • 0
  • 5641 m²
avt
Daniel Dourado
$ 12,000,000
avt
Daniel Dourado
$ 745,000
avt
Daniel Dourado
$ 625,000
avt
Daniel Dourado
$ 1,550,000
avt
Daniel Dourado
$ 1,500,000
img
  • Featured
  • Active
Retail

15 LUIS MUÑOZ RIVERA AVE

  • 0
  • 0 m²
avt
Daniel Dourado
$ 200,000