Active

$249,000

Features:
  • 3 Bedrooms
  • 2 Bathrooms
  • 1554 sq ft
Overview
  • ID: MFRW7879062
  • Bedrooms: 3
  • Bathrooms: 2
  • Size: 1554 sq ft
Property Details
Remarks
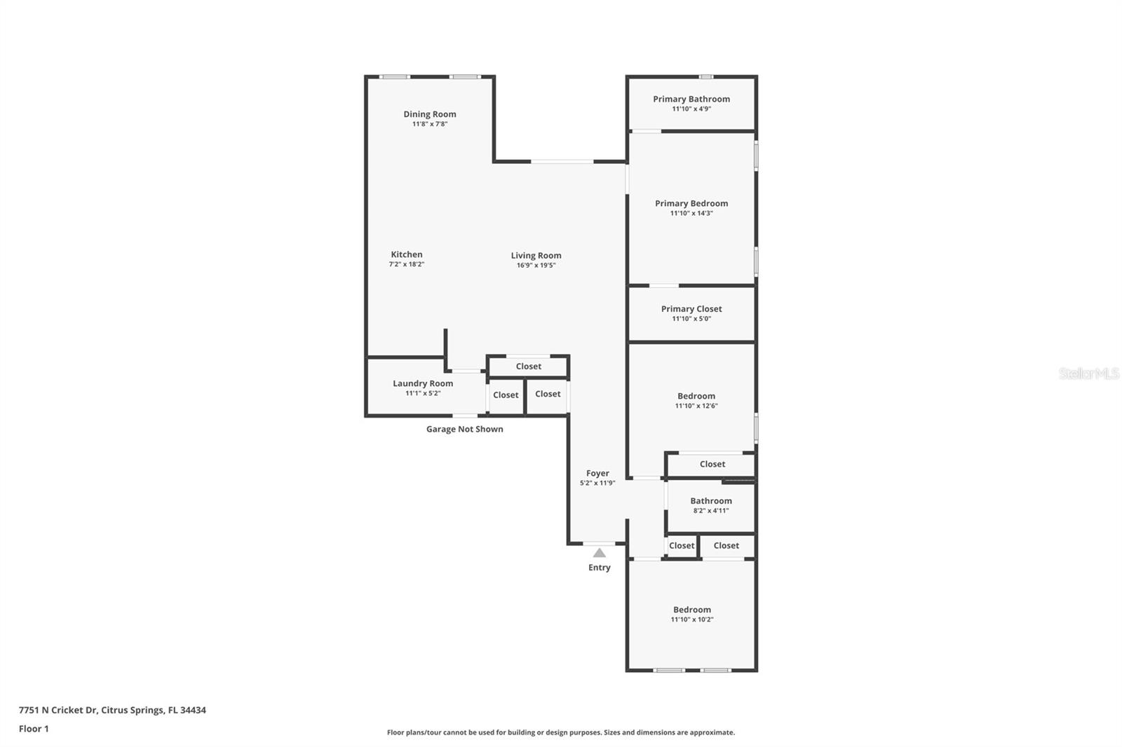
Welcome to your dream home in the charming community of Citrus Springs, FL! This beautiful single-family home boasts 3 bedrooms and 2 bathrooms, perfect for a growing family or those who love to entertain. With 1,554 living square feet, there is plenty of space to spread out and make this house your own. The attached 2-car garage provides convenience and extra storage space. Enjoy the warm Florida weather on your spacious patio, or spend your weekends exploring local treasures such as Three Sisters Springs, Rainbow River State Park, Homosassa Springs Wildlife State Park, and the scenic Withlacoochee River—all just a short drive away. This property is located in a peaceful neighborhood, surrounded by lush greenery and close to all the amenities you could need. Don’t miss the opportunity to make this house your forever home. Schedule a showing today and see for yourself why Citrus Springs is the perfect place to call home.
Financial Considerations
Price:
$249,000
HOA Fee:
N/A
Tax Amount:
$182.6
Price per SqFt:
$160.23
Tax Legal Description:
CITRUS SPGS UNIT 7 PB 6 PG 33 LOT 11 BLK 733
Exterior Features
Lot Size:
11898
Lot Features:
N/A
Waterfront:
No
Parking Spaces:
N/A
Parking:
N/A
Roof:
Shingle
Pool:
No
Pool Features:
N/A
Interior Features
Bedrooms:
3
Bathrooms:
2
Heating:
Central, Electric
Cooling:
Central Air
Appliances:
Dishwasher, Dryer, Microwave, Range, Refrigerator, Washer
Furnished:
No
Floor:
Luxury Vinyl
Levels:
One
Additional Features
Property Sub Type:
Single Family Residence
Style:
N/A
Year Built:
2025
Construction Type:
Block, Stucco
Garage Spaces:
Yes
Covered Spaces:
N/A
Direction Faces:
Northeast
Pets Allowed:
No
Special Condition:
None
Additional Features:
Lighting
Additional Features 2:
N/A
Map
  • Address
    7751 N CRICKET DR
Contact a Professional
Why Choose Us?
  • Communication and Transparency
  • Skilled Negotiation
  • Robust Professional Network
  • After-Sale Support
Featured Properties

Related Properties

avt
Daniel Dourado
$ 410,000
avt
Daniel Dourado
$ 299,900
avt
Daniel Dourado
$ 510,000
avt
Daniel Dourado
$ 430,000
avt
Daniel Dourado
$ 394,800
avt
Daniel Dourado
$ 389,900
avt
Daniel Dourado
$ 649,900