Active

$469,725

Features:
  • 4 Bedrooms
  • 3 Bathrooms
  • 2586 sq ft
Overview
  • ID: MFRTB8454659
  • Bedrooms: 4
  • Bathrooms: 3
  • Size: 2586 sq ft
Property Details
Remarks
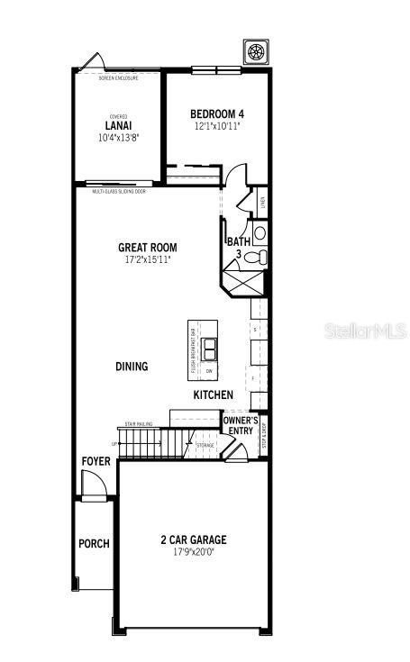
Under Construction. This Award-Winning Venice townhome with a Modern exterior design lives like a single-family home. This impressive two-story townhome is 2,586 square feet with 4 bedrooms, 3 baths, and a 2-car garage. This home offers a bedroom on the first level, adjacent to a full bath with a step-in shower. The Venice offers a designer kitchen with abundant cabinet space and a center island. The cabinets are upgraded throughout and include brushed nickel cabinet hardware. This home has quartz countertops color matched to flow with the design features and comes with all appliances. First-floor common areas are covered in tile flooring for easy cleanup. The Dining Area and Great Room naturally flow together and the sliding glass door leads out to the paver lanai that is completely screened in to promote frequent outdoor living. Upstairs, an amazingly spacious loft is versatile and can be used as your second living space, media room, or play area. The Owner's Bath has been designed with a raised-height vanity, super shower and a must-see walk-in closet. Two secondary bedrooms share a full bath and feature walk-in closets. A Smart Home Tech package includes an Ecobee Thermostat, Clare Video Door Bell and touchscreen home panel. The location of this Brandon community is minutes to all of the conveniences that the area has to offer including top rated schools. Photos, renderings and plans are for illustrative purposes only and should never be relied upon and may vary from the actual home. Pricing, dimensions and features can change at any time without notice or obligation. The photos are from a furnished model home and not the home offered for sale.
Financial Considerations
Price:
$469,725
HOA Fee:
293
Tax Amount:
$160
Price per SqFt:
$181.64
Tax Legal Description:
BLOOMINGDALE TOWNES LOT 141
Exterior Features
Lot Size:
3485
Lot Features:
Level, Sidewalk, Paved
Waterfront:
Yes
Parking Spaces:
N/A
Parking:
Garage Door Opener
Roof:
Shingle
Pool:
No
Pool Features:
Other
Interior Features
Bedrooms:
4
Bathrooms:
3
Heating:
Central, Electric
Cooling:
Central Air
Appliances:
Dishwasher, Disposal, Dryer, Electric Water Heater, Microwave, Range, Refrigerator, Washer
Furnished:
Yes
Floor:
Carpet, Luxury Vinyl, Tile
Levels:
Two
Additional Features
Property Sub Type:
Townhouse
Style:
N/A
Year Built:
2025
Construction Type:
Block, Stucco, Frame
Garage Spaces:
Yes
Covered Spaces:
N/A
Direction Faces:
North
Pets Allowed:
Yes
Special Condition:
None
Additional Features:
Sidewalk, Sliding Doors
Additional Features 2:
Lease must be for no less than one year. Can be written twice a year.
Map
  • Address
    3364 TIMBER CROSSING AVE
Contact a Professional
Why Choose Us?
  • Communication and Transparency
  • Skilled Negotiation
  • Robust Professional Network
  • After-Sale Support
Featured Properties

Related Properties

avt
Daniel Dourado
$ 290,990
avt
Daniel Dourado
$ 459,707
avt
Daniel Dourado
$ 349,000
avt
Daniel Dourado
$ 242,990
avt
Daniel Dourado
$ 242,990
avt
Daniel Dourado
$ 242,990
avt
Daniel Dourado
$ 359,990
avt
Daniel Dourado
$ 339,990
avt
Daniel Dourado
$ 329,000
avt
Daniel Dourado
$ 242,990
avt
Daniel Dourado
$ 328,990
avt
Daniel Dourado
$ 242,990