Active

$525,000

Features:
  • 3 Bedrooms
  • 4 Bathrooms
  • 1694 sq ft
Overview
  • ID: MFRTB8441111
  • Bedrooms: 3
  • Bathrooms: 4
  • Size: 1694 sq ft
Property Details
Remarks
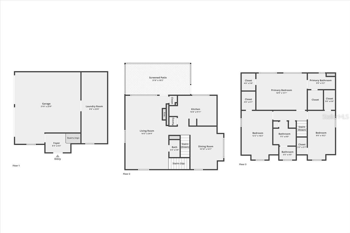
This unique elevated, waterview property backs up to a tranquil 1.6 acre waterfront private park with a boat ramp- (Partial ownership TRANSFERS to the buyer of this property).  Enjoy fishing, swimming, or taking your kayak or jet skis out on the water.  On the first floor you will find an oversized garage with storage space with an elevated laundry room, half bath and a lovely loft area.  You will find the main living area on the second floor with the kitchen, dining room, living room with fireplace, and a nicepowder room.  A generously sized screened porch and an open deck share the awesome waterview.  On the top floor you will find the primary bedroom, primary bath, the two guest bedrooms that share a hall bath.  This property has a fenced in yard perfect to keep your fur babies in and allowing easy access to your waterfront park.  Tons of parking for all of your toys and boats.  The Riverwalk extension is walking distance from this home and adds to your active Florida lifestyle.  Walk or bike ride to your favorite restaurants along the Bradenton Riverwalk. Perfect for kayakers, SUP, and jet skis too. No deed restrictions here! East of Historic River District & popular Downtown Riverwalk. Short bicycle or car ride to the farmers market, restaurants, park, library, public art, shopping, The South Florida Museum, Manatee Historical Village Park, Art Center Manatee, Local Award Winning Breweries, Manatee Performing Arts Center, or Lecom Baseball Park. Short distance away from the best GULF beaches, Sarasota Airport and attractions, St Pete 25-minutes away, Tampa Airport 45 minutes, Great centrally located home! Buyer to verify measurements.
Financial Considerations
Price:
$525,000
HOA Fee:
360
Tax Amount:
$7973
Price per SqFt:
$309.92
Tax Legal Description:
LOT 5 RIVERSIDE HEIGHTS SUB PI#12429.0030/4
Exterior Features
Lot Size:
12449
Lot Features:
Near Public Transit
Waterfront:
No
Parking Spaces:
N/A
Parking:
Boat, Driveway, Garage Faces Rear, Garage Faces Side
Roof:
Shingle
Pool:
No
Pool Features:
N/A
Interior Features
Bedrooms:
3
Bathrooms:
4
Heating:
Central, Electric
Cooling:
Central Air
Appliances:
Dishwasher, Disposal, Dryer, Electric Water Heater, Exhaust Fan, Range, Refrigerator, Washer
Furnished:
Yes
Floor:
Ceramic Tile, Laminate, Wood
Levels:
Three Or More
Additional Features
Property Sub Type:
Single Family Residence
Style:
N/A
Year Built:
2000
Construction Type:
Block, Other, Frame
Garage Spaces:
Yes
Covered Spaces:
N/A
Direction Faces:
West
Pets Allowed:
No
Special Condition:
None
Additional Features:
Balcony
Additional Features 2:
MUST GET A SHORT TERM RENTAL PERMIT FROM THE CITY
Map
  • Address
    103 17TH ST E
Contact a Professional
Why Choose Us?
  • Communication and Transparency
  • Skilled Negotiation
  • Robust Professional Network
  • After-Sale Support
Featured Properties

Related Properties

avt
Daniel Dourado
$ 395,000
avt
Daniel Dourado
$ 549,990
avt
Daniel Dourado
$ 379,900
avt
Daniel Dourado
$ 575,000
avt
Daniel Dourado
$ 400,000
avt
Daniel Dourado
$ 359,000
avt
Daniel Dourado
$ 535,000
avt
Daniel Dourado
$ 2,091,600