Active

$830,000

Features:
  • 3 Bedrooms
  • 4 Bathrooms
  • 2774 sq ft
Overview
  • ID: MFRA4674219
  • Bedrooms: 3
  • Bathrooms: 4
  • Size: 2774 sq ft
Property Details
Remarks
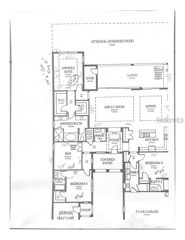
Indulge in a refined expression of luxury living with this impeccably kept WCI built Agostino model, crafted with precision and elevated finishes throughout. Set within the distinguished Tidewater Preserve community, this residence blends elegance, comfort, and thoughtful design into a truly captivating home. Offering 3 bedrooms, 3.5 bathrooms, a 2 car garage, and a separate storage building or workshop, the layout delivers both sophistication and everyday functionality. A dramatic 14 foot foyer ceiling welcomes you inside and introduces the upscale detail found across the home. Crown molding, tray ceilings, recessed lighting and 10 foot ceilings enrich each room, creating an atmosphere that feels both open and refined. The kitchen stands at the center of the home and reflects a chef’s vision, complete with Whirlpool appliances, rich Merillat cabinetry, granite countertops, and a built in gas cooktop ideal for preparing memorable meals. Each bedroom serves as its own private retreat with an en suite bathroom, ensuring comfort for residents and guests alike. Storage is abundant, highlighted by five walk in closets that enhance the home’s practicality. The den, framed by stately glass French doors, offers a quiet space suited for work, reading, or creative pursuits. Indoor living flows effortlessly to the outdoors, where an oversized pocket slider leads to the expansive lanai and a resort style setting. A 1,200 gallon heated pool and spa anchor the space, surrounded by lush landscaping and peaceful views of the 28 acre preserve. Whether relaxing or entertaining, the outdoor summer kitchen with a gas grill sets the stage for exceptional al fresco experiences. Life in Tidewater Preserve offers a collection of amenities designed to complement this elegant lifestyle. A 24 hour guard gated entrance provides peace of mind, while the private marina with boat slips and lifts grants effortless access to the Manatee River and beyond. Additional perks include resort style pools, fitness centers, tennis courts, walking trails, and a vibrant social atmosphere. Residents also enjoy the ease of maintenance-free living, low HOA fees, no CDD fee, and included cable and internet services. A home that blends luxury, privacy, and premier community living awaits. Schedule your private showing and experience the exceptional quality that defines this remarkable property. **THIS PROPERTY QUALIFIES FOR A 1% LENDER INCENTIVE IF USING PREFERRED LENDER. INQUIRE FOR MORE DETAILS.**
Financial Considerations
Price:
$830,000
HOA Fee:
1606.92
Tax Amount:
$13396.9
Price per SqFt:
$299.21
Tax Legal Description:
LOT 6 BLK B TIDEWATER PRESERVE, PLAT 2 PI#11000.5030/9
Exterior Features
Lot Size:
9953
Lot Features:
In County, Landscaped, Paved
Waterfront:
No
Parking Spaces:
N/A
Parking:
Driveway, Garage Door Opener, Golf Cart Garage, Garage
Roof:
Tile
Pool:
Yes
Pool Features:
Heated, In Ground, Lighting, Screen Enclosure
Interior Features
Bedrooms:
3
Bathrooms:
4
Heating:
Central, Electric
Cooling:
Central Air
Appliances:
Dishwasher, Disposal, Dryer, Microwave, Range, Refrigerator, Washer
Furnished:
Yes
Floor:
Tile
Levels:
One
Additional Features
Property Sub Type:
Single Family Residence
Style:
N/A
Year Built:
2013
Construction Type:
Block, Stucco
Garage Spaces:
Yes
Covered Spaces:
N/A
Direction Faces:
Northeast
Pets Allowed:
No
Special Condition:
None
Additional Features:
Outdoor Kitchen, Rain Gutters, Sliding Doors, Storage
Additional Features 2:
*HOA information to be verified by buyer/buyer’s agent.
Map
  • Address
    5209 LAKE OVERLOOK AVE
Contact a Professional
Why Choose Us?
  • Communication and Transparency
  • Skilled Negotiation
  • Robust Professional Network
  • After-Sale Support
Featured Properties

Related Properties

avt
Daniel Dourado
$ 300,000
avt
Daniel Dourado
$ 254,900
avt
Daniel Dourado
$ 835,000
avt
Daniel Dourado
$ 350,000
avt
Daniel Dourado
$ 624,990
avt
Daniel Dourado
$ 340,000