Active

$525,000

Features:
  • 2 Bedrooms
  • 2 Bathrooms
  • 1688 sq ft
Overview
  • ID: MFRA4627160
  • Bedrooms: 2
  • Bathrooms: 2
  • Size: 1688 sq ft
Property Details
Remarks
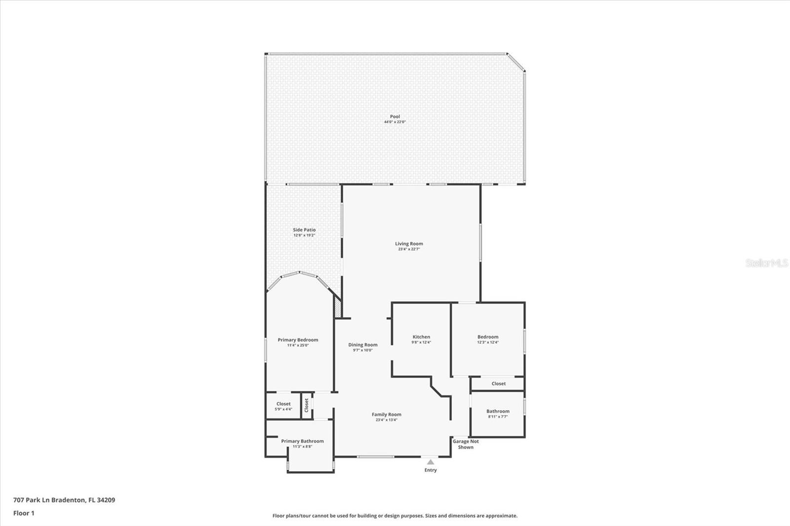
In the sought-after Harbor Hills community, this charming 2-bedroom, 2-bath residence combines a prime waterside location with a welcoming, spacious layout. Upon entering, you are greeted by the bright and open main living area, enhanced by NEW interior paint that flows throughout the home. This inviting space features built-in shelving—perfect for displaying decor, books, or personal accents—and seamlessly connects to the dining room, creating a natural area for gatherings and everyday comfort. The split-bedroom layout ensures privacy, with the primary suite on one side featuring an en suite bath and walk-in closet, while the second bedroom is located on the opposite side near a second full bathroom. The kitchen, complete with abundant cabinetry, is conveniently adjacent to the dining room and includes a pass-through window that connects to a generously sized second living room. This additional living area provides dual outdoor access: a side door leading to a cozy side/rear patio and French doors that open onto a large screened lanai. The screened lanai, featuring NEW screening, houses a sparkling in-ground pool. The fenced backyard enhances privacy and offers glimpses of the tranquil canal, which opens to the Manatee River right at the edge of Tampa Bay—ideal for boating and outdoor activities. For added comfort and efficiency, one of the two AC units is NEW, and the home also boasts NEW insulation throughout. Nestled on a quarter-acre lot, elevated 15 feet above sea level and outside of flood zones, this residence provides peace of mind and coastal convenience. Utilities include city water with well water for irrigation, and the hot water heater was updated in 2016. Boating enthusiasts will delight in the exceptional access to water activities, with Warners Bayou Boat Ramp less than a mile away, and beach lovers will relish the nearby pristine beaches of Anna Maria Island, only minutes away, offering sun-soaked days and vibrant coastal adventures. Additionally, an array of shopping, dining, and entertainment options are all within easy reach, making this home not just a place to live, but a gateway to the best of Florida’s enchanting coastal lifestyle. With a few updates, be ready to seize this opportunity and embrace your dream of serene waterside living today!
Financial Considerations
Price:
$525,000
HOA Fee:
N/A
Tax Amount:
$2012.4
Price per SqFt:
$311.02
Tax Legal Description:
LOT I BLK 1 RESUB OF HARBOR HILLS PI#37056.0000/9
Exterior Features
Lot Size:
10685
Lot Features:
N/A
Waterfront:
No
Parking Spaces:
N/A
Parking:
N/A
Roof:
Concrete, Tile
Pool:
Yes
Pool Features:
In Ground
Interior Features
Bedrooms:
2
Bathrooms:
2
Heating:
Central
Cooling:
Central Air
Appliances:
Dishwasher, Range, Refrigerator
Furnished:
No
Floor:
Terrazzo
Levels:
One
Additional Features
Property Sub Type:
Single Family Residence
Style:
N/A
Year Built:
1968
Construction Type:
Block
Garage Spaces:
Yes
Covered Spaces:
N/A
Direction Faces:
Southwest
Pets Allowed:
No
Special Condition:
None
Additional Features:
French Doors, Lighting, Rain Gutters, Sidewalk
Additional Features 2:
Must comply with city lease restrictions.
Map
  • Address
    707 PARK LN
Contact a Professional
Why Choose Us?
  • Communication and Transparency
  • Skilled Negotiation
  • Robust Professional Network
  • After-Sale Support
Featured Properties

Related Properties

avt
Daniel Dourado
$ 310,000
avt
Daniel Dourado
$ 385,000
avt
Daniel Dourado
$ 1,390,000
avt
Daniel Dourado
$ 329,900
avt
Daniel Dourado
$ 294,000
avt
Daniel Dourado
$ 635,000
avt
Daniel Dourado
$ 498,000
avt
Daniel Dourado
$ 1,050,000
avt
Daniel Dourado
$ 530,000