Active

$599,900

Features:
  • 4 Bedrooms
  • 3 Bathrooms
  • 2287 sq ft
Overview
  • ID: MFRA4615671
  • Bedrooms: 4
  • Bathrooms: 3
  • Size: 2287 sq ft
Property Details
Remarks
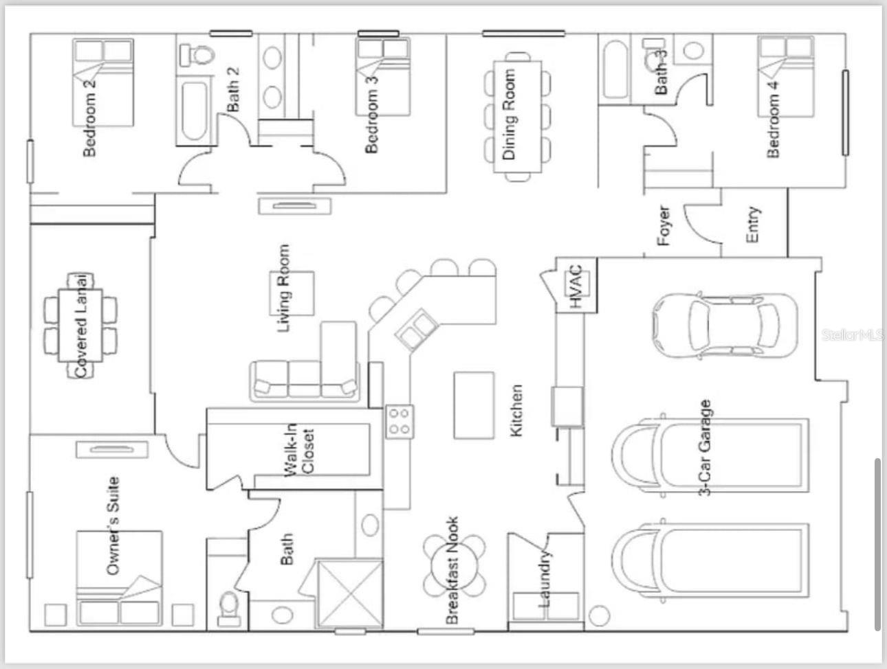
***MOTIVATED SELLER*** HUGE PRICE REDUCTION! "Don't miss out on this incredible opportunity! This stunning property, featuring 4-bedroom 3-bathroom, 3 car garage + SPA/POOL; has just been made even more attractive with a significant price reduction. It’s the perfect blend of elegance and comfort, now available at an unbeatable discount. Act fast—this dream home won't last long at this price!" This 2018 SMART HOME like new, with custom upgrades and finishes throughout. So much love and detail has been put into this home creating the perfect retreat for a relaxing escape from the world, is inviting from the moment you arrive. You will feel as if you’re in your own private oasis. Entering the bright foyer you will find an expansive open floor plan. The open kitchen boasts 2 generous skylights in the middle of the kitchen, providing a unique environment to prepare those dishes that your family loves, plus Custom cabinetry, granite countertops, an under-mount sink, tile backsplash, oversized island, and stainless-steel appliances. The large open living space has access to the covered patio with oversized glass sliders. A spacious master suite includes walk-in closets and en-suite master bathroom with a glass shower, stand-alone garden tub and double vanity. Fantastic Spa with 16 jets +1special jet was installed in 2023, perfect to taking away those days of stress and anxiety in the back patio and is still under a 2-year warranty (engine, parts) and has another 10-year warranty on paint and others. Patio cage installed 2020. making a total of 38k in updates. Low HOA & No CDD fees! Don't miss this opportunity, SCHADULE A TOUR TODAY!
Financial Considerations
Price:
$599,900
HOA Fee:
410
Tax Amount:
$2681.22
Price per SqFt:
$262.31
Tax Legal Description:
LOT 33 OSPREY LANDING PI#5647.3365/9
Exterior Features
Lot Size:
7222
Lot Features:
N/A
Waterfront:
No
Parking Spaces:
N/A
Parking:
Driveway, Garage Door Opener
Roof:
Shingle
Pool:
Yes
Pool Features:
Other, Screen Enclosure
Interior Features
Bedrooms:
4
Bathrooms:
3
Heating:
Central
Cooling:
Central Air
Appliances:
Disposal, Exhaust Fan, Microwave, Range, Refrigerator
Furnished:
No
Floor:
Tile
Levels:
One
Additional Features
Property Sub Type:
Single Family Residence
Style:
N/A
Year Built:
2018
Construction Type:
Block, Stone, Stucco
Garage Spaces:
Yes
Covered Spaces:
N/A
Direction Faces:
North
Pets Allowed:
No
Special Condition:
None
Additional Features:
Hurricane Shutters
Additional Features 2:
*HOA information to be verified by buyer/buyer's agent.
Map
  • Address
    11561 11TH AVE E
Contact a Professional
Why Choose Us?
  • Communication and Transparency
  • Skilled Negotiation
  • Robust Professional Network
  • After-Sale Support
Featured Properties

Related Properties

avt
Daniel Dourado
$ 300,000
avt
Daniel Dourado
$ 425,000
avt
Daniel Dourado
$ 399,500
avt
Daniel Dourado
$ 275,000
avt
Daniel Dourado
$ 1,200,000
avt
Daniel Dourado
$ 399,000
avt
Daniel Dourado
$ 329,000
avt
Daniel Dourado
$ 299,900
avt
Daniel Dourado
$ 539,900
avt
Daniel Dourado
$ 379,000