Pending

$575,000

Features:
  • 4 Bedrooms
  • 4 Bathrooms
  • 2895 sq ft
Overview
  • ID: MFRO6310553
  • Bedrooms: 4
  • Bathrooms: 4
  • Size: 2895 sq ft
Property Details
Remarks
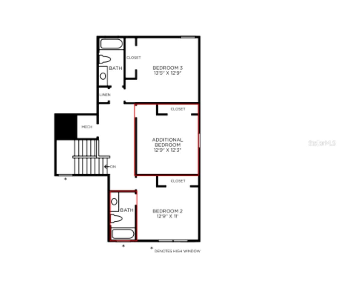
One or more photo(s) has been virtually staged. Under Construction. Modern luxury meets elegant design in this stunning Welsford Craftsman home with estimated June 2025 completion. Offering an impressive 2,895 square feet of meticulously designed living space, this exceptional residence features 4 bedrooms, 3.5 bathrooms, and premium finishes throughout. Step inside to discover an open-concept floor plan where the heart of the home shines with a gourmet kitchen featuring stainless steel appliances, quartz countertops, exterior venting range hood, and ample storage including a walk-in pantry. The free-flowing layout creates a seamless connection between the kitchen, spacious casual dining area (16'9" x 14'), and expansive great room (27' x 18') with optional tray ceiling. The luxurious first-floor primary suite (20'5" x 14') offers tranquility with an optional tray ceiling and generous walk-in closet (12'9" x 6'7"). The en-suite primary bathroom provides spa-like amenities including dual vanities, two shower niches, and a corner shower seat with frameless glass enclosure. Additional first-floor highlights include a versatile bonus room (12'2" x 12'), convenient retreat space (12'4" x 10'9"), powder room, and laundry room with utility sink. Outdoor living is elevated with a covered 40' x 8' lanai accessible through triple sliding glass doors, providing the perfect setting for entertaining. The thoughtfully designed second floor features two secondary bedrooms with closets, an additional bedroom with two closets, and two full bathrooms. This home showcases beautifully upgraded interiors throughout including premium flooring and designer finishes. Selected premium options include: Outdoor kitchen prep package with pool equipment pre-wiring Epoxy-coated garage floor in the spacious two-car garage (22' x 20'4") External keypad entry system Upgraded entry door with 3/4 lite glass panel Floor outlets in the great room Whole-house gutters Located in a sought-after community minutes from Kelly Park/Rock Springs and Wekiva Springs parks, with convenient access to Florida's Route 429. Community amenities include a resort-style pool, cabana, and future splash pad. Don't miss this FINAL OPPORTUNITY to own this exceptional Welsford Craftsman home! Schedule your appointment today to experience the perfect blend of luxury and functionality.
Financial Considerations
Price:
$575,000
HOA Fee:
98
Tax Amount:
$1404
Price per SqFt:
$198.62
Tax Legal Description:
OAKS AT KELLY PARK PHASE 1 102/79 LOT 266
Exterior Features
Lot Size:
6598
Lot Features:
Cleared, Corner Lot, Level, Sidewalk, Paved
Waterfront:
No
Parking Spaces:
N/A
Parking:
Driveway
Roof:
Shingle
Pool:
No
Pool Features:
N/A
Interior Features
Bedrooms:
4
Bathrooms:
4
Heating:
Central, Electric
Cooling:
Central Air
Appliances:
Dishwasher, Disposal, Exhaust Fan, Gas Water Heater, Microwave, Range, Tankless Water Heater
Furnished:
Yes
Floor:
Carpet, Ceramic Tile, Laminate
Levels:
Two
Additional Features
Property Sub Type:
Single Family Residence
Style:
N/A
Year Built:
2025
Construction Type:
Block, Stucco
Garage Spaces:
Yes
Covered Spaces:
N/A
Direction Faces:
East
Pets Allowed:
Yes
Special Condition:
None
Additional Features:
Sidewalk, Sliding Doors
Additional Features 2:
N/A
Map
  • Address
    2659 FIDDLE LEAF LOOP
Contact a Professional
Why Choose Us?
  • Communication and Transparency
  • Skilled Negotiation
  • Robust Professional Network
  • After-Sale Support
Featured Properties

Related Properties

avt
Daniel Dourado
$ 484,900
avt
Daniel Dourado
$ 389,000
avt
Daniel Dourado
$ 599,900
avt
Daniel Dourado
$ 235,000
avt
Daniel Dourado
$ 385,000
avt
Daniel Dourado
$ 525,000