Active

$1,049,000

Features:
  • 3 Bedrooms
  • 3 Bathrooms
  • 2115 sq ft
Overview
  • ID: MFRT3530236
  • Bedrooms: 3
  • Bathrooms: 3
  • Size: 2115 sq ft
Property Details
Remarks
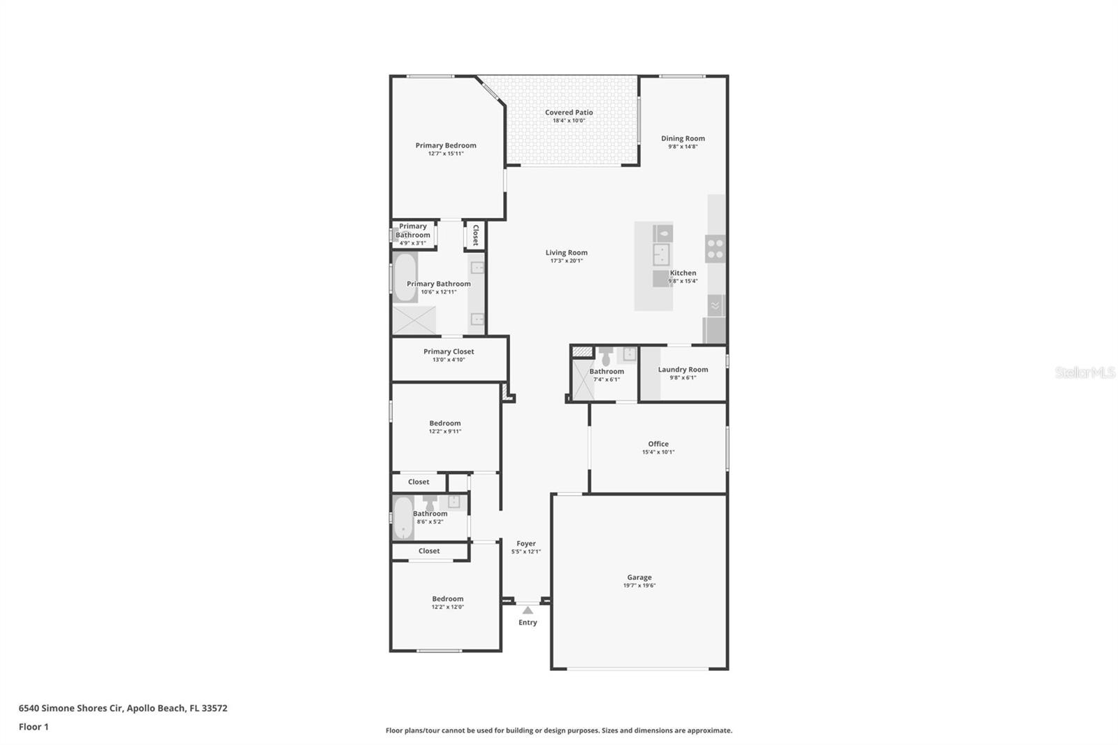
6540 Simone Shores Circle | The Marlin Floorplan 3 Beds | 3 Baths | Saltwater Pool, Spa & Dock with 10K Lift | 2-Car Garage | Direct Bay Access | 12 ft Elevation Waterfront living with direct access to Tampa Bay—this brand-new Apollo Beach pool home features a private dock with 10,000 lb lift, a heated saltwater pool and spa, and no build time required. Located in the small custom-home community of Hemingway Estates, this single-story, solar-powered home offers smart technology, high-end finishes, and strong, energy-efficient construction. Inside, the home welcomes you with smooth-finish walls, soaring ceilings, and a wide-open layout. The Great Room includes a mounted TV and electric fireplace, and the triple sliding glass doors lead straight out to the pool and canal. The kitchen includes quartz countertops, an island with waterfall edges, a built-in oven, gas cooktop with pot filler, wine fridge, and custom cabinetry with European pull-down and organizational shelving. The dining area brings in natural light and waterfront views. A private home office with barn doors and a full bath gives you the option for a guest suite, work-from-home space, or flex room. The home follows a true split-bedroom layout. Both secondary bedrooms include tray ceilings and custom closets. The primary suite is located at the rear of the home with views of the pool and water. The en suite bath includes dual vanities, a jetted soaking tub, and a floor-to-ceiling tiled walk-in shower with multiple showerheads and customizable pressure and lighting settings. This home was built for strength and energy savings, featuring full block construction, a stem wall foundation, solar tile roof with battery backup, hurricane-rated windows and doors, fire-resistant interior doors, Icynene spray foam insulation, and a hardwired security system with fingerprint and faceprint entry. Smart home features allow you to control the pool, lighting, thermostat, security, and garage right from your phone or mounted iPads. Custom lighting accents, built-in surround sound inside and out, automatic heated bidet toilets, and seamless hardware finish out the upgrades. Outdoors, the saltwater pool and spa are ready for year-round enjoyment. The private dock and lift sit behind a brand-new seawall. The two-car garage features multi-layer epoxy flooring and insulated hurricane-rated garage doors. Exterior soffit lighting is customizable—no need to hang holiday lights. Lawn care, landscaping, irrigation maintenance, and annual stormwater drain cleaning are included in the small monthly HOA. Located near schools, shopping, and major highways, 6540 Simone Shores offers modern living in a waterfront community.
Financial Considerations
Price:
$1,049,000
HOA Fee:
200
Tax Amount:
$2494
Price per SqFt:
$495.98
Tax Legal Description:
HEMINGWAY ESTATES PHASE 1-A LOT 14, plus 20 lots
Exterior Features
Lot Size:
5227
Lot Features:
FloodZone, Landscaped, Sidewalk, Paved
Waterfront:
Yes
Parking Spaces:
N/A
Parking:
Driveway, Garage Door Opener
Roof:
Other, Tile
Pool:
Yes
Pool Features:
Heated, In Ground, Salt Water
Interior Features
Bedrooms:
3
Bathrooms:
3
Heating:
Central, Heat Pump
Cooling:
Central Air
Appliances:
Built-In Oven, Cooktop, Dishwasher, Disposal, Gas Water Heater, Microwave, Range, Range Hood, Refrigerator, Tankless Water Heater, Wine Refrigerator
Furnished:
Yes
Floor:
Ceramic Tile
Levels:
One
Additional Features
Property Sub Type:
Single Family Residence
Style:
N/A
Year Built:
2025
Construction Type:
Block, Stucco
Garage Spaces:
Yes
Covered Spaces:
N/A
Direction Faces:
West
Pets Allowed:
No
Special Condition:
None
Additional Features:
Private Mailbox, Sidewalk, Sliding Doors
Additional Features 2:
No Short Term Rentals. See HOA Restrictions and HOA manager to confirm.
Map
  • Address
    6540 SIMONE SHORES CIR
Contact a Professional
Why Choose Us?
  • Communication and Transparency
  • Skilled Negotiation
  • Robust Professional Network
  • After-Sale Support
Featured Properties

Related Properties

avt
Daniel Dourado
$ 315,000
avt
Daniel Dourado
$ 439,900
avt
Daniel Dourado
$ 2,200,000
avt
Daniel Dourado
$ 499,900
avt
Daniel Dourado
$ 514,900
avt
Daniel Dourado
$ 249,000
avt
Daniel Dourado
$ 499,900