Active

$348,950

Características:
  • 3 Quartos
  • 2 Banheiros
  • 140 m²
Visão Geral
  • ID: MFRL4959685
  • Quartos: 3
  • Banheiros: 2
  • Tamanho: 140 m²
Detalhes do Imóvel
Observações
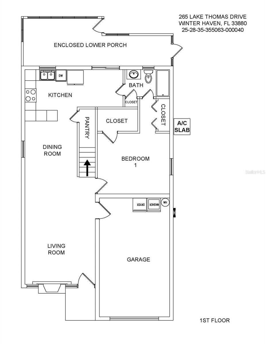
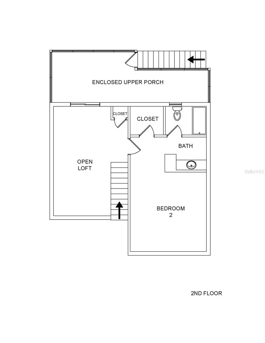
Bem-vindo a este retiro à beira do lago maravilhosamente renovado em Thomas Lake, em Winter Haven! Esta deslumbrante casa de dois andares combina atualizações modernas com caráter acolhedor e vistas deslumbrantes para o mar. Atualmente, o 3º quarto está configurado como loft, oferecendo vistas deslumbrantes para o lago e incluindo um closet. Entre nos altos tetos abobadados, criando um layout aberto e arejado, repleto de luz natural. A casa possui piso totalmente novo e uma cozinha completamente atualizada com eletrodomésticos de aço inoxidável, bancadas de quartzo, armários novos e despensa - proporcionando muito espaço de armazenamento e espaço para cozinhar ou entreter. Uma lareira aconchegante com lareira elevada e detalhes em madeira acrescenta charme e um ponto focal acolhedor à área de estar. Esta casa também possui banheiros lindamente atualizados e closets. A casa também inclui um novo aquecedor elétrico de água e A/C mais recente (2022) para maior eficiência e tranquilidade. No exterior, encontrará um telhado mais novo (2022), pintura exterior fresca, garagem anexa para 1 carro com entrada e muito espaço para desfrutar do ar livre. Relaxe ou divirta-se no amplo pátio traseiro, ou relaxe nas varandas privadas fechadas em ambos os andares, cada uma oferecendo vistas deslumbrantes e tranquilas do lago. Esta joia à beira do lago pronta para morar combina atualizações modernas, conforto e um ambiente pitoresco, tornando-se uma oportunidade rara que você não vai querer perder!
Considerações Financeiras
Preço:
$348,950
Taxa de HOA:
N/D
Valor do Imposto:
$1169
Preço por m²:
$230.03
Descrição Legal do Imposto:
UNIDADE DE MADEIRA TRÊS PB 74 PG 50 LOTE 4
Características Exteriores
Tamanho do Lote:
6033
Características do Lote:
N/D
Beira-mar:
Sim
Vagas de Estacionamento:
N/D
Estacionamento:
N/D
Telhado:
Telha
Piscina:
Não
Características da Piscina:
N/D
Características Interiores
Quartos:
3
Banheiros:
2
Aquecimento:
Central
Resfriamento:
Central Aérea
Eletrodomésticos:
Máquina de lavar louça, aquecedor elétrico de água, micro-ondas, fogão, geladeira
Mobiliado:
Sim
Andar:
Tapete, Vinil Luxo
Níveis:
Dois
Características Adicionais
Subtipo de Imóvel:
Residência Unifamiliar
Estilo:
N/D
Ano de Construção:
1985
Tipo de Construção:
Bloquear
Vagas na Garagem:
Sim
Vagas Cobertas:
N/D
Orientação da Fachada:
Sudoeste
Animais Permitidos:
Não
Condição Especial:
Nenhum
Características Adicionais:
Outro
Características Adicionais 2:
N/D
Mapa
  • Endereço
    265 LAKE THOMAS DR
Fale com um profissional
Por Que Nos Escolher?
  • Comunicação e Transparência
  • Negociação Qualificada
  • Rede Profissional Robusta
  • Suporte Pós-Venda
Propriedades em Destaque

Imóveis relacionados

avt
Daniel Dourado
$ 317,400
avt
Daniel Dourado
$ 595,000
avt
Daniel Dourado
$ 624,000
avt
Daniel Dourado
$ 445,000
avt
Daniel Dourado
$ 1,287,138
avt
Daniel Dourado
$ 698,547
avt
Daniel Dourado
$ 861,071
avt
Daniel Dourado
$ 250,000
avt
Daniel Dourado
$ 329,900
avt
Daniel Dourado
$ 389,900