Active

$690,000

Características:
  • 5 Quartos
  • 3 Banheiros
  • 327 m²
Visão Geral
  • ID: MFRO6376886
  • Quartos: 5
  • Banheiros: 3
  • Tamanho: 327 m²
Detalhes do Imóvel
Observações
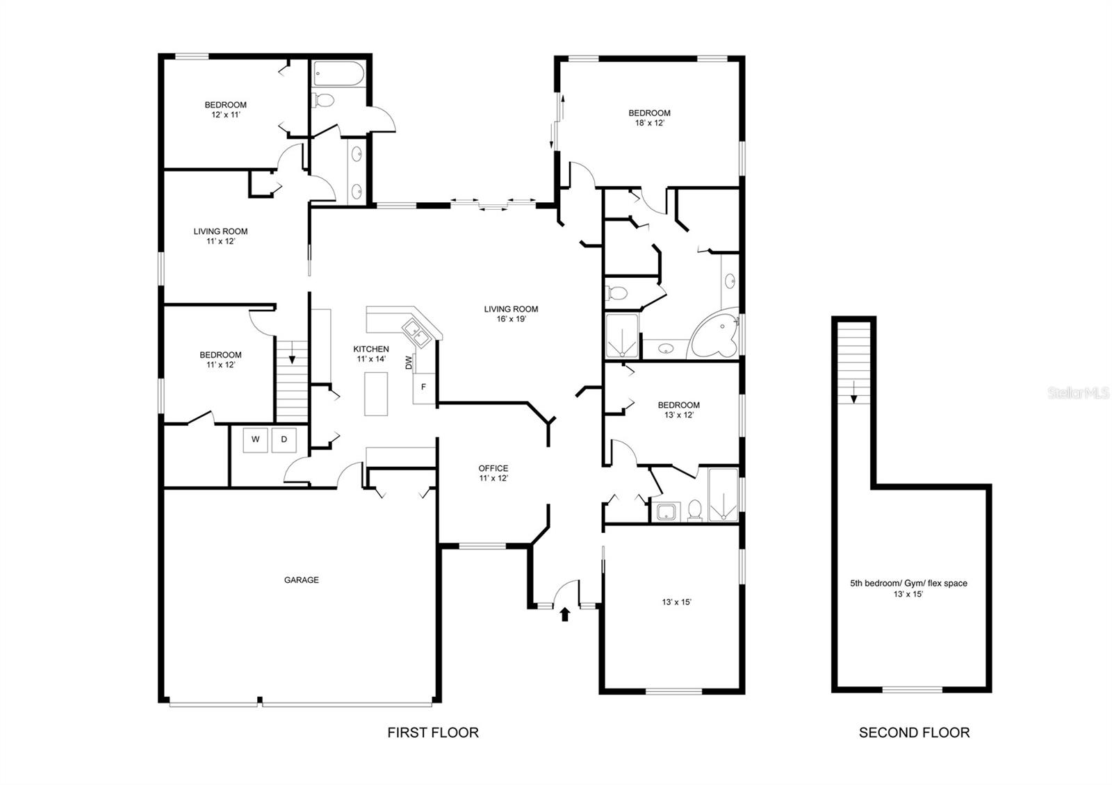
Uma ou mais fotos foram virtualmente encenadas. ****VENDEDOR MOTIVADO. O VENDEDOR CONSIDERARÁ CONCESSÕES SE FEITAS EM UMA OFERTA****Bem-vindo ao 2425 Prairie View Drive no desejável Winter Garden! Esta casa espaçosa e bem iluminada de 5 quartos oferece um belo piso por toda parte - sem carpete em nenhum lugar - e um layout altamente flexível. Realmente, existe espaço e lugar para tudo e todos! Todas as principais áreas de estar e quartos estão convenientemente localizados no térreo, com exceção do quinto quarto no andar de cima, atualmente usado como academia. O espaço no andar de cima inclui um armário e pode facilmente servir como loft, escritório ou sala bônus. Separado do quarto principal, há outro quarto com banheiro privativo. Desfrute de tranquilidade com um NOVO TELHADO 2025, um quintal totalmente cercado e um pátio coberto e protegido, ideal para relaxar ou se divertir. O quadro elétrico foi atualizado para um GERADOR DE CASA INTEIRA (vendido junto com a casa). A luz natural abundante, o zoneamento escolar com classificação A e uma excelente localização fazem desta casa um destaque. Esta comunidade é FECHADA. Agende sua exibição privada hoje. (Uma planta baixa está incluída nas fotos para uma melhor apreciação do espaço.)
Considerações Financeiras
Preço:
$690,000
Taxa de HOA:
500
Valor do Imposto:
$8317.13
Preço por m²:
$195.8
Descrição Legal do Imposto:
WINTERMERE POINTE PH 2 46/141 LOTE 3
Características Exteriores
Tamanho do Lote:
10372
Características do Lote:
N/D
Beira-mar:
Não
Vagas de Estacionamento:
N/D
Estacionamento:
N/D
Telhado:
Telha
Piscina:
Não
Características da Piscina:
N/D
Características Interiores
Quartos:
5
Banheiros:
3
Aquecimento:
Central
Resfriamento:
Central Aérea
Eletrodomésticos:
Descarte, Microondas, Geladeira
Mobiliado:
Sim
Andar:
Madeira nobre, vinil luxuoso
Níveis:
Dois
Características Adicionais
Subtipo de Imóvel:
Residência Unifamiliar
Estilo:
N/D
Ano de Construção:
2003
Tipo de Construção:
Bloquear
Vagas na Garagem:
Sim
Vagas Cobertas:
N/D
Orientação da Fachada:
Noroeste
Animais Permitidos:
Não
Condição Especial:
Nenhum
Características Adicionais:
Pátio privativo, calçada, portas de correr
Características Adicionais 2:
Comprador e agente do comprador para confirmar todas as restrições.
Mapa
  • Endereço
    2425 PRAIRIE VIEW DR
Fale com um profissional
Por Que Nos Escolher?
  • Comunicação e Transparência
  • Negociação Qualificada
  • Rede Profissional Robusta
  • Suporte Pós-Venda
Propriedades em Destaque

Imóveis relacionados

avt
Daniel Dourado
$ 312,200
avt
Daniel Dourado
$ 339,900
avt
Daniel Dourado
$ 410,000
avt
Daniel Dourado
$ 1,125,000
avt
Daniel Dourado
$ 795,000
avt
Daniel Dourado
$ 675,000
avt
Daniel Dourado
$ 459,000