Active

$645,000

Características:
  • 4 Quartos
  • 3 Banheiros
  • 263 m²
Visão Geral
  • ID: MFRO6228010
  • Quartos: 4
  • Banheiros: 3
  • Tamanho: 263 m²
Detalhes do Imóvel
Observações
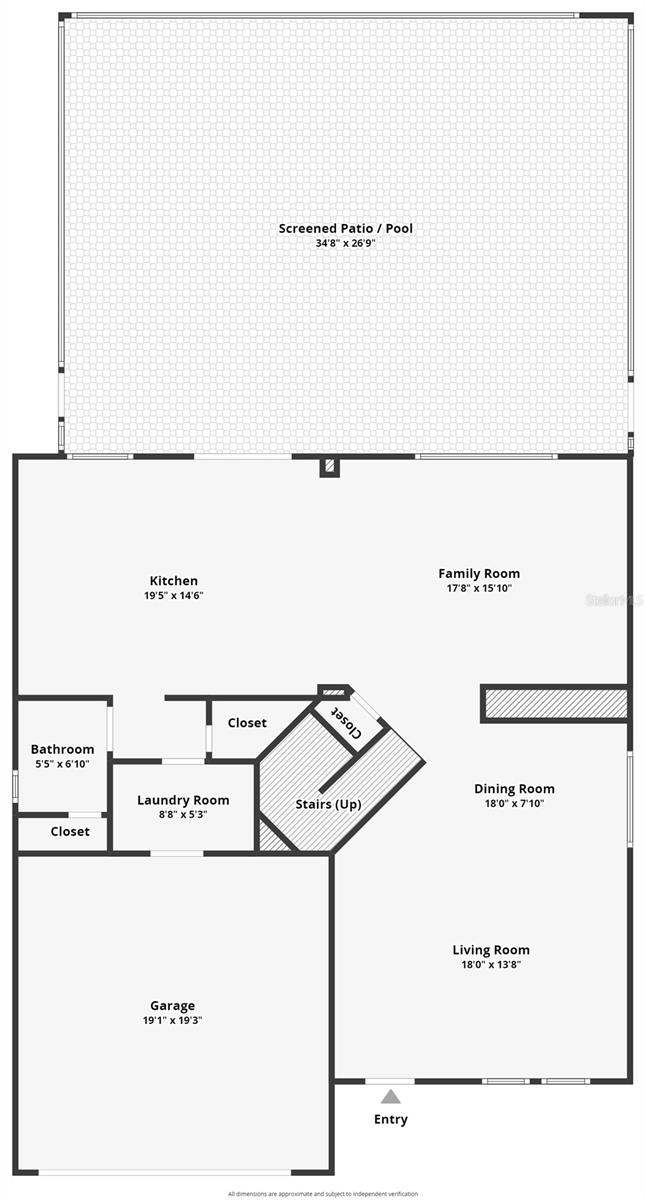
Novo preço excepcional: $ 645.000 Bem-vindo à 713 Tranquil Trail, Winter Garden, FL. Esta requintada casa com piscina de 4 quartos no Black Lake Park oferece um design de conceito aberto perfeito para entretenimento. Desfrute de áreas de estar espaçosas no térreo e de todos os quartos, além de uma sala bônus privativa, situada no andar de cima. A Suíte do Proprietário, convenientemente perto da sala bônus, oferece um retiro luxuoso com banheiro privativo tipo spa. A casa dispõe de amplo espaço para receber hóspedes, incluindo uma sala de estar e jantar formal, ideal para jantares à luz de velas. A área de estar/jantar flui perfeitamente para a ampla sala familiar, que possui tetos altos e uma grande cozinha aberta equipada com eletrodomésticos de aço inoxidável, ideais para entusiastas da culinária. Deleite-se com a vista da piscina privada a partir do quarto familiar. O quintal é totalmente cercado e a piscina é cercada por uma área protegida, oferecendo muito espaço para atividades como futebol ou críquete. As atualizações recentes incluem um novo telhado (2021) e um sistema HVAC atualizado (2020). Situada em um condomínio fechado, esta casa é uma joia escondida, com paisagismo exuberante e uma variedade de comodidades: acesso ao lago com rampa para barcos e píer de pesca, três lagos, piscina comunitária, playgrounds e quadras de basquete, tênis e pickleball. . Um grande mirante e um campo de futebol particular melhoram ainda mais a experiência da comunidade. Convenientemente localizada a poucos passos de Winter Garden Village e oferecendo fácil acesso às principais estradas e atrações como Orlando e Disney World, esta casa combina luxo e conveniência. Ligue hoje para agendar sua exibição privada!
Considerações Financeiras
Preço:
$645,000
Taxa de HOA:
370
Valor do Imposto:
$4299
Preço por m²:
$227.59
Descrição Legal do Imposto:
BLACK LAKE PARK FASE 2 64/1 LOTE 74
Características Exteriores
Tamanho do Lote:
7941
Características do Lote:
Paisagístico, Privado, Calçada, Pavimentado
Beira-mar:
Não
Vagas de Estacionamento:
N/D
Estacionamento:
Estacionamento na calçada, entrada de automóveis, abridor de porta de garagem, na rua
Telhado:
Telha
Piscina:
Sim
Características da Piscina:
Cerca de segurança infantil, deck, gunite, iluminação, tela de proteção
Características Interiores
Quartos:
4
Banheiros:
3
Aquecimento:
Central
Resfriamento:
Central Aérea
Eletrodomésticos:
Máquina de lavar louça, descarte, aquecedor elétrico de água, micro-ondas, fogão, exaustor, geladeira
Mobiliado:
Sim
Andar:
Carpete, Azulejo Cerâmico, Laminado
Níveis:
Dois
Características Adicionais
Subtipo de Imóvel:
Residência Unifamiliar
Estilo:
N/D
Ano de Construção:
2006
Tipo de Construção:
Bloco, estuque, moldura de madeira
Vagas na Garagem:
Sim
Vagas Cobertas:
N/D
Orientação da Fachada:
Oeste
Animais Permitidos:
Sim
Condição Especial:
Nenhum
Características Adicionais:
Sistema de irrigação, portas deslizantes
Características Adicionais 2:
Revise os documentos HOA para regras e restrições
Mapa
  • Endereço
    713 TRANQUIL TRL
Fale com um profissional
Por Que Nos Escolher?
  • Comunicação e Transparência
  • Negociação Qualificada
  • Rede Profissional Robusta
  • Suporte Pós-Venda
Propriedades em Destaque

Imóveis relacionados

avt
Daniel Dourado
$ 240,000
avt
Daniel Dourado
$ 359,000
avt
Daniel Dourado
$ 279,000
avt
Daniel Dourado
$ 749,000
avt
Daniel Dourado
$ 274,900
avt
Daniel Dourado
$ 2,175,000
avt
Daniel Dourado
$ 599,900
avt
Daniel Dourado
$ 529,990