Active

$345,000

Características:
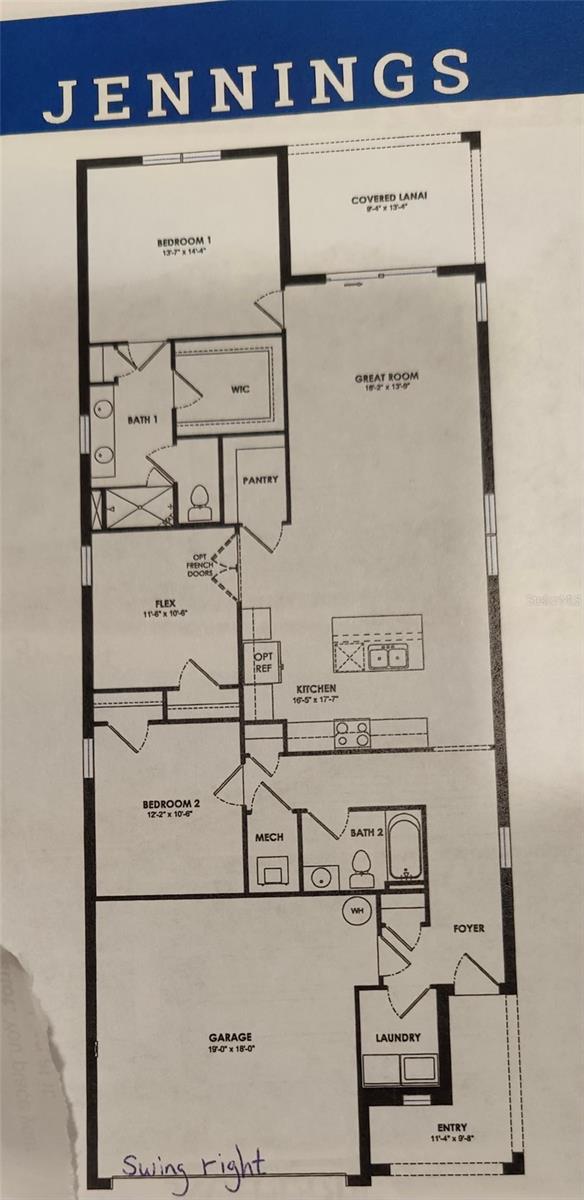
  • 3 Quartos
  • 2 Banheiros
  • 149 m²
Visão Geral
  • ID: MFROM688782
  • Quartos: 3
  • Banheiros: 2
  • Tamanho: 149 m²
Detalhes do Imóvel
Observações
Bem-vindo à casa dos seus sonhos! Esta residência lindamente conservada de 3 quartos e 2 banheiros oferece uma combinação perfeita de conforto e estilo. Ao entrar, você será recebido por uma espaçosa planta aberta repleta de luz natural. A convidativa sala de estar flui perfeitamente para uma cozinha moderna completa com amplo balcão. A suíte principal dispõe de banheiro privativo, oferecendo um retiro tranquilo com pia dupla e box amplo. Dois quartos adicionais bem equipados oferecem versatilidade para hóspedes, um escritório doméstico ou uma sala de jogos. Com garagem para dois carros e acesso conveniente a comodidades locais, parques e escolas, esta casa está idealmente situada para o estilo de vida atual. Cuidados com o gramado, Spectrum e clubhouse incluídos
Considerações Financeiras
Preço:
$345,000
Taxa de HOA:
402
Valor do Imposto:
$2702.27
Preço por m²:
$213.75
Descrição Legal do Imposto:
LOTE 61 BEAUMONT FASE I PB 18 PGS 13-13Q
Características Exteriores
Tamanho do Lote:
6137
Características do Lote:
N/D
Beira-mar:
Não
Vagas de Estacionamento:
N/D
Estacionamento:
Abridor de porta de garagem
Telhado:
Telha
Piscina:
Não
Características da Piscina:
N/D
Características Interiores
Quartos:
3
Banheiros:
2
Aquecimento:
Central
Resfriamento:
Central Aérea
Eletrodomésticos:
Máquina de lavar louça, aquecedor elétrico de água, micro-ondas, fogão, geladeira
Mobiliado:
Não
Andar:
Azulejo Cerâmico
Níveis:
Um
Características Adicionais
Subtipo de Imóvel:
Residência Unifamiliar
Estilo:
N/D
Ano de Construção:
2022
Tipo de Construção:
Bloco, Estuque
Vagas na Garagem:
Sim
Vagas Cobertas:
N/D
Orientação da Fachada:
Oeste
Animais Permitidos:
Sim
Condição Especial:
Nenhum
Características Adicionais:
Portas deslizantes
Características Adicionais 2:
N/D
Mapa
  • Endereço
    7801 PENROSE PL
Fale com um profissional
Por Que Nos Escolher?
  • Comunicação e Transparência
  • Negociação Qualificada
  • Rede Profissional Robusta
  • Suporte Pós-Venda
Propriedades em Destaque

Imóveis relacionados

avt
Daniel Dourado
$ 750,000
avt
Daniel Dourado
$ 384,990
avt
Daniel Dourado
$ 1,195,000
avt
Daniel Dourado
$ 675,000
avt
Daniel Dourado
$ 379,500
avt
Daniel Dourado
$ 355,000
avt
Daniel Dourado
$ 269,900
avt
Daniel Dourado
$ 589,900
avt
Daniel Dourado
$ 795,000
avt
Daniel Dourado
$ 600,000