Active

$1,198,000

Características:
  • 7 Quartos
  • 5 Banheiros
  • 338 m²
Visão Geral
  • ID: MFRTB8314788
  • Quartos: 7
  • Banheiros: 5
  • Tamanho: 338 m²
Detalhes do Imóvel
Observações
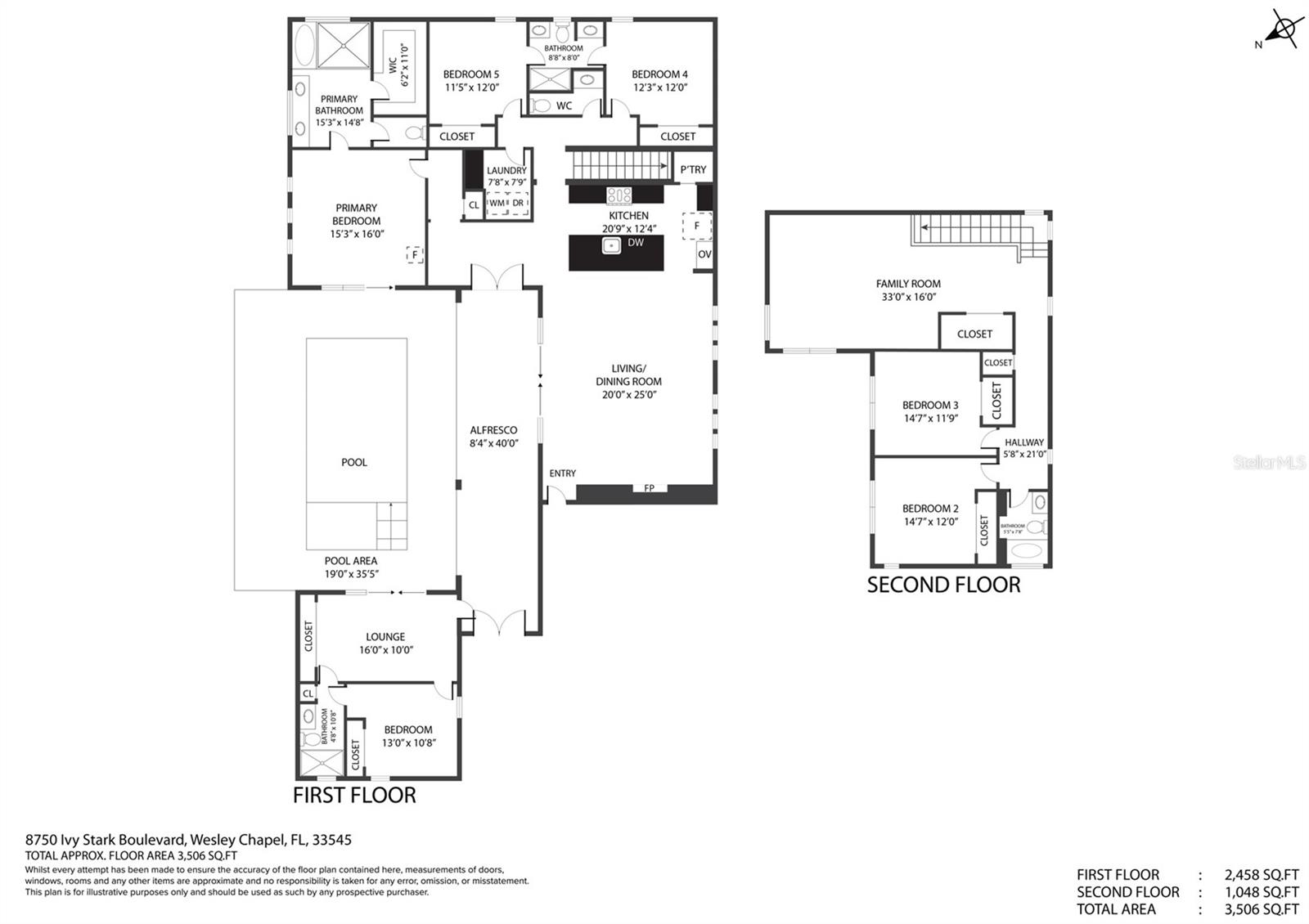
Experimente o que há de melhor na vida de luxo na altamente desejável comunidade Epperson Ranch. Esta espetacular casa de 7 quartos e 4,5 banheiros foi projetada para oferecer conforto e elegância, oferecendo uma variedade de upgrades e comodidades de alta qualidade que a tornam perfeita para entretenimento e relaxamento. O oásis no quintal possui uma bela piscina com borda de bronzeamento, luzes embutidas que oferecem várias opções de cores para uma atmosfera noturna encantadora, um borbulhador relaxante e preparação pré-instalada para um aquecedor ou sistema solar - proporcionando flexibilidade para diversão durante todo o ano. . O espaço externo é ainda mais aprimorado pela iluminação controlada por aplicativo recém-instalada, permitindo personalizar cores e definir temas festivos para qualquer ocasião. Desfrute da vida ao ar livre com uma cerca recém-instalada para maior privacidade, uma fogueira personalizada perfeita para se reunir com amigos e familiares e um pátio estendido ideal para refeições ao ar livre. A casa também possui um playground e um centro de entretenimento personalizado com alto-falantes integrados para a melhor experiência de home theater. Por dentro, a casa está repleta de atualizações cuidadosas: uma espaçosa suíte para sogros com dois quartos e um banheiro completo, ventiladores de teto inteligentes, luminárias atualizadas, um amaciante de água para toda a casa e um sistema de filtragem de água dedicado para a geladeira. A suíte principal possui um armário personalizado da California Closets, e outro quarto no térreo também inclui um armário personalizado para armazenamento adicional. A escada personalizada com iluminação embutida e janelas com classificação de furacão Categoria 5 acrescenta elegância e segurança, enquanto a fiação Ethernet CAT5 garante conectividade perfeita. A casa está equipada com um carregador EV conveniente, perfeito para uma vida ecológica e para atender às necessidades de veículos elétricos. Situada num desejável terreno de esquina, esta casa oferece privacidade e proximidade de comodidades fantásticas. Você estará a uma curta distância do novíssimo Publix, do Starbucks e de um posto de gasolina próximo. Além disso, são apenas 4 minutos até Publix, 10 minutos até a I-75 e 10 minutos até o Tampa General Hospital Urgent Care, em Wesley Chapel. Os residentes do Epperson Ranch desfrutam de acesso exclusivo à famosa Lagoa Epperson e à nova Lagoa em Mirada – a maior lagoa dos EUA – perfeita para recreação e relaxamento sem fim. Não perca a chance de possuir esta propriedade excepcional em um dos bairros mais cobiçados de Wesley Chapel. Agende hoje mesmo sua exibição privada e comece a viver o estilo de vida que você sempre sonhou!
Considerações Financeiras
Preço:
$1,198,000
Taxa de HOA:
129
Valor do Imposto:
$3744.04
Preço por m²:
$328.4
Descrição Legal do Imposto:
EPPERSON NORTH VILLAGE D-1 PB 81 PG 54 BLOCO 17 LOTE 29
Características Exteriores
Tamanho do Lote:
13406
Características do Lote:
Lote de esquina, paisagístico, nivelado, calçada
Beira-mar:
Não
Vagas de Estacionamento:
N/D
Estacionamento:
Entrada de automóveis, estação(ões) de carregamento de veículos elétricos
Telhado:
Telha, ardósia
Piscina:
Sim
Características da Piscina:
Cerca de segurança infantil, iluminação de fibra óptica, no solo, iluminação, alarme de piscina, água salgada
Características Interiores
Quartos:
7
Banheiros:
5
Aquecimento:
Central, Elétrica, Propano
Resfriamento:
Central Aérea
Eletrodomésticos:
Forno embutido, máquina de lavar louça, descarte, aquecedor elétrico de água, sistema de osmose reversa de cozinha, micro-ondas, exaustor, compactador de lixo, sistema de filtragem de água, amaciante de água
Mobiliado:
Sim
Andar:
Tapete, Azulejo
Níveis:
Dois
Características Adicionais
Subtipo de Imóvel:
Residência Unifamiliar
Estilo:
N/D
Ano de Construção:
2023
Tipo de Construção:
Bloco, concreto, estuque
Vagas na Garagem:
Sim
Vagas Cobertas:
N/D
Orientação da Fachada:
Noroeste
Animais Permitidos:
Não
Condição Especial:
Nenhum
Características Adicionais:
Portas francesas, sistema de irrigação, iluminação, churrasqueira externa, calhas de chuva, calçada, portas de correr
Características Adicionais 2:
Aluguel mínimo de 6 meses não superior a 1 ano, HOA deve aprovar
Mapa
  • Endereço
    8750 IVY STARK BLVD
Fale com um profissional
Por Que Nos Escolher?
  • Comunicação e Transparência
  • Negociação Qualificada
  • Rede Profissional Robusta
  • Suporte Pós-Venda
Propriedades em Destaque

Imóveis relacionados

avt
Daniel Dourado
$ 360,000
avt
Daniel Dourado
$ 1,999,500
avt
Daniel Dourado
$ 619,900
avt
Daniel Dourado
$ 615,000
avt
Daniel Dourado
$ 510,000
avt
Daniel Dourado
$ 459,000
avt
Daniel Dourado
$ 525,000
avt
Daniel Dourado
$ 650,000
avt
Daniel Dourado
$ 255,000
avt
Daniel Dourado
$ 317,000