Active

$365,000

Características:
  • 4 Quartos
  • 2 Banheiros
  • 176 m²
Visão Geral
  • ID: MFRW7880246
  • Quartos: 4
  • Banheiros: 2
  • Tamanho: 176 m²
Detalhes do Imóvel
Observações
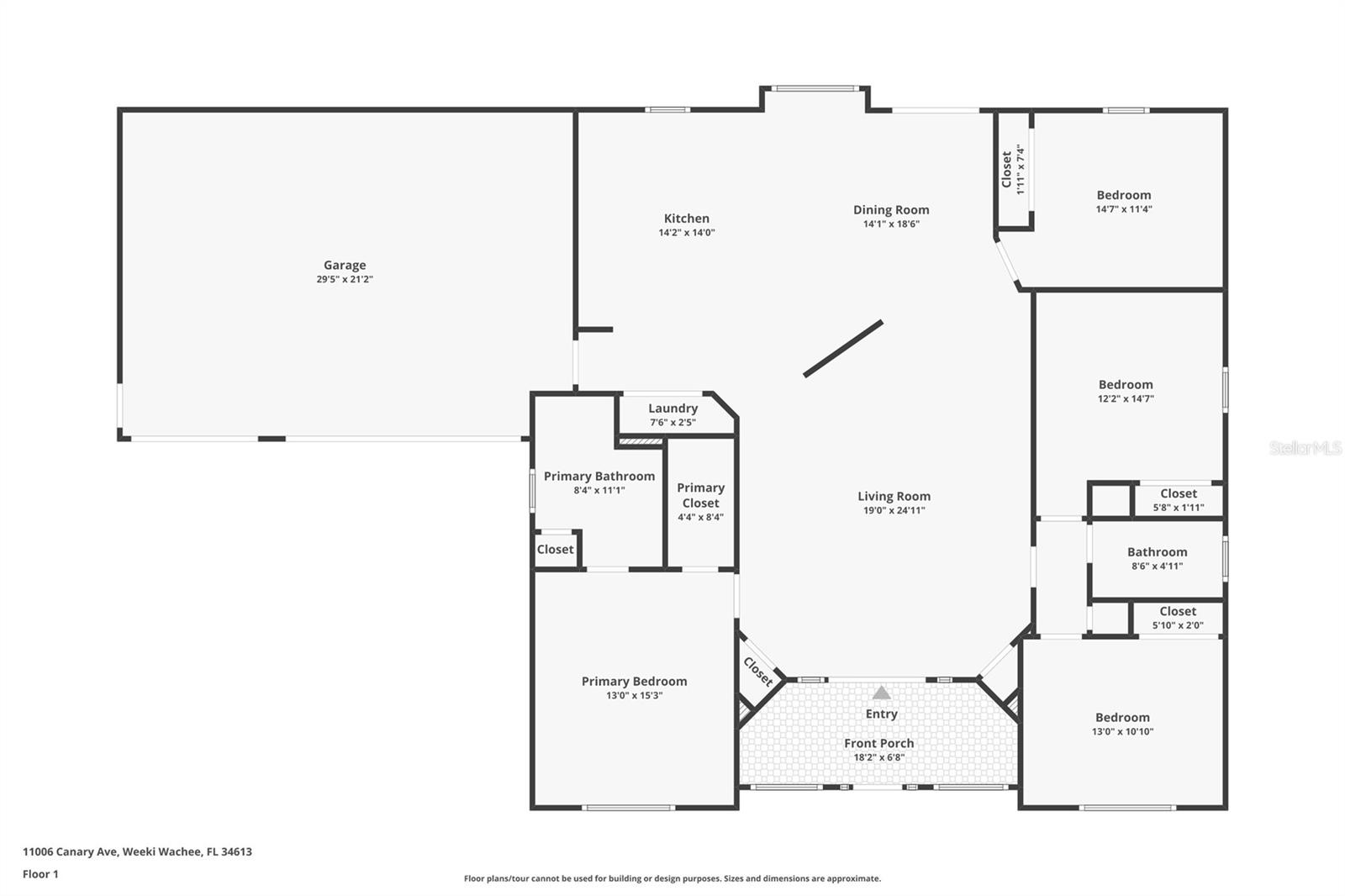
Bem-vindo a uma casa verdadeiramente especial situada em um enorme terreno de esquina de meio acre, onde espaço e privacidade se combinam para criar uma oferta rara nesta desejável área de Weeki Wachee. Um telhado totalmente novo, concluído em agosto de 2025, proporciona tranquilidade duradoura e agrega valor à casa. À medida que você se aproxima, o encantador telhado de duas águas e a acolhedora varanda frontal o cumprimentam - este espaço único, sob o telhado principal e que oferece muita privacidade, parece um retiro aconchegante ao ar livre, mas serve como uma graciosa entrada para a casa. Passe por portas francesas duplas com luzes laterais correspondentes em um hall de entrada luminoso, onde o piso de cerâmica se estende até uma sala de estar ancorada por tetos abobadados, grandes janelas de empena que banham o espaço com luz natural e um belo piso de madeira sob os pés; a sala ainda possui dois armários, agregando armazenamento versátil em um layout de conceito aberto que flui diretamente para o coração da casa. A cozinha brilha com balcões elegantes, uma ilha central, pia dupla sob uma janela com vista para o quintal e piso de cerâmica, enquanto a área de jantar adjacente oferece assento embutido na janela e portas francesas que dão para o oásis do quintal. Nos bastidores, perto da cozinha, você encontrará o conveniente armário da lavanderia. No lado oposto da casa, quatro quartos espaçosos oferecem amplo espaço para família ou convidados; a suíte principal possui piso em carpete, banheiro privativo com pias duplas, combinação de banheira/chuveiro e closet. O segundo banheiro reflete o layout da banheira/chuveiro com uma única pia. Do lado de fora, o quintal completamente cercado com cercas de PVC branco e portões laterais oferece um grande quintal arborizado, uma pequena fogueira para noites aconchegantes e um pátio de concreto sombreado por toldos sobre as portas francesas e janelas próximas - um cenário perfeito para jardinagem, brincar ou simplesmente aproveitar a vida na Flórida. A garagem para três carros agrega enorme valor e flexibilidade. E logo além da sua porta, você está localizado perto de um dos destinos mais encantadores da Flórida – o amado Weeki Wachee Springs State Park – onde você pode assistir aos icônicos shows de sereias e flutuar nas águas cristalinas do rio Weeki Wachee em meio ao esplendor da natureza. Esta casa combina elegância, espaço para passear, atualizações de qualidade e acesso imediato a um dos playgrounds mais mágicos do Sunshine State - tudo em um ambiente sereno de esquina.
Considerações Financeiras
Preço:
$365,000
Taxa de HOA:
N/D
Valor do Imposto:
$3605
Preço por m²:
$192.41
Descrição Legal do Imposto:
UNIDADE ROYAL HIGHLANDS 9 BLK 139 LOTE 8
Características Exteriores
Tamanho do Lote:
22183
Características do Lote:
Lote de Esquina, Lote Irregular, Pavimentado
Beira-mar:
Não
Vagas de Estacionamento:
N/D
Estacionamento:
Abridor de porta de garagem, nível do solo, fora da rua
Telhado:
Telha
Piscina:
Não
Características da Piscina:
N/D
Características Interiores
Quartos:
4
Banheiros:
2
Aquecimento:
Central, Elétrica
Resfriamento:
Central Aérea
Eletrodomésticos:
Máquina de lavar louça, micro-ondas, fogão, geladeira
Mobiliado:
Não
Andar:
Tapete, Azulejo Cerâmico
Níveis:
Um
Características Adicionais
Subtipo de Imóvel:
Residência Unifamiliar
Estilo:
N/D
Ano de Construção:
2007
Tipo de Construção:
Bloco, Estuque
Vagas na Garagem:
Sim
Vagas Cobertas:
N/D
Orientação da Fachada:
Norte
Animais Permitidos:
Sim
Condição Especial:
Nenhum
Características Adicionais:
Toldo(s), calhas de chuva
Características Adicionais 2:
Comprador/Agente Comprador para verificar quaisquer restrições de locação.
Mapa
  • Endereço
    11006 CANARY AVE
Fale com um profissional
Por Que Nos Escolher?
  • Comunicação e Transparência
  • Negociação Qualificada
  • Rede Profissional Robusta
  • Suporte Pós-Venda
Propriedades em Destaque

Imóveis relacionados

avt
Daniel Dourado
$ 470,000
avt
Daniel Dourado
$ 429,000
avt
Daniel Dourado
$ 465,000
avt
Daniel Dourado
$ 299,000
avt
Daniel Dourado
$ 695,000
avt
Daniel Dourado
$ 499,000