Active

$315,000

Características:
  • 3 Quartos
  • 3 Banheiros
  • 181 m²
Visão Geral
  • ID: MFRTB8433453
  • Quartos: 3
  • Banheiros: 3
  • Tamanho: 181 m²
Detalhes do Imóvel
Observações
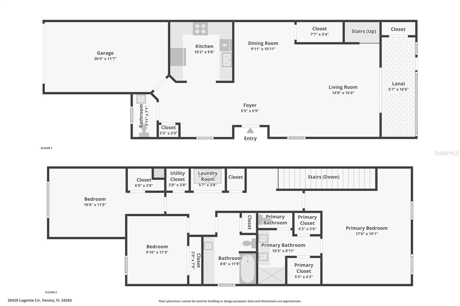
O vendedor está oferecendo US$ 5 mil para custos de fechamento**** Mobiliado pronto para uso! NÃO em uma zona de inundação! Esta encantadora residência urbana de esquina foi projetada para oferecer conforto e estilo, começando com uma acolhedora passarela que leva à sua garagem privativa e varanda frontal. Entre e você será recebido por uma área de estar de conceito aberto que parece iluminada, convidativa e perfeita para relaxar e se divertir. Tratamentos de janela de alta qualidade (um investimento significativo para o vendedor) transmitem elegância e oferecem privacidade. Esta é uma moradia geminada pouco usada e com manutenção impecável. Os espaços de estar e de jantar fluem facilmente para uma varanda coberta com tela e vista para o lago - completa com uma sombra adicional para bloquear o sol da tarde, tornando-o o local perfeito para o café da manhã ou uma taça de vinho à noite. A cozinha possui bancadas de granito, eletrodomésticos de aço inoxidável e uma barra de café da manhã que mantém você conectado enquanto cozinha ou hospeda. No andar de cima, o carpete macio leva você à suíte principal com dois closets, pias duplas e um amplo box com chuveiro. Dois quartos adicionais oferecem flexibilidade para hóspedes, home office ou hobbies, e compartilham um banheiro completo. Você também vai adorar a conveniência do armário da lavanderia no andar de cima, o armazenamento generoso em toda a casa e a tranquilidade com uma câmera Ring já instalada. Para maior valor e segurança, todas as janelas e portas são protegidas por venezianas instaladas recentemente em setembro de 2025. Viver em Gran Paradiso significa mais do que apenas uma bela casa: é um estilo de vida. Este condomínio fechado 24 horas oferece uma incrível variedade de comodidades em estilo resort, desde piscina cintilante e academia com aulas até quadras de pickleball, tênis e basquete. O clube tem algo para todos, incluindo biblioteca, sala de artesanato, bilhar, pingue-pongue, salas de jogos, além de sauna a vapor e sauna para relaxamento total. Com a sua localização ideal em Veneza, esta casa oferece tranquilidade e conveniência. Aproveite o estilo de vida pronto para uso e a comunidade calorosa e acolhedora desta residência excepcional. Não perca a oportunidade de chamar de sua esta excepcional moradia: o estilo de vida Gran Paradiso está à sua espera!
Considerações Financeiras
Preço:
$315,000
Taxa de HOA:
831
Valor do Imposto:
$6727.69
Preço por m²:
$161.62
Descrição Legal do Imposto:
Lote 168, Gran Paradiso Townhomes Fase 1b, PB 51 PG 175-181
Características Exteriores
Tamanho do Lote:
4597
Características do Lote:
Ajardinado, Calçada, Pavimentado
Beira-mar:
Não
Vagas de Estacionamento:
N/D
Estacionamento:
Coberto, entrada de automóveis, abridor de porta de garagem
Telhado:
Concreto, Azulejo
Piscina:
Não
Características da Piscina:
Outro
Características Interiores
Quartos:
3
Banheiros:
3
Aquecimento:
Central, Elétrica
Resfriamento:
Central Aérea
Eletrodomésticos:
Máquina de lavar louça, secadora, micro-ondas, fogão, geladeira, lavadora
Mobiliado:
Não
Andar:
Tapete, Azulejo
Níveis:
Dois
Características Adicionais
Subtipo de Imóvel:
Moradia
Estilo:
N/D
Ano de Construção:
2021
Tipo de Construção:
Concreto, Estuque
Vagas na Garagem:
Sim
Vagas Cobertas:
N/D
Orientação da Fachada:
Sudeste
Animais Permitidos:
Não
Condição Especial:
Nenhum
Características Adicionais:
Persianas contra furacões, calhas de chuva, calçadas, portas deslizantes
Características Adicionais 2:
Consulte o HOA para restrições
Mapa
  • Endereço
    20429 LAGENTE CIR
Fale com um profissional
Por Que Nos Escolher?
  • Comunicação e Transparência
  • Negociação Qualificada
  • Rede Profissional Robusta
  • Suporte Pós-Venda
Propriedades em Destaque

Imóveis relacionados

avt
Daniel Dourado
$ 374,990
avt
Daniel Dourado
$ 590,000
img
  • Featured
  • Active
Townhouse

4600 ORCHARD VIEW ALY

  • 4
  • 3
  • 171 m²
avt
Daniel Dourado
$ 444,990
avt
Daniel Dourado
$ 795,000
img
  • Featured
  • Active
Townhouse

4561 ORCHARD VIEW ALY

  • 3
  • 3
  • 153 m²
avt
Daniel Dourado
$ 419,990
img
  • Featured
  • Active
Townhouse

4553 ORCHARD VIEW ALY

  • 3
  • 3
  • 153 m²
avt
Daniel Dourado
$ 419,990
avt
Daniel Dourado
$ 414,900
img
  • Featured
  • Active
Townhouse

4596 ORCHARD VIEW ALY

  • 3
  • 3
  • 153 m²
avt
Daniel Dourado
$ 412,490
img
  • Featured
  • Active
Townhouse

106 36th St N 1ST AVE N #3D

  • 3
  • 2
  • 147 m²
avt
Daniel Dourado
$ 699,000
avt
Daniel Dourado
$ 249,900
avt
Daniel Dourado
$ 619,000
avt
Daniel Dourado
$ 234,500