Sold

$899,000

Características:
  • 3 Quartos
  • 2 Banheiros
  • 192 m²
Visão Geral
  • ID: MFRG5092233
  • Quartos: 3
  • Banheiros: 2
  • Tamanho: 192 m²
Detalhes do Imóvel
Observações
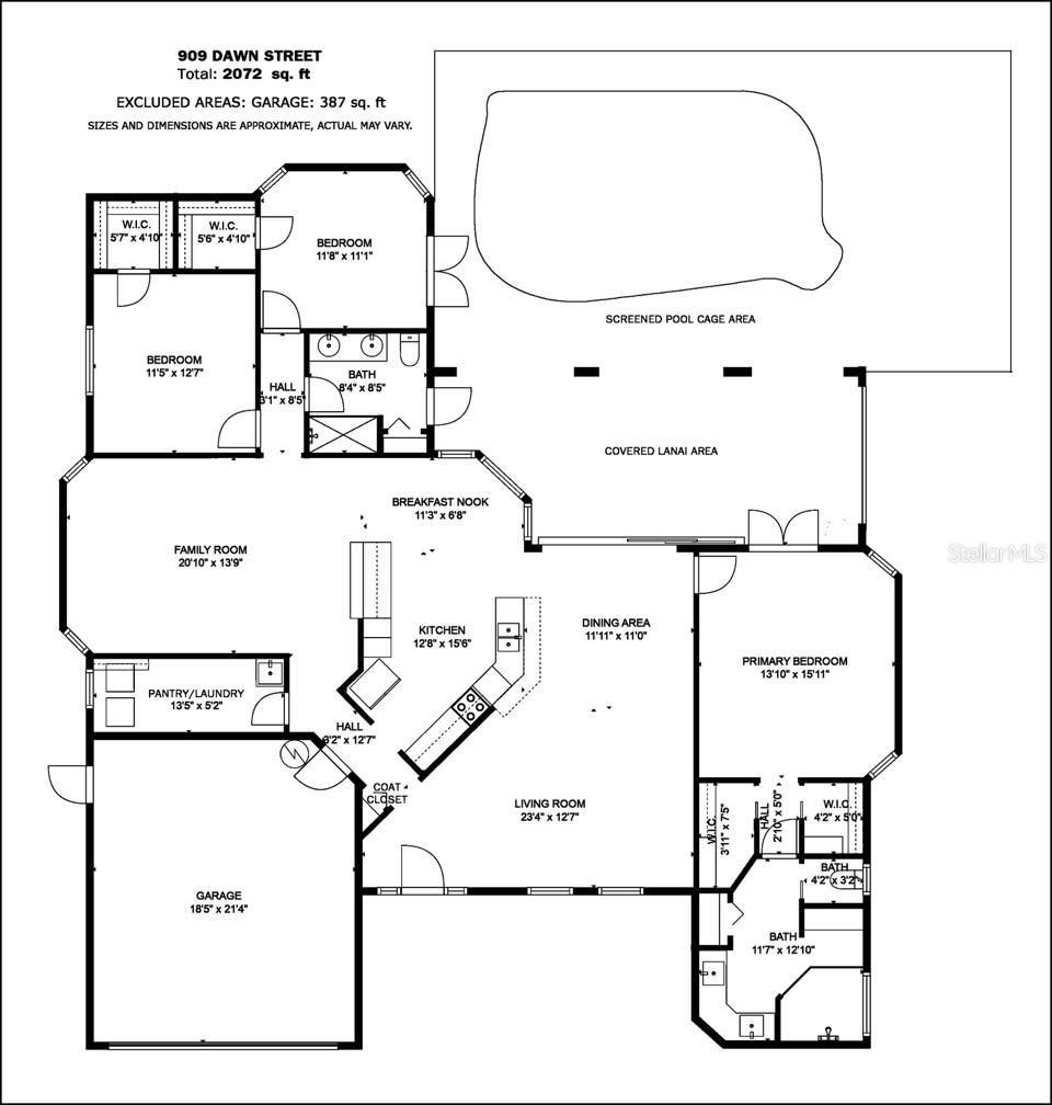
Corretores de compradores são bem -vindos! Adorável Dawn Street, de três quartos, dois banheiros, além da piscina da sala da família, no coração da ilha de Veneza, procurada. Entre pela porta da frente desta impressionante casa em um piso plano aberto cheio de luz, com tetos abobadados, clarabóias e vistas dramáticas para o belo pátio e piscina. Centralmente localizado é a cozinha atualizada que possui balcões de granito, utensílios de aço inoxidável, armários de bordo sólidos de close macio com prateleiras de retirada e pias duplas. Muito espaço de contador e gabinete garante que o cozimento seja um prazer. Com a espaçosa sala de estar de um lado da cozinha e uma grande família/sala de jantar do outro, há muito espaço para relaxar. Fora da sala de estar, você encontrará o quarto primário de tamanho generoso com dois armários e portas francesas que levam à área da piscina. Um grande banho mestre em suíte completamente renovado com pias duplas, uma vaidade embutida, um chuveiro de grandes dimensões, uma área de vaso sanitário separada e um armário de linho. Do outro lado da casa, há dois quartos de bom tamanho e um segundo banheiro. Ambos os quartos apresentam armários e um tem portas francesas que levam à área da piscina. O banheiro atualizado tem uma vaidade dupla, um armário de linho adicional e uma porta que leva à área da piscina. A versátil planta versátil desta casa não apenas fornece privacidade, mas também torna essa área facilmente conversível a uma sogra ou suíte de hóspedes, se necessário. Lá fora, seu oásis privado aguarda. Perfeito para relaxar, banhos de sol e jantar ao ar livre, o expansivo pátio apresenta uma piscina aquecida e de água salgada, cercada por belas novas pavimentadoras e uma nova gaiola de piscina. A grande porção coberta do pátio facilita a apreciação do chute ou do brilho ao ar livre e aprimora o apelo interno/externo da casa. Outras características ao ar livre incluem iluminação paisagística, um sistema de irrigação, plantações maduras, um galpão grande e um quintal de baixa manutenção completamente cercado, com muito espaço ao lado para o seu trailer ou barco. Esta maravilhosa casa também possui uma lavanderia/despensa de lavanderia interna e uma garagem de dois carros anexada com uma escada com fácil acesso ao espaço de armazenamento do sótão. Muitas atualizações adicionais incluem um novo telhado e clarabóias em 2023, todos os novos equipamentos de piscina, incluindo aquecedor elétrico, bomba, célula de sal e filtro em 2022, todas as novas janelas, novo sistema CA, novo painel de serviços elétricos, aquecedor de água e muito mais. Localizado no desejável bairro de Venezia Park, em uma rua tranquila na zona de inundação X (não é necessário seguro contra inundação), esta adorável casa fica a menos de 1,6 km da praia e fica perto do centro e de tudo o que faz de Veneza Island um lugar especial. Clique no botão 3D Tour acima para visualizar esta casa deliciosa e, em seguida, agende sua exibição privada e faça desta ilha gema sua nova casa. Alguns móveis negociáveis.
Considerações Financeiras
Preço:
$899,000
Taxa de HOA:
N/D
Valor do Imposto:
$7833.93
Preço por m²:
$410.23
Descrição Legal do Imposto:
Lote 6 Blk 178 South Venezia Park SEC de Veneza Replata de Blks 178 e 179
Características Exteriores
Tamanho do Lote:
8860
Características do Lote:
Limites da cidade, nível, pavimentado
Beira-mar:
Não
Vagas de Estacionamento:
N/D
Estacionamento:
Entrada de automóveis, abridor de porta de garagem, grande
Telhado:
Telha
Piscina:
Sim
Características da Piscina:
Aquecido, no solo, água salgada, gabinete de tela
Características Interiores
Quartos:
3
Banheiros:
2
Aquecimento:
Central, Elétrica
Resfriamento:
Central Aérea
Eletrodomésticos:
Máquina de lavar louça, descarte, secadora, aquecedor elétrico de água, exaustor, máquina de fazer gelo, micro-ondas, fogão, geladeira, lavadora
Mobiliado:
Sim
Andar:
Azulejo Cerâmico, Madeira
Níveis:
Um
Características Adicionais
Subtipo de Imóvel:
Residência Unifamiliar
Estilo:
N/D
Ano de Construção:
1990
Tipo de Construção:
Bloco, Estuque
Vagas na Garagem:
Sim
Vagas Cobertas:
N/D
Orientação da Fachada:
Oeste
Animais Permitidos:
Não
Condição Especial:
Nenhum
Características Adicionais:
Persianas contra furacões, iluminação, calhas de chuva, portas deslizantes, armazenamento
Características Adicionais 2:
Período mínimo de locação de um mês. Sem aluguéis de curto prazo.
Mapa
  • Endereço
    909 DAWN ST
Fale com um profissional
Por Que Nos Escolher?
  • Comunicação e Transparência
  • Negociação Qualificada
  • Rede Profissional Robusta
  • Suporte Pós-Venda
Propriedades em Destaque

Imóveis relacionados

avt
Daniel Dourado
$ 419,000
avt
Daniel Dourado
$ 330,000
avt
Daniel Dourado
$ 449,500
avt
Daniel Dourado
$ 399,000
avt
Daniel Dourado
$ 725,000
avt
Daniel Dourado
$ 550,000
avt
Daniel Dourado
$ 385,000