Active

$835,990

Características:
  • 3 Quartos
  • 4 Banheiros
  • 245 m²
Visão Geral
  • ID: MFRA4669983
  • Quartos: 3
  • Banheiros: 4
  • Tamanho: 245 m²
Detalhes do Imóvel
Observações
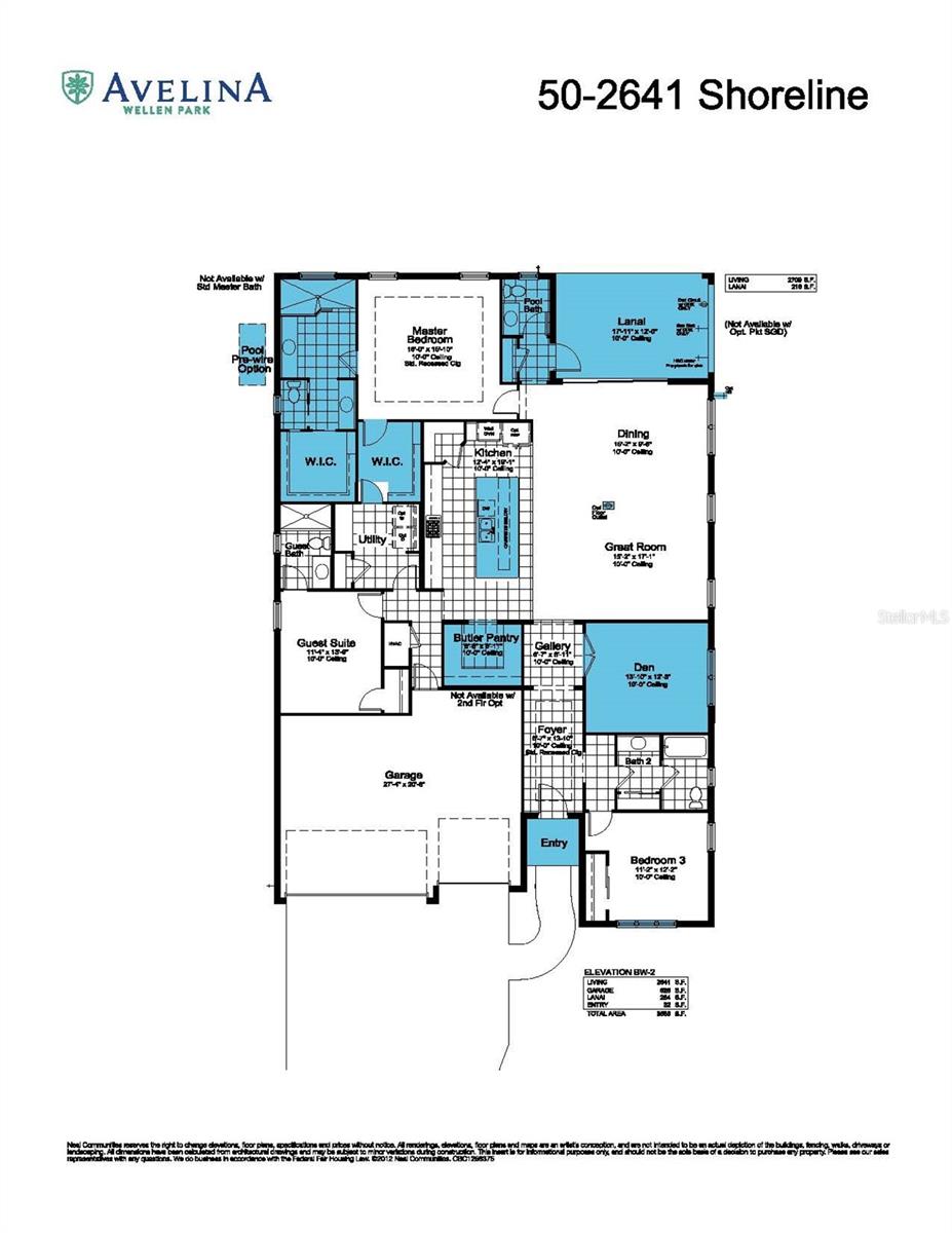
Em construção. Entre no The Shoreline, uma planta aberta lindamente projetada que combina conforto, luxo e funcionalidade. A espaçosa sala abre perfeitamente para a área da piscina e do spa através de impressionantes portas de vidro deslizantes resistentes a impactos, criando a experiência perfeita de vida interna e externa. Um conveniente banho de piscina está localizado perto da suíte master e da sala grande. A casa inclui uma cozinha de chef com uma grande despensa de mordomo e despensa de canto para armazenamento extra, além de uma porta de despensa que leva diretamente ao armário e quarto do proprietário. Situada em uma área de esquina com paisagismo exuberante e uma parede de privacidade, esta casa oferece privacidade excepcional e está localizada perto da entrada para acesso rápido ao Downtown Wellen Park.
Considerações Financeiras
Preço:
$835,990
Taxa de HOA:
480
Valor do Imposto:
$1474.37
Preço por m²:
$316.54
Descrição Legal do Imposto:
Lote 96, Avelina Wellen Park Village F-2 pb 55, páginas 149-159
Características Exteriores
Tamanho do Lote:
8680
Características do Lote:
Beco sem saída, paisagístico, calçada
Beira-mar:
Não
Vagas de Estacionamento:
N/D
Estacionamento:
N/D
Telhado:
Telha
Piscina:
Sim
Características da Piscina:
Cerca de segurança infantil, no solo, tela
Características Interiores
Quartos:
3
Banheiros:
4
Aquecimento:
Central, Elétrica, Bomba de Calor
Resfriamento:
Central Aérea
Eletrodomésticos:
Forno Embutido, Cooktop, Lava Louça, Descarte, Secadora, Esquentador a Gás, Microondas, Geladeira, Lavadora
Mobiliado:
Sim
Andar:
Tapete, Vinil
Níveis:
Um
Características Adicionais
Subtipo de Imóvel:
Residência Unifamiliar
Estilo:
N/D
Ano de Construção:
2025
Tipo de Construção:
Bloco, Estuque
Vagas na Garagem:
Sim
Vagas Cobertas:
N/D
Orientação da Fachada:
Leste
Animais Permitidos:
Sim
Condição Especial:
Nenhum
Características Adicionais:
Calhas de chuva, calçada, portas de correr
Características Adicionais 2:
Locação mínima de 6 meses
Mapa
  • Endereço
    18723 TOULON CT
Fale com um profissional
Por Que Nos Escolher?
  • Comunicação e Transparência
  • Negociação Qualificada
  • Rede Profissional Robusta
  • Suporte Pós-Venda
Propriedades em Destaque

Imóveis relacionados

avt
Daniel Dourado
$ 490,000
avt
Daniel Dourado
$ 2,200,000
avt
Daniel Dourado
$ 699,000
avt
Daniel Dourado
$ 250,000
avt
Daniel Dourado
$ 249,900
avt
Daniel Dourado
$ 295,000