Active

$359,900

Características:
  • 2 Quartos
  • 2 Banheiros
  • 106 m²
Visão Geral
  • ID: MFROM716893
  • Quartos: 2
  • Banheiros: 2
  • Tamanho: 106 m²
Detalhes do Imóvel
Observações
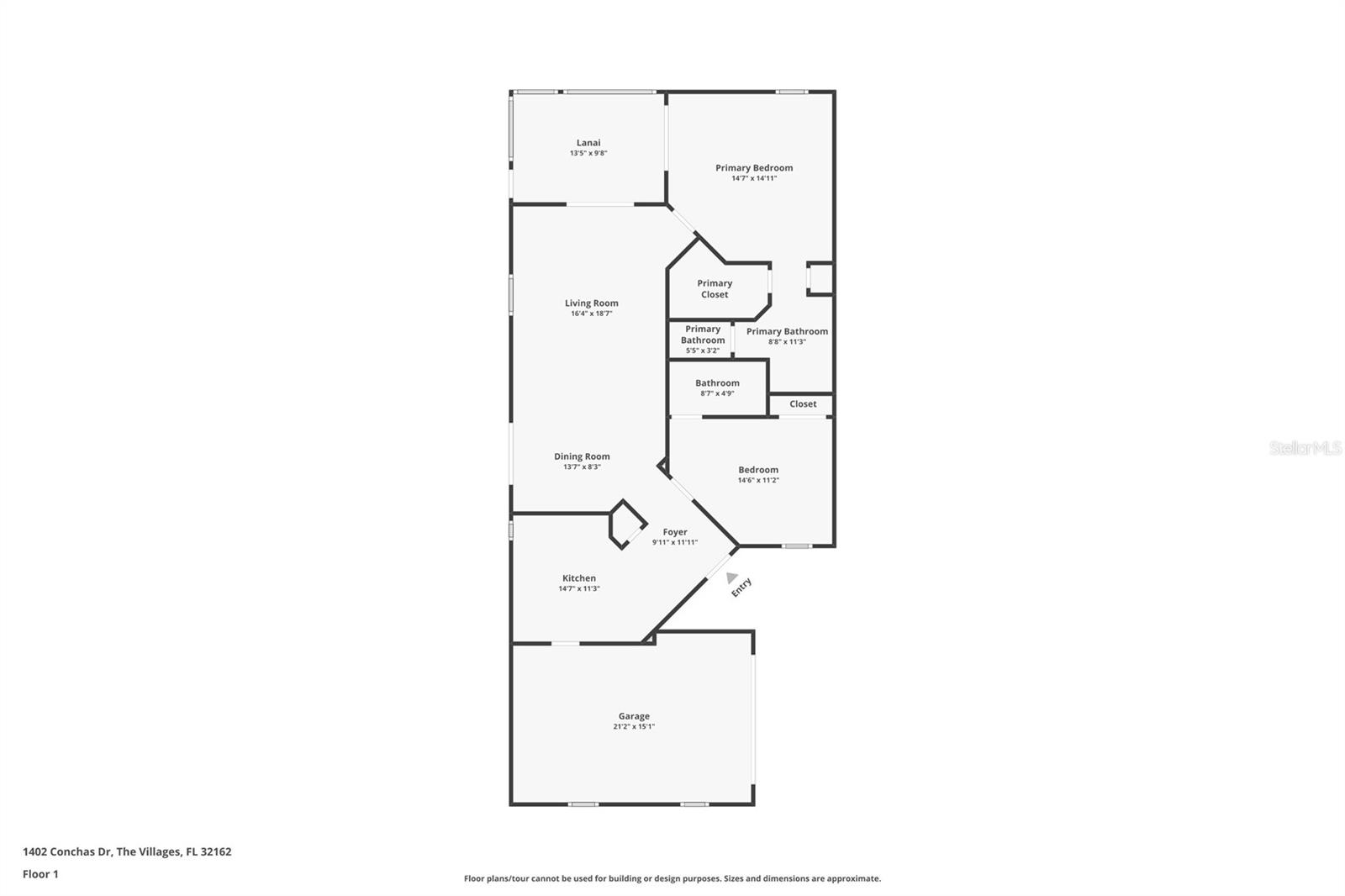
Bem-vindo a esta bela casa de villa com pátio PRIVADA, ÚNICA, ACEITÁVEL ANIMAIS DE ESTIMAÇÃO e TOTALMENTE CERCADA que fica em uma CASA DE CANTO GRANDE e está repleto de personalidade, conforto e atualizações atenciosas - tudo a poucos minutos de vários campos de golfe, entretenimento noturno, o Glenview Country Club, o Savannah Center, restaurantes e muito mais! Entre para descobrir PERSIANAS DE PLANTAÇÃO, PINTURA PERSONALIZADA, MOLDURA DE COROA elegante, ILUMINAÇÃO ATUALIZADA e um layout cuidadosamente projetado, perfeito para a vida moderna. A COZINHA REMODELADA (2020) apresenta BANCADAS DE GRANITO, APARELHOS DE AÇO INOXIDÁVEL, incluindo GELADEIRA (2025), MÁQUINA DE LAVAR LOUÇA (2021) e GÁS FOGÃO (2020), junto com um ARMÁRIO DE DESPENSA e amplo espaço de armário para inspirar o chef que há dentro de você. UMA CAMA MURPHY PERSONALIZADA acrescenta vida flexível ou espaço de hóspedes para o segundo quarto, enquanto o LANAI FECHADO convida você a relaxar o ano todo. Divirta-se ao ar livre no PRIVATE, PAVER PÁTIO sob uma charmosa PERGOLA, cercado por um PAISAGEM IMPRESSIONANTE com ILUMINAÇÃO SUBTERRÂNEA que completa o ambiente tranquilo oásis de quintal. O estacionamento para hóspedes está localizado ao virar da esquina, oferecendo acesso conveniente para os visitantes enquanto você se diverte. Adicional os recursos incluem um NOVO TELHADO (2017), A/C (2022), AQUECEDOR DE ÁGUA QUENTE (2021) e um SISTEMA DE AMACIADOR DE ÁGUA. A garagem inclui uma PRIVACIDADE TELA e ARMÁRIO INTEGRADO que oferecem funcionalidade de espaço de trabalho e armazenamento extra. Esta casa confortável, elegante e pronta para morar com NO BOND é uma joia rara esperando você ligar para casa. Agende sua exibição privada hoje mesmo! *O bebedouro ao ar livre não transmite
Considerações Financeiras
Preço:
$359,900
Taxa de HOA:
N/D
Valor do Imposto:
$2872
Preço por m²:
$314.05
Descrição Legal do Imposto:
Lote 97 As aldeias de Sumter Villa Escandido Plat Book 5 páginas 23-23B
Características Exteriores
Tamanho do Lote:
5605
Características do Lote:
Lote de canto, paisagismo, nível, lote de grandes dimensões, privado, pavimentado
Beira-mar:
Não
Vagas de Estacionamento:
N/D
Estacionamento:
Entrada, Convidado
Telhado:
Telha
Piscina:
Não
Características da Piscina:
N/D
Características Interiores
Quartos:
2
Banheiros:
2
Aquecimento:
Central
Resfriamento:
Central Aérea
Eletrodomésticos:
Máquina de lavar louça, descarte, secadora, micro-ondas, fogão, geladeira, lavadora
Mobiliado:
Sim
Andar:
Tapete, Azulejo Cerâmico, Vinil Luxo
Níveis:
Um
Características Adicionais
Subtipo de Imóvel:
Vila
Estilo:
N/D
Ano de Construção:
1999
Tipo de Construção:
Bloquear
Vagas na Garagem:
Sim
Vagas Cobertas:
N/D
Orientação da Fachada:
Leste
Animais Permitidos:
Não
Condição Especial:
Nenhum
Características Adicionais:
Pátio Privado, Portas de Correr
Características Adicionais 2:
Consulte restrições de escritura.
Mapa
  • Endereço
    1402 CONCHAS DR
Fale com um profissional
Por Que Nos Escolher?
  • Comunicação e Transparência
  • Negociação Qualificada
  • Rede Profissional Robusta
  • Suporte Pós-Venda
Propriedades em Destaque

Imóveis relacionados

img
  • Featured
  • Active
Villa

4324 CALLISTA LN

  • 2
  • 2
  • 172 m²
avt
Daniel Dourado
$ 450,000
img
  • Featured
  • Active
Villa

13837 VADINI ST

  • 2
  • 2
  • 149 m²
avt
Daniel Dourado
$ 445,000
img
  • Featured
  • Active
Villa

2711 PALM TREE DR

  • 2
  • 2
  • 140 m²
avt
Daniel Dourado
$ 284,900
img
  • Featured
  • Active
Villa

4248 LENOX BLVD

  • 2
  • 2
  • 141 m²
avt
Daniel Dourado
$ 355,000
img
  • Featured
  • Active
Villa

6906 PLAYA BELLA DR

  • 2
  • 2
  • 141 m²
avt
Daniel Dourado
$ 499,900
img
  • Featured
  • Active
Villa

4058 CENTER POINTE PL #28A

  • 2
  • 2
  • 95 m²
avt
Daniel Dourado
$ 250,000
img
  • Featured
  • Active
Villa

18803 DAYSPRING PL

  • 3
  • 2
  • 167 m²
avt
Daniel Dourado
$ 445,000
avt
Daniel Dourado
$ 315,000
avt
Daniel Dourado
$ 357,900
img
  • Featured
  • Active
Villa

248 51ST STREET CIR E

  • 2
  • 2
  • 84 m²
avt
Daniel Dourado
$ 219,900
img
  • Featured
  • Active
Villa

7016 PLAYA BELLA DR

  • 2
  • 2
  • 141 m²
avt
Daniel Dourado
$ 579,500
avt
Daniel Dourado
$ 415,000