Active

$614,999

Características:
  • 4 Quartos
  • 2 Banheiros
  • 152 m²
Visão Geral
  • ID: MFRTB8430316
  • Quartos: 4
  • Banheiros: 2
  • Tamanho: 152 m²
Detalhes do Imóvel
Observações
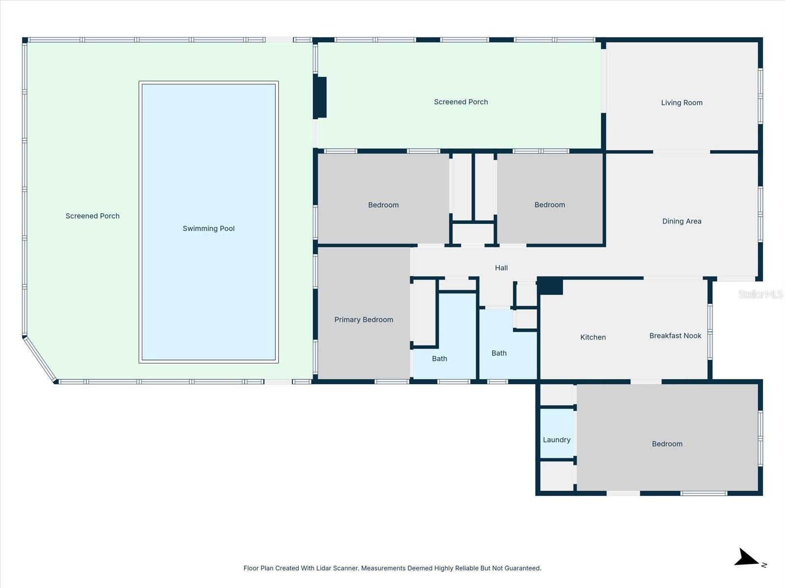
*A casa não inundou durante os furacões no ano passado* ENORME ajuste de preço de US$ 35 mil! Bem-vindo a esta casa com piscina em South Tampa, lindamente atualizada e totalmente mobiliada, que oferece o equilíbrio perfeito entre conforto e espaço de entretenimento. Entre para encontrar uma ampla sala de estar que flui perfeitamente para a área de jantar, criando um espaço acolhedor para reuniões. A cozinha com copa oferece o local perfeito para um café ou café da manhã. Um dos destaques desta casa é a ampla varanda e área da piscina, completa com muito espaço coberto para refeições ao ar livre, relaxar, jogar sinuca e se divertir. Com uma grande piscina no centro, esta casa é ideal para aproveitar o sol da Flórida o ano todo. Localizada em um bairro desejável de South Tampa, esta casa fica a poucos minutos de parques à beira-mar, lojas, restaurantes e tudo o que Tampa tem a oferecer. Continue a usar isso como um AirBnB com fluxo de caixa ou faça sua nova casa!
Considerações Financeiras
Preço:
$614,999
Taxa de HOA:
N/D
Valor do Imposto:
$7280.84
Preço por m²:
$374.09
Descrição Legal do Imposto:
Margaret Anne Subdivision Revisou Lot 13 Bloco 8
Características Exteriores
Tamanho do Lote:
7280
Características do Lote:
N/D
Beira-mar:
Não
Vagas de Estacionamento:
N/D
Estacionamento:
Entrada de automóveis, fora da rua
Telhado:
Construído
Piscina:
Sim
Características da Piscina:
No solo, gabinete de tela
Características Interiores
Quartos:
4
Banheiros:
2
Aquecimento:
Central
Resfriamento:
Central Aérea
Eletrodomésticos:
Máquina de lavar louça, secadora, micro-ondas, fogão, lavadora
Mobiliado:
Não
Andar:
Vinil
Níveis:
Um
Características Adicionais
Subtipo de Imóvel:
Residência Unifamiliar
Estilo:
N/D
Ano de Construção:
1958
Tipo de Construção:
Bloquear
Vagas na Garagem:
Não
Vagas Cobertas:
N/D
Orientação da Fachada:
Norte
Animais Permitidos:
Não
Condição Especial:
Nenhum
Características Adicionais:
Iluminação
Características Adicionais 2:
N/D
Mapa
  • Endereço
    4410 W BAY COURT AVE
Fale com um profissional
Por Que Nos Escolher?
  • Comunicação e Transparência
  • Negociação Qualificada
  • Rede Profissional Robusta
  • Suporte Pós-Venda
Propriedades em Destaque

Imóveis relacionados

avt
Daniel Dourado
$ 325,000
avt
Daniel Dourado
$ 299,900
avt
Daniel Dourado
$ 574,975
avt
Daniel Dourado
$ 465,000
avt
Daniel Dourado
$ 207,500
avt
Daniel Dourado
$ 318,999
avt
Daniel Dourado
$ 263,150
avt
Daniel Dourado
$ 549,900
avt
Daniel Dourado
$ 255,000
avt
Daniel Dourado
$ 404,900
avt
Daniel Dourado
$ 500,000