Active

$589,500

Características:
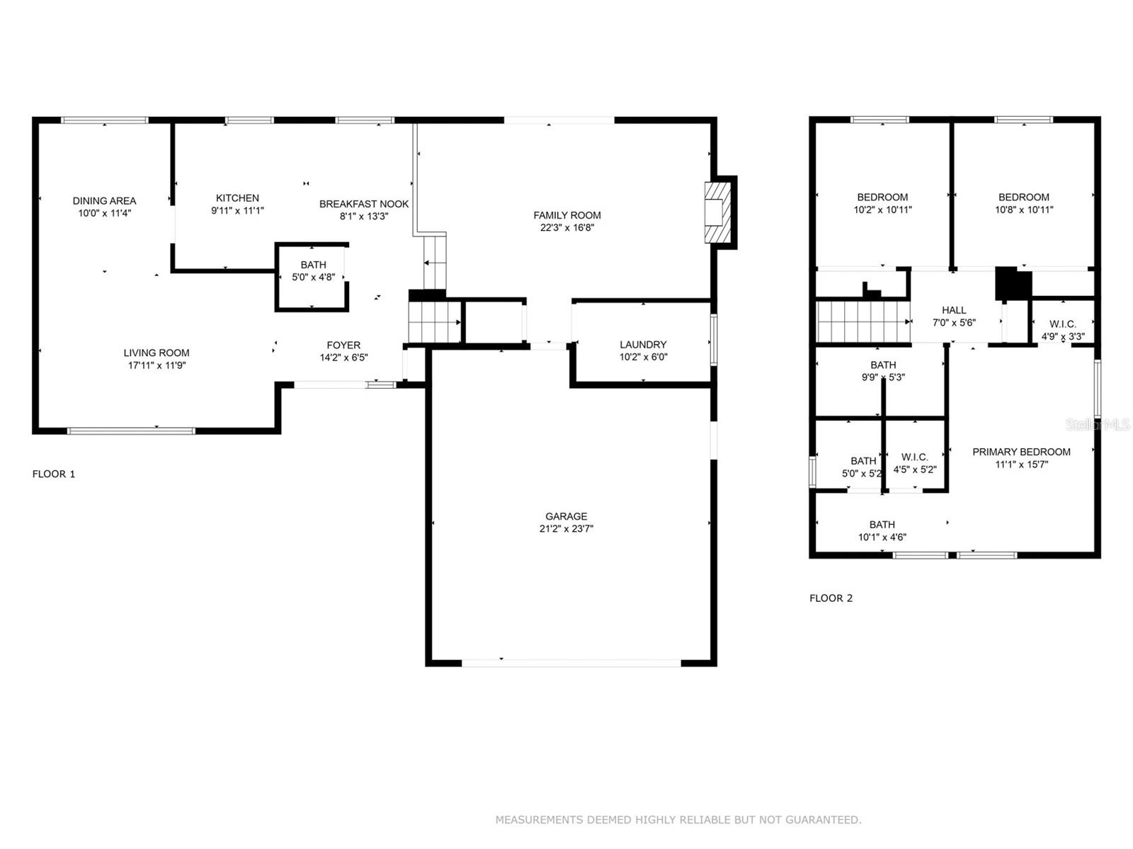
  • 3 Quartos
  • 3 Banheiros
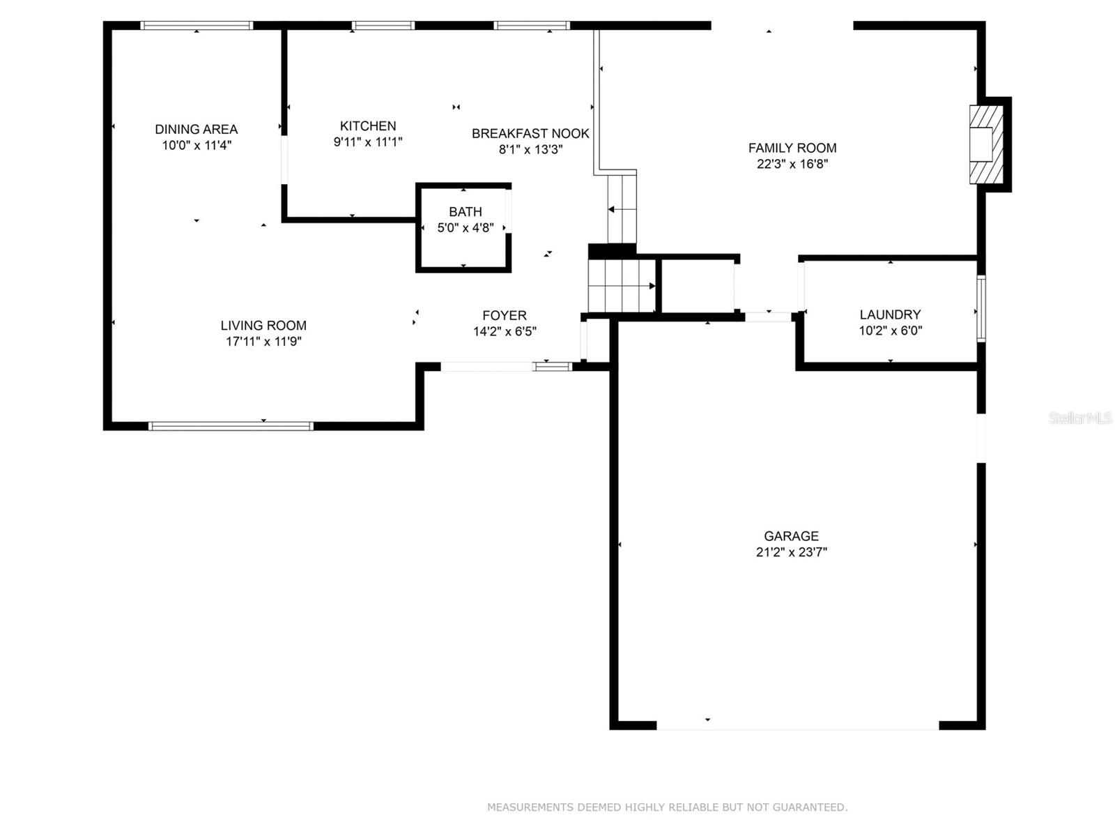
  • 172 m²
Visão Geral
  • ID: MFRTB8406667
  • Quartos: 3
  • Banheiros: 3
  • Tamanho: 172 m²
Detalhes do Imóvel
Observações
Experiência Refinada Living em Carrollwood Village - A requintadamente reformada Pool Luxury Pool Home entra em uma sofisticação nesta casa de piscina incrivelmente renovada, localizada na prestigiada área de Carrollwood Village, apenas momentos do Carrollwood Country Club. Projetado com a melhor atenção aos detalhes, essa residência excepcional combina elegância atemporal com as atualizações mais desejáveis de hoje, oferecendo um estilo de vida pronto para se mover de conforto, beleza e conveniência. No coração da casa, uma cozinha personalizada de parar o show aguarda-com bancadas de granito brilhantes, utensílios de aço inoxidável premium, armários de perto e um layout que rivaliza com qualquer coisa vista no HGTV. Ideal para o apaixonado chef ou artista, esta cozinha é uma verdadeira obra-prima. Descobrindo a vida sem esforço, que vive com uma nova piscina de ladrilhos de vidro em estilo resort, com um acabamento suave de quartzo e cercado por cercas de privacidade de vinil modernas. O cenário tranquilo é perfeito para relaxar ou divertir sob o sol da Flórida. Em todo o interior, você encontrará pisos ricos de madeira escura, iluminação de grife e tinta interior fresca que elevam o estilo da casa. Os banheiros reformados exalam um ambiente semelhante ao spa, com armários personalizados, bancadas elegantes de granito e equipamentos de luxo. As atualizações adicionais incluem: Novo telhado dimensional de 50 anos (2018), termostato ninho e smart smart, carpete e janelas, nova chaminé e acabamento externo, encanamentos atualizados e luminárias, gavetas modernas de fechamento automático por toda parte, equipamentos de piscina atualizados (2018) Posicionados perfeitamente perto de campos de golfe do campeonato, compras e refeições com mais classificação e grandes vias, proporcionando fácil acesso ao Aeroporto Internacional de Tampa e às praias do Golfo, esta casa oferece o equilíbrio ideal de luxo e estilo de vida. Casas desse calibre em Carrollwood Village são raras. Não perca a oportunidade de possuir essa residência excepcional por um valor imbatível.
Considerações Financeiras
Preço:
$589,500
Taxa de HOA:
100
Valor do Imposto:
$8354
Preço por m²:
$316.94
Descrição Legal do Imposto:
Cypress Hollow Lote 27 Bloco 2
Características Exteriores
Tamanho do Lote:
9125
Características do Lote:
N/D
Beira-mar:
Não
Vagas de Estacionamento:
N/D
Estacionamento:
N/D
Telhado:
Telha
Piscina:
Sim
Características da Piscina:
Cerca de segurança infantil, Gunite, no solo, tela de proteção
Características Interiores
Quartos:
3
Banheiros:
3
Aquecimento:
Central
Resfriamento:
Central Aérea
Eletrodomésticos:
Forno embutido, máquina de lavar louça, secadora, freezer, micro-ondas, geladeira, máquina de lavar
Mobiliado:
Não
Andar:
Tapete, Madeira
Níveis:
Dois
Características Adicionais
Subtipo de Imóvel:
Residência Unifamiliar
Estilo:
N/D
Ano de Construção:
1979
Tipo de Construção:
Estuque
Vagas na Garagem:
Sim
Vagas Cobertas:
N/D
Orientação da Fachada:
Sul
Animais Permitidos:
Sim
Condição Especial:
Nenhum
Características Adicionais:
Iluminação, Caixa de Correio Privada, Calhas de Chuva, Calçada, Portas de Correr
Características Adicionais 2:
Verifique com HOA
Mapa
  • Endereço
    4505 OLD SAYBROOK AVE
Fale com um profissional
Por Que Nos Escolher?
  • Comunicação e Transparência
  • Negociação Qualificada
  • Rede Profissional Robusta
  • Suporte Pós-Venda
Propriedades em Destaque

Imóveis relacionados

avt
Daniel Dourado
$ 340,000
avt
Daniel Dourado
$ 629,800
avt
Daniel Dourado
$ 370,000
avt
Daniel Dourado
$ 815,000
avt
Daniel Dourado
$ 575,000
avt
Daniel Dourado
$ 3,175,000