Active

$409,000

Características:
  • 3 Quartos
  • 3 Banheiros
  • 116 m²
Visão Geral
  • ID: MFRT3513712
  • Quartos: 3
  • Banheiros: 3
  • Tamanho: 116 m²
Detalhes do Imóvel
Observações
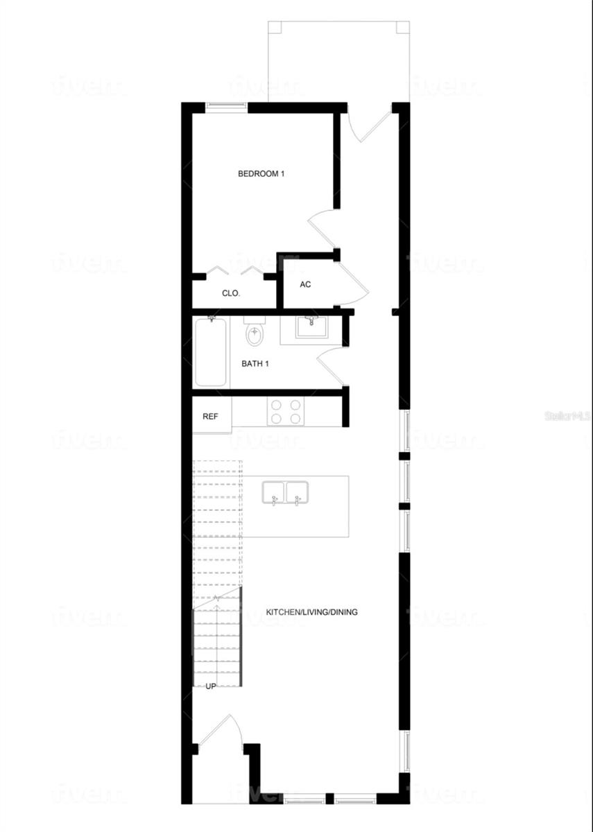
Em construção. Entre no batimento cardíaco vibrante de Ybor City com este requintado nova construção de construção, misturando perfeitamente elegância contemporânea com a rica história do amado distrito de Tampa. Com artesanato incomparável em uma localização privilegiada, esta casa oferece um estilo de vida de luxo e conveniência. Com pouco menos de 1.300 pés quadrados, este condomínio de dois andares é uma prova do design e funcionalidade modernos. O layout de conceito aberto recebe você com abundante luz natural em cascata através de grandes janelas. A planta baixa apresenta um espaçoso quarto secundário e banheiro completo no primeiro andar, com o mestre e o terceiro quarto localizado no segundo andar. Localizada a poucos passos das opções de renomado refeições, compras e entretenimento de Ybor City, esta casa oferece a melhor experiência de estilo de vida urbana. Mergulhe na cultura e na rica história de Ybor City, com acesso conveniente ao centro de Tampa, principais rodovias e praias primitivas da Costa do Golfo. Não perca esta rara oportunidade de possuir um pedaço de luxo em um dos bairros mais procurados de Tampa!
Considerações Financeiras
Preço:
$409,000
Taxa de HOA:
N/D
Valor do Imposto:
$900
Preço por m²:
$325.12
Descrição Legal do Imposto:
Adição de Sander e Clay Lot 14 Bloco 1
Características Exteriores
Tamanho do Lote:
5080
Características do Lote:
N/D
Beira-mar:
Não
Vagas de Estacionamento:
N/D
Estacionamento:
N/D
Telhado:
Telha
Piscina:
Não
Características da Piscina:
N/D
Características Interiores
Quartos:
3
Banheiros:
3
Aquecimento:
Central
Resfriamento:
Central Aérea
Eletrodomésticos:
Máquina de lavar louça, micro-ondas, fogão
Mobiliado:
Não
Andar:
Vinil de luxo
Níveis:
Dois
Características Adicionais
Subtipo de Imóvel:
Moradia
Estilo:
N/D
Ano de Construção:
2024
Tipo de Construção:
Bloquear
Vagas na Garagem:
Não
Vagas Cobertas:
N/D
Orientação da Fachada:
Sul
Animais Permitidos:
Não
Condição Especial:
Nenhum
Características Adicionais:
Outro
Características Adicionais 2:
Agente do comprador/ comprador para confirmar restrições de leasing com jurisdição adequada.
Mapa
  • Endereço
    2516 E 15TH AVE #2
Fale com um profissional
Por Que Nos Escolher?
  • Comunicação e Transparência
  • Negociação Qualificada
  • Rede Profissional Robusta
  • Suporte Pós-Venda
Propriedades em Destaque

Imóveis relacionados

avt
Daniel Dourado
$ 279,900
avt
Daniel Dourado
$ 419,000
avt
Daniel Dourado
$ 1,950,000
avt
Daniel Dourado
$ 255,000
avt
Daniel Dourado
$ 1,099,000
avt
Daniel Dourado
$ 365,000
avt
Daniel Dourado
$ 289,000
avt
Daniel Dourado
$ 550,000
avt
Daniel Dourado
$ 279,000
avt
Daniel Dourado
$ 310,000
img
  • Featured
  • Active
Townhouse

8101 INTERBAY BLVD #A

  • 2
  • 2
  • 92 m²
avt
Daniel Dourado
$ 245,000
avt
Daniel Dourado
$ 289,000