Active

$435,000

Características:
  • 3 Quartos
  • 3 Banheiros
  • 199 m²
Visão Geral
  • ID: MFRG5091705
  • Quartos: 3
  • Banheiros: 3
  • Tamanho: 199 m²
Detalhes do Imóvel
Observações
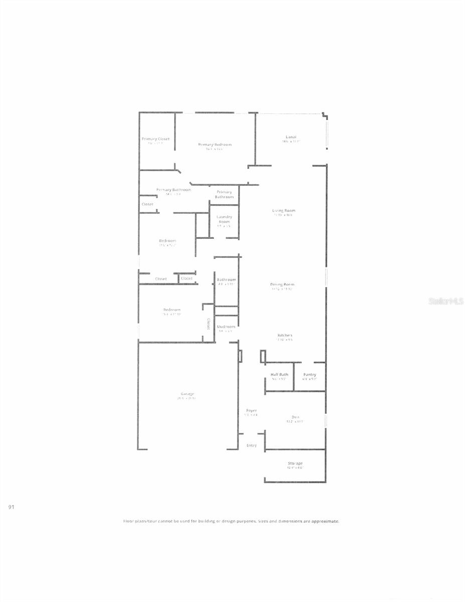
Stonecrest, uma comunidade de mais de 55 golfe, possui todas as comodidades que você poderia querer. Possui quatro piscinas, incluindo uma interior, e fica a uma curta distância de carro das aldeias do carrinho de golfe. Entre nessa bela frente de golfe de três quartos, dois banheiros e um meio-banheiro, de Lennar. Possui várias atualizações de designers, incluindo uma nova tinta externa e interna, piso de tábua de vinil de luxo, carpete, backsplash na cozinha, despensa personalizada e sistemas de organização de armário, vidro privado, porta de chuveiro sem moldura, lutas de barreira personalizadas, pista de painel de cornija, lança de lanchone, luminagem e luminária de luminária, papel de parede de estilos de estoque. Desfrute de vistas impressionantes desta casa deslumbrante e faça uma curta caminhada de duas piscinas ao ar livre e quadras de pickleball. Esta casa possui tetos de 10 pés por toda parte, uma planta de piso conceitual aberto e uma sala versátil que pode ser transformada em um covil ou estudo. A espaçosa cozinha possui armários de madeira branca, bancadas de quartzo, incluindo uma grande ilha e uma despensa personalizada. A cozinha transita perfeitamente para a enorme sala da família, proporcionando amplo espaço para entreter grandes reuniões de familiares e amigos. A sala possui portas deslizantes empilháveis ​​que se abrem para o Lanai, oferecendo vistas deslumbrantes do pôr do sol da Flórida. Desfrute de refeições e conversas no lanai exibido. A suíte primária oferece um closet com sistema organizacional personalizado e um banheiro na suíte. Este banheiro luxuoso apresenta uma vaidade de pia dupla, um chuveiro de azulejos com um gabinete de vidro de privacidade personalizado e um armário de linho. Há também uma porta que leva do banheiro principal para o segundo quarto, que está sendo usado atualmente como uma sala de fitness. O corredor continua até o segundo banheiro completo, um armário de armazenamento e um quarto de hóspedes. O meio banheiro está convenientemente localizado no vestíbulo perto da entrada da frente. A porta da frente de 8 pés é resistente ao furacão e equipada com dobradiças à prova de adulteração. Esta casa vem com uma garagem espaçosa que acomoda facilmente o tamanho de uma caminhonete e oferece amplo espaço de armazenamento. O Stonecrest, um condomínio fechado privado, oferece um alto nível de privacidade e segurança, proporcionando um estilo de vida maravilhoso. Experimente um excelente estilo de vida em Stonecrest e Secure Community Standing, Stonecrest é o lugar perfeito para experimentar um estilo de vida fantástico. Imagine desfrutar do seu próprio oásis privado com uma fantástica vista para a água e a privacidade traseira. Stonecrest é uma comunidade de campo de golfe com mais de 55 fechaduras que possui todas as comodidades que você poderia querer, incluindo piscinas, quadras de pickleball, softbol, ​​um campo de golfe de 18 buracos, Broad Stripes Golf & Social Club e mais de 80 clubes diferentes para participar. Apenas uma ponte fora do carrinho de golfe, você encontrará as aldeias. Stonecrest é uma comunidade com estradas privadas e segurança 24 horas, garantindo sua paz de espírito. Esta casa oferece uma mistura perfeita de tremendo espaço ao ar livre, recursos luxuosos, um local desejável e um ambiente seguro da comunidade. Experimente um estilo de vida maravilhoso em Stonecrest! Um estilo de vida maravilhoso espera por você em Stonecrest!
Considerações Financeiras
Preço:
$435,000
Taxa de HOA:
148
Valor do Imposto:
$6206.09
Preço por m²:
$203.08
Descrição Legal do Imposto:
SEC 31 TWP 17 RGE 24 Plat Book 008 Página 172 Meadows na unidade Stonecrest 1 Blk H Lote 21
Características Exteriores
Tamanho do Lote:
6534
Características do Lote:
No campo de golfe
Beira-mar:
Não
Vagas de Estacionamento:
N/D
Estacionamento:
Entrada de automóveis, abridor de porta de garagem, garagem para carrinho de golfe
Telhado:
Telha
Piscina:
Não
Características da Piscina:
N/D
Características Interiores
Quartos:
3
Banheiros:
3
Aquecimento:
Central, Elétrica
Resfriamento:
Central Aérea
Eletrodomésticos:
Máquina de lavar louça, micro-ondas, fogão, geladeira
Mobiliado:
Não
Andar:
Tapete, Vinil Luxo
Níveis:
Um
Características Adicionais
Subtipo de Imóvel:
Residência Unifamiliar
Estilo:
N/D
Ano de Construção:
2022
Tipo de Construção:
Bloco, concreto, estuque
Vagas na Garagem:
Sim
Vagas Cobertas:
N/D
Orientação da Fachada:
Sudoeste
Animais Permitidos:
Sim
Condição Especial:
Nenhum
Características Adicionais:
Portas deslizantes
Características Adicionais 2:
VER RESTRIÇÕES DA ESCRITURA
Mapa
  • Endereço
    12213 SE 176TH LOOP
Fale com um profissional
Por Que Nos Escolher?
  • Comunicação e Transparência
  • Negociação Qualificada
  • Rede Profissional Robusta
  • Suporte Pós-Venda
Propriedades em Destaque

Imóveis relacionados

avt
Daniel Dourado
$ 450,000
avt
Daniel Dourado
$ 469,000
avt
Daniel Dourado
$ 1,465,000
avt
Daniel Dourado
$ 230,000
avt
Daniel Dourado
$ 6,890,000
avt
Daniel Dourado
$ 399,000
avt
Daniel Dourado
$ 410,000
avt
Daniel Dourado
$ 360,000
avt
Daniel Dourado
$ 310,000
avt
Daniel Dourado
$ 270,000