Active

$7,290,000

Características:
  • 4 Quartos
  • 5 Banheiros
  • 488 m²
Visão Geral
  • ID: MFRU8151455
  • Quartos: 4
  • Banheiros: 5
  • Tamanho: 488 m²
Detalhes do Imóvel
Observações
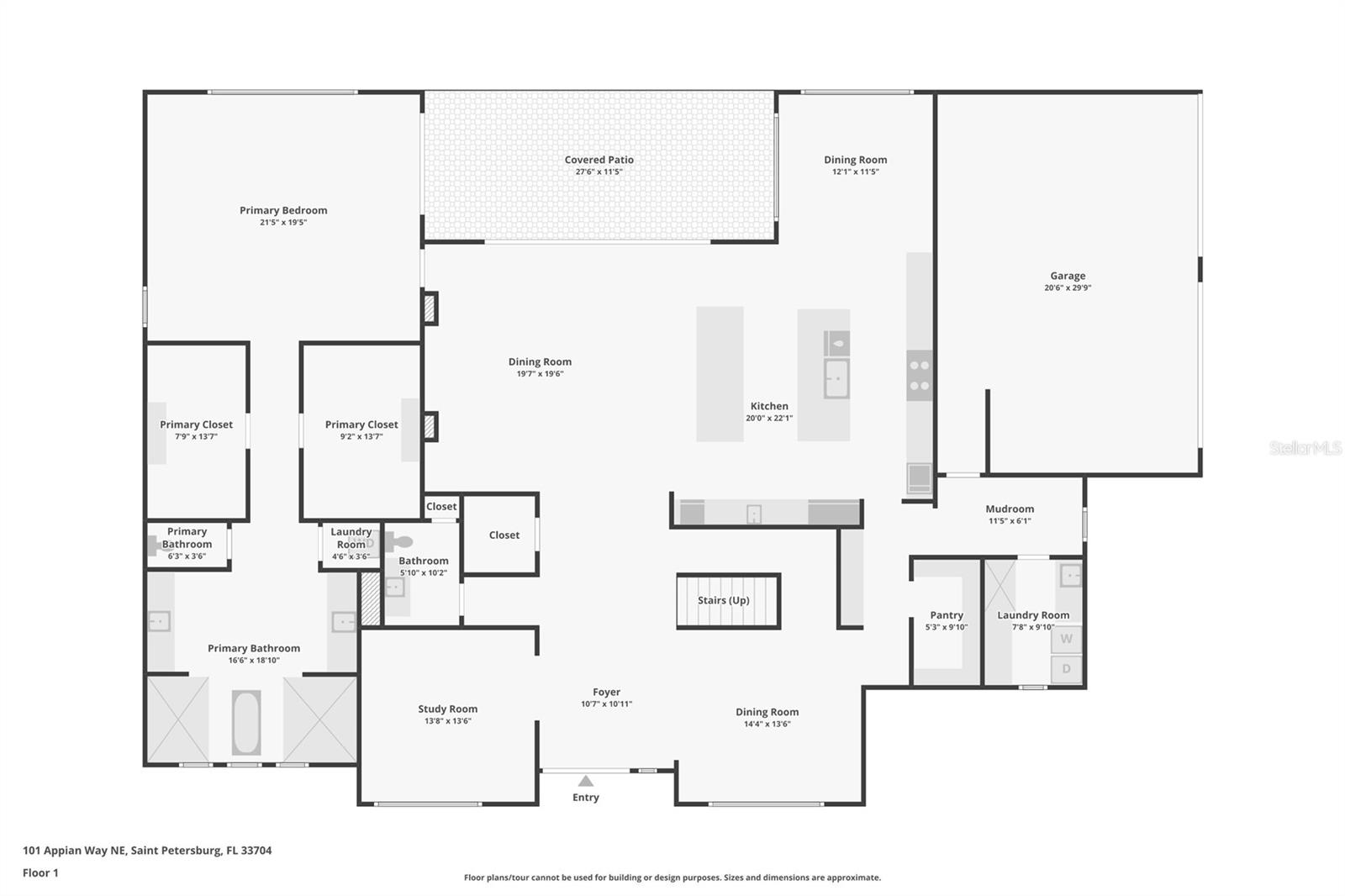
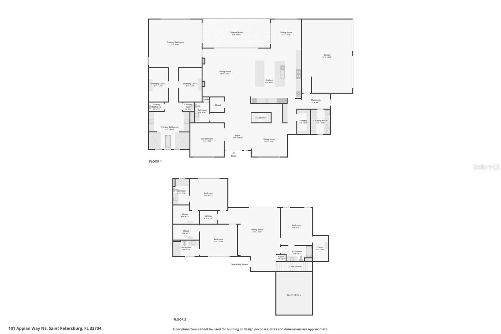
Muitas fotos são praticamente encenadas. Alto e seco durante o furacão Helene e o furacão Milton! Esta casa foi construída em uma das áreas mais altas do bairro de Snell Isle e também é uma nova casa de construção - não teve nenhum dano de inundação durante o furacão Helene e Milton, incluindo a piscina. O preço de tabela está abaixo do valor avaliado! Esta luxo, recém-completamente em julho de 2024, a casa à beira-mar é uma viva de dois andares com um gerador de 24kW; 11,2 pés é a elevação mais baixa do piso, o próximo nível é de 23 pés! . Localizado na altamente desejável Brightwaters Blvd, esta casa moderna de quatro quartos e quatro e meio-banhado e meados do século foi construída por um dos construtores de casas de elite de Tampa Bay, Jr Structures LLC. Residindo em um lote de canto de grandes dimensões (totalizando 0,41 acres), esta casa possui uma piscina de água salgada com uma batata e cabana, uma cozinha ao ar livre e uma bela madeira de lei de formas tropicais brasileiras, acentuando partes do exterior com vários terraços para desfrutar do exterior. A planta interior da planta é aberta, completa com a suíte principal do quarto no nível principal, com dois guarda-roupas amplos, um armário de lavanderia empilhável e uma barra de café da manhã. A cozinha é o sonho de um chef com aparelhos SubZero e Wolf SS, cozinha a gás, uma sala de jantar com um café da cozinha, todos adjacentes à lavanderia principal, uma sala de lama e uma despensa de mordomo. Existe até um banho de spa de alta costura canina, uma parede de vinho, escadas flutuantes e um elevador para acesso a todos os níveis. Esta casa possui pisos de madeira em todos os quartos, mármore em todos os banheiros, tetos de bandeja e tetos altos. (Tetos de 12 'na maioria das áreas.) Você localizou a menos de 1,6 km do Vinoy Golf Course e também é uma rápida viagem de barco até Tampa Bay. Esta casa está localizada a um passeio de bicicleta de 10 minutos muito curto até o North Shore Park e a 1,3 quilômetros de distância de próspero e vibrante no centro de São Petersburgo - consistentemente nas notícias com elogios. Em outubro de 2023, "Outside Magazine", chamado St. PETERSBURG - Os 15 principais lugares mais felizes dos EUA, pulsando com uma comunidade vibrante, melhor qualidade de vida e mais acesso ao ar livre. "Um lugar onde todos se sentem melhor morando lá." Além disso, em 2023, o consultor da Forbes chamado Tampa Bay #1, como o melhor lugar para morar na Flórida, com atrações positivas para adultos jovens e praias intocadas. Esta casa é eficiente em termos energéticos, construídos com os padrões de furacões [padrões da FEMA], que reduz o custo do seguro contra inundações quando comparados às casas que não são compatíveis com uma ampla margem. A casa possui um gerador de 24kW e todo o paredão é novo e fica a 125 pés.
Considerações Financeiras
Preço:
$7,290,000
Taxa de HOA:
N/D
Valor do Imposto:
$23758.9
Preço por m²:
$1387.25
Descrição Legal do Imposto:
Snell Isle Bright Bay Unit 3 Lots 517 e 518
Características Exteriores
Tamanho do Lote:
18513
Características do Lote:
Desmarcado
Beira-mar:
Sim
Vagas de Estacionamento:
N/D
Estacionamento:
Abridor de porta de garagem, garagem voltada para o lado, na rua
Telhado:
Construído
Piscina:
Sim
Características da Piscina:
Cerca de segurança infantil, gunite, aquecida, no solo, iluminação, acesso externo ao banho, varredura da piscina, água salgada
Características Interiores
Quartos:
4
Banheiros:
5
Aquecimento:
Elétrico, Zoneado
Resfriamento:
Ar Central, Zoneado
Eletrodomésticos:
Geladeira de bar, forno embutido, fogão, lava-louças, descarte, fã de exaustão, fabricante de gelo, churrasqueira interna, microondas, alcance, geladeira, aquecedor de água sem tanques, geladeira de vinho
Mobiliado:
Não
Andar:
Mármore, Madeira
Níveis:
Dois
Características Adicionais
Subtipo de Imóvel:
Residência Unifamiliar
Estilo:
N/D
Ano de Construção:
2024
Tipo de Construção:
Bloco, revestimento de cimento, moldura de madeira
Vagas na Garagem:
Sim
Vagas Cobertas:
N/D
Orientação da Fachada:
Sul
Animais Permitidos:
Não
Condição Especial:
Nenhum
Características Adicionais:
Sistema de irrigação, iluminação, cozinha ao ar livre, chuveiro ao ar livre, calhas de chuva, calçada, portas deslizantes, aspersores medidos
Características Adicionais 2:
Veja Restrições de Leasing da Cidade de São Petersburgo
Mapa
  • Endereço
    1401 BRIGHTWATERS BLVD NE
Fale com um profissional
Por Que Nos Escolher?
  • Comunicação e Transparência
  • Negociação Qualificada
  • Rede Profissional Robusta
  • Suporte Pós-Venda
Propriedades em Destaque

Imóveis relacionados

avt
Daniel Dourado
$ 430,000
avt
Daniel Dourado
$ 779,000
avt
Daniel Dourado
$ 332,990
avt
Daniel Dourado
$ 429,900
avt
Daniel Dourado
$ 289,900
avt
Daniel Dourado
$ 623,990
avt
Daniel Dourado
$ 644,990
avt
Daniel Dourado
$ 235,000
avt
Daniel Dourado
$ 325,000
avt
Daniel Dourado
$ 469,900