Active

$875,000

Características:
  • 3 Quartos
  • 2 Banheiros
  • 170 m²
Visão Geral
  • ID: MFRTB8492221
  • Quartos: 3
  • Banheiros: 2
  • Tamanho: 170 m²
Detalhes do Imóvel
Observações
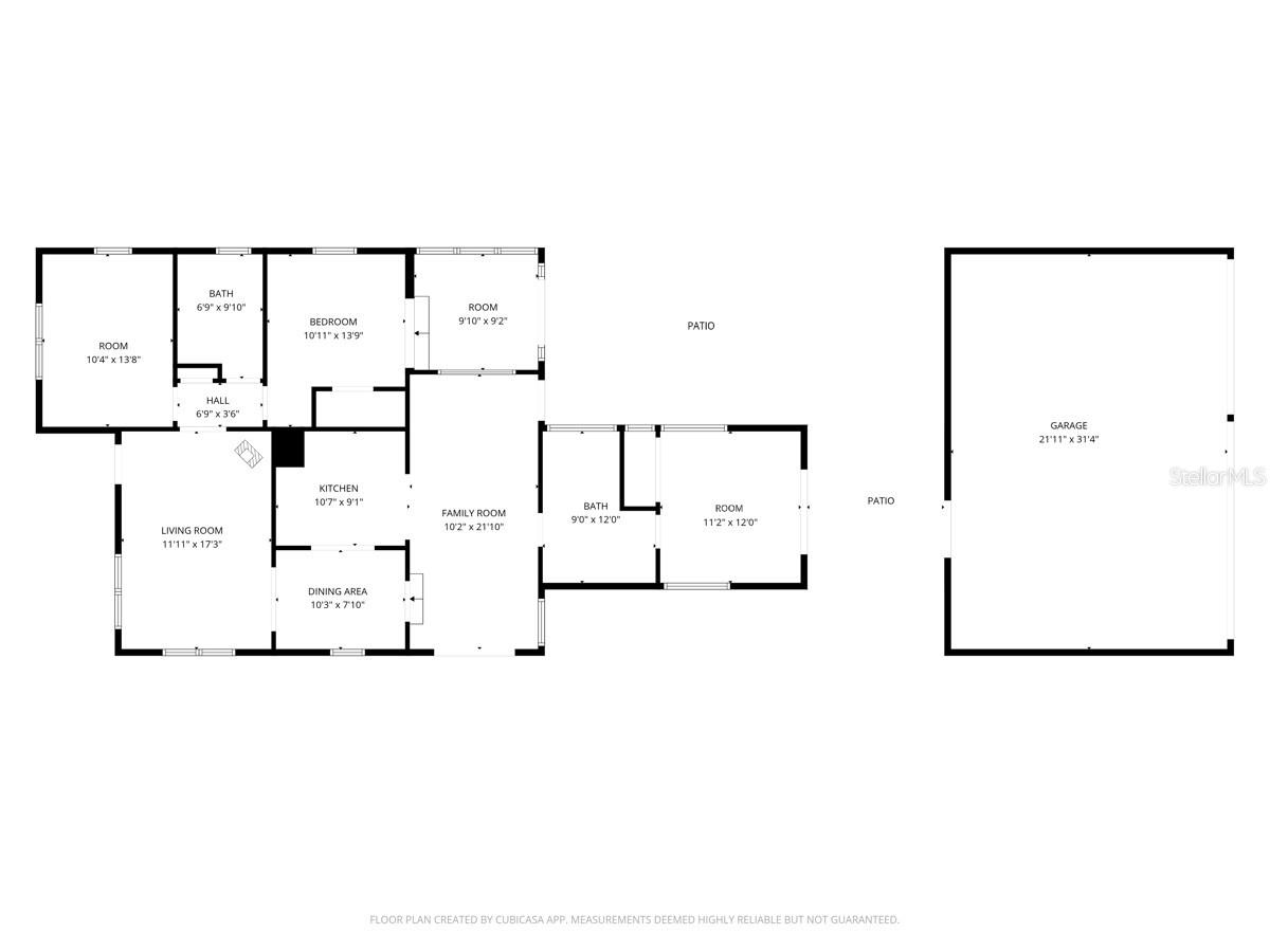
Bem-vindo ao bangalô mais exclusivo do Velho Sudeste, perfeitamente situado em uma zona não inundada, a poucos passos do pitoresco Lassing Park, de 13 acres. Esta casa incrivelmente charmosa oferece uma localização imbatível a apenas 4 minutos do centro de St. Pete, mantendo uma verdadeira sensação de bairro. Saia pela porta da frente para ver a água azul, o horizonte do centro de St. Pete e Tampa e a orla ativa repleta de kitesurfistas, canoístas e velejadores. O interior dispõe de 3 quartos, além de um escritório flexível e 2 banheiros, realçados pelo piso original de madeira e uma lareira independente de estilo retrô na sala principal. A luz natural entra na casa através de iluminação de estilo europeu, claraboias e tubos solares. As atualizações modernas incluem um telhado de metal durável, eletricidade totalmente nova e um sistema de filtragem de água para toda a casa. O exterior é um oásis privado com um enorme pátio traseiro para entretenimento que já inclui conexões de água quente e fria para uma futura cozinha externa. O terreno apresenta novos pavimentos perimetrais e paisagismo maduro mantido por um sistema de sprinklers Rainbird em um poço privado. Um carvalho deslumbrante no jardim da frente oferece sombra e o local perfeito para um balanço. A propriedade inclui uma enorme garagem para 3 carros com elevador e acesso por beco. Esta garagem tem medição separada e tem potencial para ser convertida em ginásio doméstico ou ADU. Esta é uma casa única que deve ser vista para ser apreciada.
Considerações Financeiras
Preço:
$875,000
Taxa de HOA:
N/D
Valor do Imposto:
$10647.34
Preço por m²:
$476.32
Descrição Legal do Imposto:
BAYBORO BLK 42, LOTE 12
Características Exteriores
Tamanho do Lote:
7048
Características do Lote:
Limites da cidade, calçada, pavimentada
Beira-mar:
Não
Vagas de Estacionamento:
N/D
Estacionamento:
Acesso por beco, abridor de porta de garagem, na rua, grande porte, oficina em garagem
Telhado:
Metal
Piscina:
Não
Características da Piscina:
N/D
Características Interiores
Quartos:
3
Banheiros:
2
Aquecimento:
Central
Resfriamento:
Central Aérea
Eletrodomésticos:
Forno embutido, lava-louças, secador, geladeira, lavadora, sistema de filtração de água
Mobiliado:
Sim
Andar:
Azulejo, Madeira
Níveis:
Um
Características Adicionais
Subtipo de Imóvel:
Residência Unifamiliar
Estilo:
N/D
Ano de Construção:
1945
Tipo de Construção:
Estuque
Vagas na Garagem:
Sim
Vagas Cobertas:
N/D
Orientação da Fachada:
Sudeste
Animais Permitidos:
Não
Condição Especial:
Nenhum
Características Adicionais:
Pátio privativo, portas deslizantes, sprinkler medido, armazenamento
Características Adicionais 2:
O comprador deve verificar com a cidade de St. Pete
Mapa
  • Endereço
    225 17TH AVE SE
Fale com um profissional
Por Que Nos Escolher?
  • Comunicação e Transparência
  • Negociação Qualificada
  • Rede Profissional Robusta
  • Suporte Pós-Venda
Propriedades em Destaque

Imóveis relacionados

avt
Daniel Dourado
$ 649,900
avt
Daniel Dourado
$ 350,000
avt
Daniel Dourado
$ 499,000
avt
Daniel Dourado
$ 205,000
avt
Daniel Dourado
$ 365,000
avt
Daniel Dourado
$ 470,000
avt
Daniel Dourado
$ 287,000
avt
Daniel Dourado
$ 387,000
avt
Daniel Dourado
$ 298,888