Active

$1,949,000

Características:
  • 4 Quartos
  • 3 Banheiros
  • 246 m²
Visão Geral
  • ID: MFRTB8459173
  • Quartos: 4
  • Banheiros: 3
  • Tamanho: 246 m²
Detalhes do Imóvel
Observações
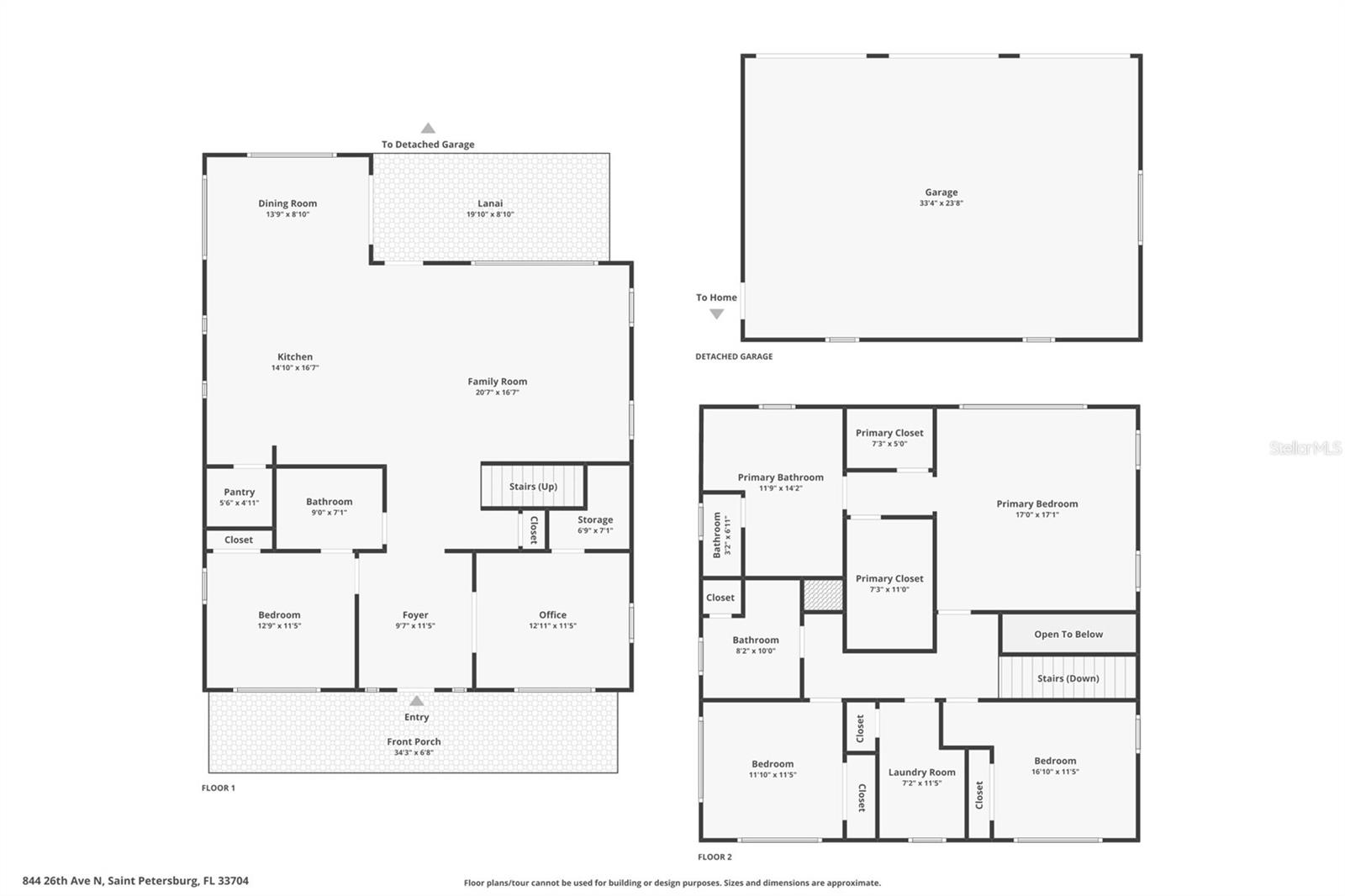
Nova construção concluída no coração de Crescent Heights, oferecendo design inteligente, construção de concreto durável e habitabilidade excepcional. Localizada em uma zona de baixo risco X inundação, esta residência pronta para morar possui 4 quartos, 3 banheiros, além de um escritório dedicado, com 2.658 pés quadrados de área útil aquecida e condicionada e mais de 4.302 pés quadrados de área total de construção. Tanto o primeiro quanto o segundo andar apresentam tetos de 3 metros, criando uma sensação luminosa e aberta por toda parte. O layout inclui uma suíte no primeiro andar, ideal para hóspedes ou residências multigeracionais, além de um escritório ou arrumos separados no nível principal. No andar de cima, a suíte principal serve como um retiro privado, oferecendo proporções generosas, banheira inspirada em spa e amplo closet. Os quartos adicionais são bem dimensionados e cuidadosamente organizados para oferecer flexibilidade para famílias, convidados ou necessidades de trabalho em casa. A casa é construída com blocos de concreto no primeiro andar, segundo andar e garagem individual, proporcionando resistência superior, durabilidade e vida interior tranquila. O exterior é finalizado com uma fachada refinada com colunas de tijolos que complementa o caráter arquitetônico do bairro Crescent Heights. A área de estar principal aberta foi projetada para o conforto e entretenimento do dia a dia, com luz natural generosa e fluxo contínuo entre a cozinha, as áreas de jantar e de estar. Os acabamentos são coesos e atemporais, selecionados para equilibrar estilo com habitabilidade a longo prazo. A vida ao ar livre é uma característica de destaque, destacada por uma piscina privativa no solo com acabamento PebbleSheen, deck de pedra natural e uma prateleira de sol, criando um ambiente descontraído de quintal em estilo resort. As varandas dianteiras e traseiras cobertas ampliam ainda mais o espaço para diversão durante todo o ano. Garagens individuais são comuns em Crescent Heights, mas esta casa se distingue por uma verdadeira garagem individual para três carros, oferecendo flexibilidade excepcional e armazenamento adicional no sótão acima da garagem. Idealmente localizada a poucos minutos do centro de São Petersburgo, dos parques à beira-mar, dos restaurantes e das lojas, esta casa combina a qualidade moderna das novas construções com o charme, a facilidade de caminhar e o apelo pelos quais Crescent Heights é conhecida.
Considerações Financeiras
Preço:
$1,949,000
Taxa de HOA:
N/D
Valor do Imposto:
$7237.07
Preço por m²:
$733.26
Descrição Legal do Imposto:
SPRING HILL REVISADO LOTE 18
Características Exteriores
Tamanho do Lote:
6538
Características do Lote:
Calçada
Beira-mar:
Não
Vagas de Estacionamento:
N/D
Estacionamento:
Abridor de porta de garagem, garagem voltada para trás
Telhado:
Telha
Piscina:
Sim
Características da Piscina:
Gunite, no solo
Características Interiores
Quartos:
4
Banheiros:
3
Aquecimento:
Central, Elétrica
Resfriamento:
Central Aérea
Eletrodomésticos:
Máquina de lavar louça, descarte, micro-ondas, fogão, exaustor, geladeira, aquecedor de água sem tanque, refrigerador de vinho
Mobiliado:
Sim
Andar:
Tijolo, Azulejo, Madeira
Níveis:
Dois
Características Adicionais
Subtipo de Imóvel:
Residência Unifamiliar
Estilo:
N/D
Ano de Construção:
2025
Tipo de Construção:
Bloco, tijolo, tipo HardiPlank
Vagas na Garagem:
Sim
Vagas Cobertas:
N/D
Orientação da Fachada:
Norte
Animais Permitidos:
Sim
Condição Especial:
Nenhum
Características Adicionais:
Quintal privativo, calhas de chuva, calçada
Características Adicionais 2:
N/D
Mapa
  • Endereço
    844 26TH AVE N
Fale com um profissional
Por Que Nos Escolher?
  • Comunicação e Transparência
  • Negociação Qualificada
  • Rede Profissional Robusta
  • Suporte Pós-Venda
Propriedades em Destaque

Imóveis relacionados

avt
Daniel Dourado
$ 339,900
avt
Daniel Dourado
$ 309,900
avt
Daniel Dourado
$ 1,575,000
avt
Daniel Dourado
$ 435,000
avt
Daniel Dourado
$ 558,000
avt
Daniel Dourado
$ 395,999
avt
Daniel Dourado
$ 429,000
avt
Daniel Dourado
$ 499,900
avt
Daniel Dourado
$ 395,000