Active

$735,000

Características:
  • 3 Quartos
  • 2 Banheiros
  • 251 m²
Visão Geral
  • ID: MFRTB8407745
  • Quartos: 3
  • Banheiros: 2
  • Tamanho: 251 m²
Detalhes do Imóvel
Observações
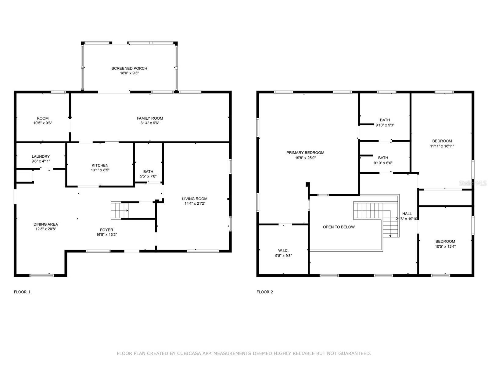
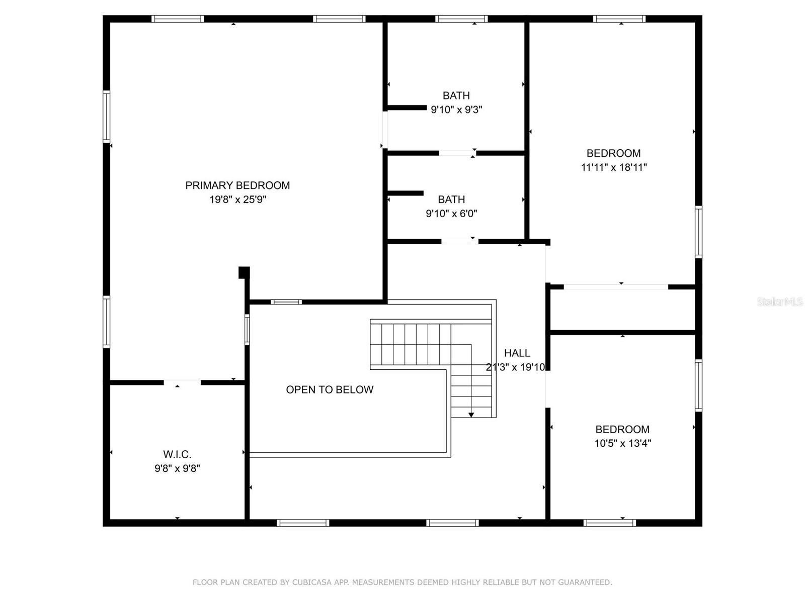
Descubra esta casa expandida de 3 quartos e 2 banheiros no coração do Jungle Terrace-apenas a uma quadra de Walter Fuller Park e minutos até os lançamentos de barcos, a trilha Pinellas e as praias. Os vendedores adoraram esta casa e localização por 33 anos, agregando valor continuamente, incluindo um segundo andar! Com mais de 3.000 SF total, esta casa combina atualizações modernas com charme rústico, incluindo um telhado de metal 2020, a reforma de cozinha 2024, o piso de tábua de vinil no nível principal e o tapete mais recente no andar de cima. Toda a casa é um grande conceito aberto que cria uma atmosfera acolhedora. A cozinha combina charme com design inteligente e é ideal para entretenimento. Portas curvas, backsplash do metrô, armários de agitadores brancos, pia de fazenda de aço inoxidável com torneira de pulverizador e uma barra de passagem para a sala de jogos tornam-a funcional e um ponto focal da casa. O armazenamento se destaca com: • Prateleiras de despensa rotativa de duas camadas de canto duplo • Gaveta de tempero deslizante ao lado do fogão • Uma sala de despensa completa. Os aparelhos de primeira linha incluem: • LG InstaView ™ Lateral-By-side Refrigerator com dispensador de água/gelo e painel knock-to-view • GE Glass Cooktop • Micro-ondas de aço inoxidável LG com opções de tela de toque • Lavadora de louça inoxidável LG com banheira de aço inoxidável interior • Fonte do projeto 3/4 Disposer No andar de cima oferece um espaçoso retiro primário com recortes exclusivos conectados ao espaço de vida abaixo. O layout se encaixa em um conjunto de quarto completo, um lounge de espreguiçadeiras ou um berçário no quarto, com um closet e banho de banheiro privativo. O banho primário possui uma banheira de jacuzzi, chuveiro de entrada, pias duplas e armário de linho. O segundo quarto também é superdimensionado e um terceiro quarto é do tamanho de um quarto, mas carece de um armário. Um recanto de loft aconchegante funciona muito bem como uma sala de jogos ou um espaço de leitura fria. Se a própria casa não oferecer espaço de armazenamento suficiente, há duas escadas no sótão nos quartos. Há uma sala familiar no estilo de teatro, além de uma sala de jogos que possui acabamentos e vigas de madeira de pinheiro, uma mesa de vários jogos e controles deslizantes que se abrem para o lanai exibido. Projetado para conforto, existem ventiladores de teto com controle remoto com luzes em todos os lugares certos e sistemas de A/C duplos para o andar de cima e para baixo. A lavanderia do primeiro andar possui ardósia de ardósia e secadora de perfil de perfil GE de ardósia e secadora com uma bancada dobrável embutida, haste de suspensão e armários de armazenamento. Os toques adicionados incluem iluminação embutida, revestimento de escadas embutidas, armazenamento abaixo da escada e grades de escadas personalizadas com postes de madeira newel e fusos de metal preto esbelto-calor com uma borda moderna. Eles até pensaram nos animais de estimação durante a remodelação: uma passarela conecta o loft ao quarto principal. O espaço ao ar livre é fenomenal. Uma varanda coberta oferece sala de cadeira de balanço para assistir ou escapar do bairro para seu próprio oásis tropical com uma piscina/spa independentes, paisagismo exuberante e uma cerca de privacidade de madeira 2023 com entradas fechadas duplas - ideais para armazenar um trailer, barco ou jet skis. A localização não fica muito melhor do que isso. Você pode caminhar até o parque até a rua que tem um lago de pesca, trilhas, campos esportivos, parque de cães, tênis, pickleball e piscina de colo com tábua de mergulho e slides. Perto de restaurantes, compras e compras que incluem o Tyrone Mall. Não há restrições de HOA ou ação; Você pode até ter galinhas, se quiser. Não perca essa oportunidade de possuir no bairro histórico da selva. Confira o Tour Virtual, a Folha de atualização de propriedades e, quando estiver pronto para possuir seu próprio retiro, agende uma exibição pessoal.
Considerações Financeiras
Preço:
$735,000
Taxa de HOA:
N/D
Valor do Imposto:
$1514.7
Preço por m²:
$271.62
Descrição Legal do Imposto:
Bancos, Martha C. Sub Blk 1, lote 10
Características Exteriores
Tamanho do Lote:
7501
Características do Lote:
Limites da cidade, paisagístico, nivelado, pavimentado
Beira-mar:
Não
Vagas de Estacionamento:
N/D
Estacionamento:
Entrada
Telhado:
Metal
Piscina:
Sim
Características da Piscina:
No chão
Características Interiores
Quartos:
3
Banheiros:
2
Aquecimento:
Central, Elétrica
Resfriamento:
Central Aérea
Eletrodomésticos:
Máquina de lavar louça, descarte, secadora, aquecedor elétrico de água, máquina de fazer gelo, micro-ondas, fogão, geladeira, lavadora
Mobiliado:
Não
Andar:
Carpete, Azulejo Cerâmico, Concreto, Vinil
Níveis:
Dois
Características Adicionais
Subtipo de Imóvel:
Residência Unifamiliar
Estilo:
N/D
Ano de Construção:
1959
Tipo de Construção:
Tapume de vinil
Vagas na Garagem:
Não
Vagas Cobertas:
N/D
Orientação da Fachada:
Leste
Animais Permitidos:
Não
Condição Especial:
Nenhum
Características Adicionais:
Caixa de correio privada, calhas de chuva, portas de correr, armazenamento
Características Adicionais 2:
A cidade de São Petersburgo permite aluguel superior a 30 dias por vez. Menos de 30 dias (curto prazo) alugam 3x por ano. Visite o site da cidade de St Pete para obter detalhes - https://www.stpete.org/residents/housing/renters
Mapa
  • Endereço
    3464 79TH WAY N
Fale com um profissional
Por Que Nos Escolher?
  • Comunicação e Transparência
  • Negociação Qualificada
  • Rede Profissional Robusta
  • Suporte Pós-Venda
Propriedades em Destaque

Imóveis relacionados

avt
Daniel Dourado
$ 850,000
avt
Daniel Dourado
$ 249,990
avt
Daniel Dourado
$ 494,990
avt
Daniel Dourado
$ 260,000
avt
Daniel Dourado
$ 409,481
avt
Daniel Dourado
$ 739,000
avt
Daniel Dourado
$ 357,070
avt
Daniel Dourado
$ 839,990
avt
Daniel Dourado
$ 360,000
avt
Daniel Dourado
$ 325,000