Active

$594,500

Características:
  • 4 Quartos
  • 3 Banheiros
  • 178 m²
Visão Geral
  • ID: MFRTB8390354
  • Quartos: 4
  • Banheiros: 3
  • Tamanho: 178 m²
Detalhes do Imóvel
Observações
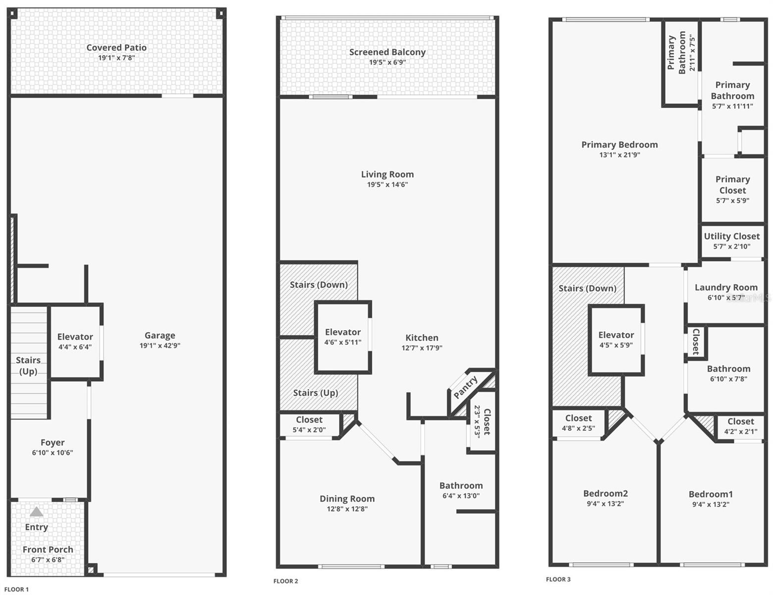
VIDA COSTEIRA REFINADA COM BAIXA TAXA DE HOA! Bem-vindo a ESTA CASA IMACULADAMENTE MANTIDA DE 4 QUARTOS E 3 BANHOS, oferecendo VISTA PARA O LAGO e UM ELEVADOR PRIVADO atendendo todos os níveis. Situada em uma COMUNIDADE FECHADA À BEIRA-MAR COM ACESSO À MARINA, incluindo barcos molhados e secos para locação, esta casa não é apenas um lugar para morar - é uma experiência. Comece o dia com um café na sua VARANDA PRIVADA ou DESANDOE AO ​​PÔR DO SOL NO SEU PÁTIO NO TÉRREO, ambos oferecendo vistas deslumbrantes para o lago e situados em uma reserva natural privada de 4 acres - perfeita para caminhadas tranquilas, observação de pássaros e momentos relaxantes. Este santuário realmente deve ser visto para crer. A ÁREA DE ESTAR PRINCIPAL DE CONCEITO ABERTO parece um retiro privado, inundado de luz natural por portas de correr, convidando brisas frescas e proporcionando privacidade SEM VIZINHOS TRASEIROS. MOLDURA DE COROA, TETOS DE 10 PÉS e toques de design cuidadosos criam um espaço elegante e descontraído para entretenimento ou relaxamento. A COZINHA PRONTA PARA CULINÁRIA possui BANCADAS DE GRANITO, ARMÁRIOS DE 42 POLEGADAS, UMA DESPENSA E APARELHOS DE AÇO INOXIDÁVEL, INCLUINDO UMA GELADEIRA COM CAFÉ KEURIG INCORPORADA. O nível principal também inclui UM QUARTO DE HÓSPEDES FLEXÍVEL e banheiro completo, ideal para receber hóspedes, podendo ser utilizado como home office ou sala de jantar formal - (atualmente utilizada como esta última). No andar de cima, a SUÍTE PRIMÁRIA OVERSIZED acomoda confortavelmente uma cama king-size e uma área de estar, com espaço para relaxar e descontrair. O BANHEIRO ESTILO SPA inclui VAIDADES DUPLAS, UM CHUVEIRO GRANDE E UM ARMÁRIO WALK-IN. Dois quartos de hóspedes adicionais, um banheiro completo e uma lavanderia conveniente completam o nível superior. Os recursos adicionais incluem: GARAGEM TANDEM GRANDE PARA 2 CARROS com espaço para bicicletas, caiaques e armazenamento. PELÍCULA DE JANELA RESISTENTE A IMPACTO + PERSIANAS DE FURACÃO. Há muitos ESTACIONAMENTOS PARA HÓSPEDES disponíveis e esta é uma COMUNIDADE QUE ACEITA ANIMAIS DE ESTIMAÇÃO. As comodidades da comunidade incluem PISCINA ESTILO RESORT, CLUBHOUSE, TIKI BAR, CAPTAIN'S LOUNGE, TRILHAS CÊNICAS PARA CAMINHADA E ACESSO À PRESERVA NATURAL, tudo a poucos minutos do centro de São Petersburgo, praias do Golfo, restaurantes e lojas. Quer você seja um velejador, um amante da natureza ou simplesmente esteja em busca de luxo pronto para uso com baixa manutenção, esta casa oferece o melhor dos dois mundos. Por favor, peça uma lista detalhada de atualizações. Não espere – sua nova vida está esperando para começar! NÃO HISTÓRICO DE IMPACTOS ANTERIORES DE FURACÃO. A comunidade cobre seguro contra inundações para o exterior.
Considerações Financeiras
Preço:
$594,500
Taxa de HOA:
562.18
Valor do Imposto:
$6723.44
Preço por m²:
$309.64
Descrição Legal do Imposto:
Enseada no lote de Loggerhead Marina 66
Características Exteriores
Tamanho do Lote:
1059
Características do Lote:
Área de conservação, zona de inundação, paisagística, perto da marina, privada, calçada, pavimentada
Beira-mar:
Sim
Vagas de Estacionamento:
N/D
Estacionamento:
Abridor de porta de garagem, nível do solo, convidado, grande, tandem
Telhado:
Metal
Piscina:
Não
Características da Piscina:
N/D
Características Interiores
Quartos:
4
Banheiros:
3
Aquecimento:
Central, Zoneado
Resfriamento:
Air Central, Zoned, fã do sótão
Eletrodomésticos:
Máquina de lavar louça, descarte, secadora, aquecedor elétrico de água, micro-ondas, fogão, geladeira, lavadora, amaciante de água
Mobiliado:
Sim
Andar:
Tapete, Azulejo Cerâmico, Madeira, Azulejo
Níveis:
Três ou mais
Características Adicionais
Subtipo de Imóvel:
Moradia
Estilo:
N/D
Ano de Construção:
2016
Tipo de Construção:
Bloco, concreto, estuque, revestimento de vinil, quadro
Vagas na Garagem:
Sim
Vagas Cobertas:
N/D
Orientação da Fachada:
Nordeste
Animais Permitidos:
Não
Condição Especial:
Nenhum
Características Adicionais:
Toldo (s), varanda, pátio, corrida de cães, portas francesas, persianas de furacões, iluminação, grelha ao ar livre, calhas de chuva, calçada
Características Adicionais 2:
Verifique com o HOA para obter restrições e requisitos de aluguel.
Mapa
  • Endereço
    3138 NAUTICAL PL S
Fale com um profissional
Por Que Nos Escolher?
  • Comunicação e Transparência
  • Negociação Qualificada
  • Rede Profissional Robusta
  • Suporte Pós-Venda
Propriedades em Destaque

Imóveis relacionados

img
  • Featured
  • Active
Townhouse

8522 CANYON CREEK TRL

  • 3
  • 3
  • 169 m²
avt
Daniel Dourado
$ 274,000
img
  • Featured
  • Active
Townhouse

5685 NEW INDEPENDENCE PKWY

  • 3
  • 3
  • 162 m²
avt
Daniel Dourado
$ 475,000
avt
Daniel Dourado
$ 373,439
avt
Daniel Dourado
$ 320,000
img
  • Featured
  • Active
Townhouse

5246 HAMPTON BEACH PL

  • 2
  • 2
  • 114 m²
avt
Daniel Dourado
$ 425,000
avt
Daniel Dourado
$ 275,000
avt
Daniel Dourado
$ 415,000
avt
Daniel Dourado
$ 307,490
avt
Daniel Dourado
$ 285,000
avt
Daniel Dourado
$ 500,000
img
  • Featured
  • Active
Townhouse

1550 LAKE BALDWIN LN #A, B, C

  • 4
  • 5
  • 292 m²
avt
Daniel Dourado
$ 1,228,000
img
  • Featured
  • Active
Townhouse

507 OCEAN COURSE AVE #507

  • 3
  • 2
  • 128 m²
avt
Daniel Dourado
$ 320,000