Active

$2,640,000

Características:
  • 4 Quartos
  • 4 Banheiros
  • 299 m²
Visão Geral
  • ID: MFRTB8332800
  • Quartos: 4
  • Banheiros: 4
  • Tamanho: 299 m²
Detalhes do Imóvel
Observações
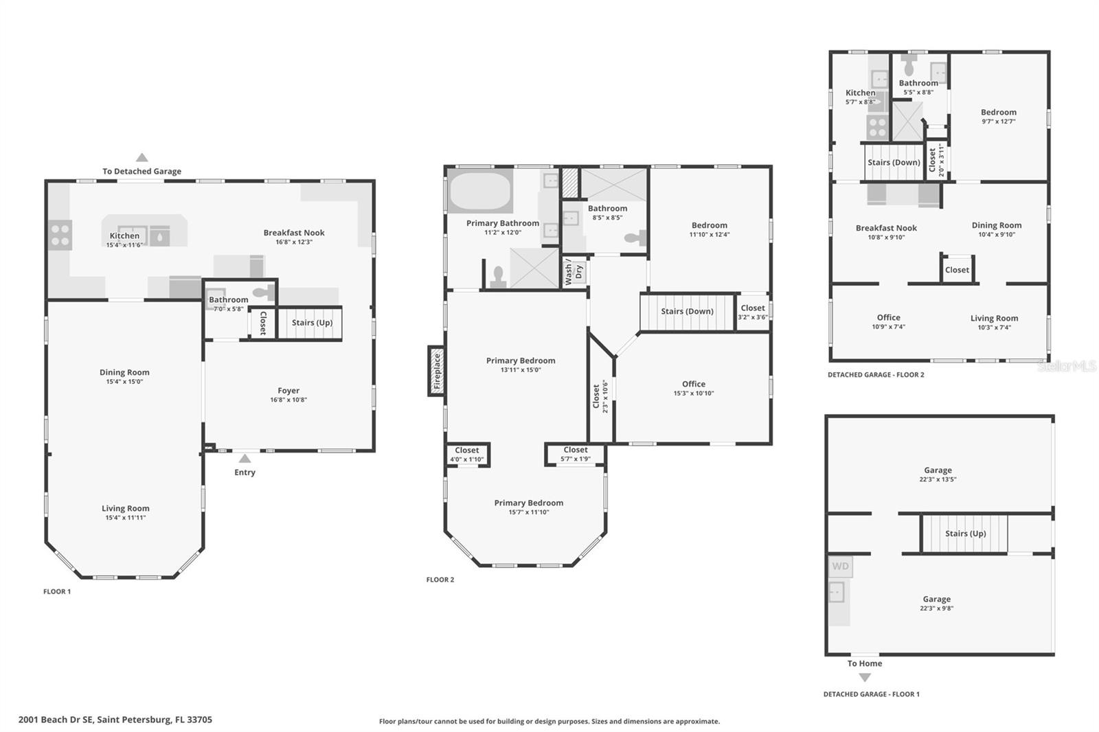
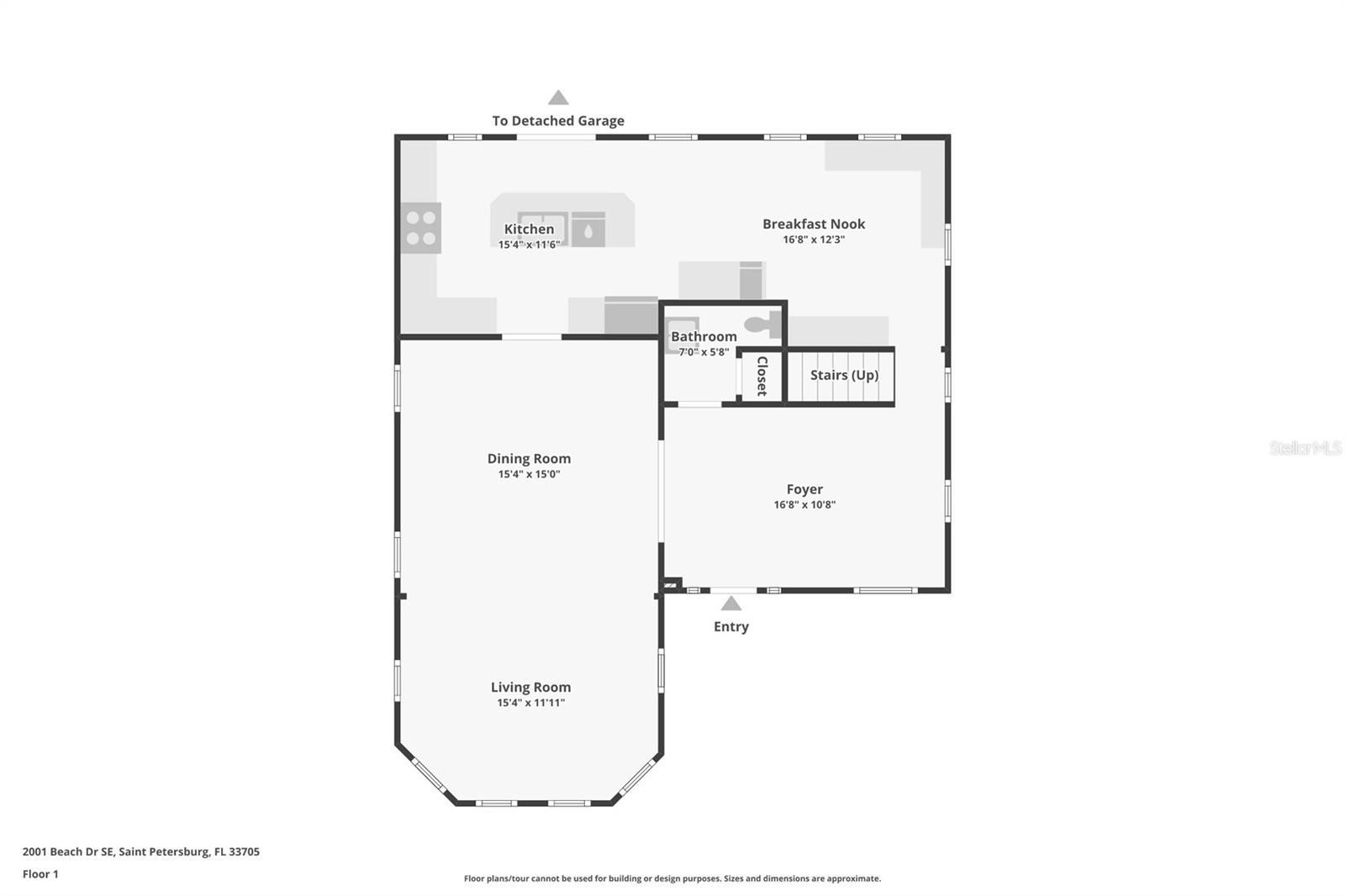
Propriedade à beira -mar alta e seca - Nenhum seguro de inundação necessário. Descubra o charme e a elegância com vistas deslumbrantes à beira-mar de Tampa Bay nesta casa meticulosamente renovada pelo construtor premiado Don Strobel. Mistura perfeitamente o personagem histórico com o luxo moderno, esta casa principal de 3 quartos e 2,5 banheiros apresenta pisos de pinheiro, lareiras a lenha de azulejo e uma cozinha de um chef com eletrodomésticos de primeira linha, armários personalizados e detalhes atenciosos como um centro de barista embutido. A suíte primária oferece uma área de estar aconchegante, banho inspirado em spa e acesso à varanda com vistas deslumbrantes da água. Peça nossos desenhos de piscina se estiver procurando uma piscina para casa. O apartamento da carruagem, localizado acima da garagem de dois carros, acrescenta uma versatilidade incrível com um quarto quarto, cozinha de cozinha, marquise/escritório e entrada privada-ideal para os hóspedes, um espaço de trabalho criativo ou como um aluguel produtor de renda (anteriormente ganhando US $ 2.500/mês). Aproveite seu oásis de quintal tropical, completo com um deck de madeira brasileira, spa aquecida e paisagismo exuberante, tudo perfeito para entretenimento. Situado em um estacionamento de esquina do Lassing Park, você desfrutará de caiaque, passeios ao nascer do sol e a sempre presente brisa da Baía de Tampa. Este bairro pacífico é uma jóia escondida a apenas 15 quarteirões da vibrante cultura, restaurantes e entretenimento de St. Pete. O lar pré -formado lindamente durante tempestades, sem intrusão de água ou dano. Atualizações recentes incluem novos paisagismo, armários de cozinha refinados, eletrodomésticos atualizados, todas as janelas são classificadas com o furacão e vêm com garantia e deck recém -pintado e exterior lavado por pressão. Consulte a lista completa de recursos. Bônus: espaço para piscina, consulte nosso design incluído para imaginar este belo pátio de estilo resort. Esta é uma rara oportunidade de possuir um pedaço da história de St. Pete com atualizações modernas, vistas sem fim e o melhor da vida da Flórida. Agende sua turnê privada hoje para experimentar esta propriedade excepcional em primeira mão!
Considerações Financeiras
Preço:
$2,640,000
Taxa de HOA:
N/D
Valor do Imposto:
$9056.73
Preço por m²:
$820.13
Descrição Legal do Imposto:
ROUSLYNN BLK 6, LOTE 12 MENOS W 35FT
Características Exteriores
Tamanho do Lote:
6747
Características do Lote:
Paisagístico, calçada, tijolo de rua
Beira-mar:
Sim
Vagas de Estacionamento:
N/D
Estacionamento:
A imagem está disponível para download em alta resolução por até 1920x1080.
Telhado:
Telha
Piscina:
Sim
Características da Piscina:
Outro
Características Interiores
Quartos:
4
Banheiros:
4
Aquecimento:
Central
Resfriamento:
Central Aérea
Eletrodomésticos:
Máquina de lavar louça, descarte, secadora, exaustor, fogão, exaustor, geladeira, lavadora, amaciante de água, geladeira para vinho
Mobiliado:
Não
Andar:
Mármore, Azulejo, Madeira
Níveis:
Dois
Características Adicionais
Subtipo de Imóvel:
Residência Unifamiliar
Estilo:
N/D
Ano de Construção:
1925
Tipo de Construção:
Bloco, Estuque
Vagas na Garagem:
Sim
Vagas Cobertas:
N/D
Orientação da Fachada:
Sul
Animais Permitidos:
Não
Condição Especial:
Nenhum
Características Adicionais:
Varanda, pátio, portas francesas, iluminação, grelha ao ar livre, calçada, armazenamento
Características Adicionais 2:
Confirme as restrições de leasing com a cidade de São Petersburgo
Mapa
  • Endereço
    2001 BEACH DR SE
Fale com um profissional
Por Que Nos Escolher?
  • Comunicação e Transparência
  • Negociação Qualificada
  • Rede Profissional Robusta
  • Suporte Pós-Venda
Propriedades em Destaque

Imóveis relacionados

avt
Daniel Dourado
$ 260,000
avt
Daniel Dourado
$ 700,000
avt
Daniel Dourado
$ 340,000
avt
Daniel Dourado
$ 249,900
avt
Daniel Dourado
$ 389,000
avt
Daniel Dourado
$ 615,000
avt
Daniel Dourado
$ 395,000
avt
Daniel Dourado
$ 479,000
avt
Daniel Dourado
$ 487,500
avt
Daniel Dourado
$ 379,900