Active

$424,000

Características:
  • 3 Quartos
  • 2 Banheiros
  • 101 m²
Visão Geral
  • ID: MFRTB8302315
  • Quartos: 3
  • Banheiros: 2
  • Tamanho: 101 m²
Detalhes do Imóvel
Observações
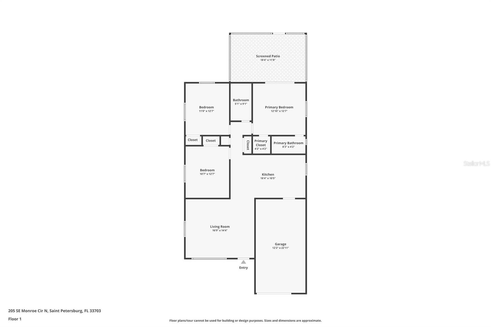
Compre esta casa com uma taxa de juros abaixo do mercado! O vendedor tem um empréstimo VA assumido com uma taxa de juros de 5,85%! Bônus - Este lar sobreviveu ao furacão Helene e Milton com zero dano! Bem -vindo ao seu oásis lindamente atualizado no coração de Sunny St. Pete! Esta casa encantadora e cheia de luz oferece uma mistura perfeita de atualizações modernas e apelo atemporal. Aninhado em árvores sombrias, o orgulho da propriedade é evidente por toda parte. À medida que você se aproxima, o apelo do meio -fio é inegável, com um convidativo pátio da frente recebendo você em casa. Entre e seja recebido por um espaço de vida brilhante e arejado, onde reformas atenciosas e design elegante se reúnem. A estrela da casa? A cozinha deslumbrante! Apresentando armários personalizados de estilo shaker branco com molduras de coroa e fundo, gavetas profundas de close macio, iluminação subterrânea ambiente e armários de exibição de vidro, esta cozinha é tão funcional quanto bonita. A despensa embutida, projetada de maneira inteligente em um ângulo para maximizar o espaço, inclui prateleiras para facilitar o acesso. Um buffet bege de areia contrastante com prateleiras de vinhos personalizadas adiciona um toque de elegância, enquanto utensílios de aço inoxidável e um chique em mármore backsplash em mármore com espinha de peixe completa o visual. Atualizações recentes são abundantes! Desfrute de paz de espírito com um telhado novinho em folha instalado em março de 2024, um novo sistema de A/C e dutos com aberturas atualizadas de setembro de 2023 e novas portas de garagem interiores e externas com classificação de incêndio (2024). O sistema elétrico da casa foi atualizado em 2020 e um novo aquecedor de água também foi instalado em 2020. As janelas com classificação de furacões, substituídas em 2016, oferecem segurança e eficiência energética, enquanto o novo Facia e os intradorsos (março de 2024) e um novo isolamento de espuma de spray do sótão (2023 de setembro) garantem conforto e baixa manutenção. O piso de madeira de bambu o leva pela casa, onde você encontrará três quartos espaçosos, incluindo uma suíte master com um closet e um banheiro atualizado com uma grande chuva. O banheiro de hóspedes, igualmente elegante, possui detalhes em azulejos de vidro e uma combinação de banheira/chuveiro, juntamente com uma vaidade que oferece armazenamento extra. Saia da sua varanda serena e exibida, perfeita para desfrutar da brisa da Flórida. O superdimensionado 8x12 Tuff Shed fornece amplo armazenamento para ferramentas, e a nova caixa de controle de aspersores (outubro de 2023) garante fácil atendimento ao gramado. O quintal, totalmente cercado com cercas de PVC cor de areia, é ideal para relaxamento ou jardinagem no jardim de reflexão. O controle mensal de pragas está em vigor para sua conveniência, e o atual prêmio do seguro contra inundações é de apenas US $ 2.100 anualmente. Esta casa de bloco de concreto sólido também vem com vantagens adicionais incluem um sistema de segurança com câmeras com fio, um novo aquecedor de água quente (2020), acessórios atualizados e uma almofada de estacionamento duplo que leva à garagem de 1 carro. Este oásis aconchegante sob as árvores está pronto para você ligar para casa. Venha experimentar tudo o que tem a oferecer!
Considerações Financeiras
Preço:
$424,000
Taxa de HOA:
N/D
Valor do Imposto:
$5853
Preço por m²:
$387.21
Descrição Legal do Imposto:
NORTE DE SÃO PETERSBURGO BLK 38, LOTE 2
Características Exteriores
Tamanho do Lote:
7144
Características do Lote:
N/D
Beira-mar:
Não
Vagas de Estacionamento:
N/D
Estacionamento:
N/D
Telhado:
Telha
Piscina:
Não
Características da Piscina:
N/D
Características Interiores
Quartos:
3
Banheiros:
2
Aquecimento:
Central
Resfriamento:
Central Aérea
Eletrodomésticos:
Máquina de lavar louça, secadora, micro-ondas, fogão, geladeira, lavadora
Mobiliado:
Não
Andar:
Bambu, Azulejo
Níveis:
Um
Características Adicionais
Subtipo de Imóvel:
Residência Unifamiliar
Estilo:
N/D
Ano de Construção:
1973
Tipo de Construção:
Bloquear
Vagas na Garagem:
Sim
Vagas Cobertas:
N/D
Orientação da Fachada:
Noroeste
Animais Permitidos:
Não
Condição Especial:
Nenhum
Características Adicionais:
Calhas de chuva, sprinklers medidos
Características Adicionais 2:
Verifique as restrições da cidade e do condado.
Mapa
  • Endereço
    205 SE MONROE CIR N
Fale com um profissional
Por Que Nos Escolher?
  • Comunicação e Transparência
  • Negociação Qualificada
  • Rede Profissional Robusta
  • Suporte Pós-Venda
Propriedades em Destaque

Imóveis relacionados

avt
Daniel Dourado
$ 565,000
avt
Daniel Dourado
$ 439,900
avt
Daniel Dourado
$ 395,000
avt
Daniel Dourado
$ 235,000
avt
Daniel Dourado
$ 415,000
avt
Daniel Dourado
$ 360,000
avt
Daniel Dourado
$ 269,900
avt
Daniel Dourado
$ 775,000