Active

$440,000

Características:
  • 3 Quartos
  • 3 Banheiros
  • 184 m²
Visão Geral
  • ID: MFRT3543888
  • Quartos: 3
  • Banheiros: 3
  • Tamanho: 184 m²
Detalhes do Imóvel
Observações
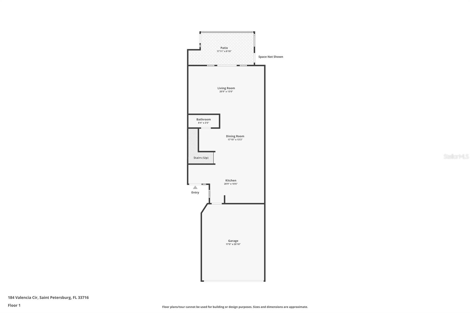
Melhoria de preços. Bem sob valor de mercado! Além disso, como um bônus adicional*, o vendedor está fornecendo um crédito de volta em dinheiro de US $ 10.000 ao comprador no fechamento!* Não perca a oportunidade de chamar esse esplêndido Townhome de sua residência. Tenha certeza de que as vilas de Carillon estavam livres de quaisquer danos/problemas causados ​​pelas principais tempestades. Convenientemente localizado em um bairro cobiçado, a comunidade está situada em uma localização central do norte de São Petersburgo. Este grande município impressionante volta à privacidade em um lote de conservação. Ao entrar, aproveite a planta baixa do conceito aberto com muito espaço de vida. Esta unidade de pé quadrada de 1990 possui 3 quartos e 2 1/2 banheiros com uma espaçosa garagem de 2 carros. Sim, um condomínio com uma garagem de 2 carros anexada! O primeiro nível consiste em belos pisos de madeira na sala de estar, com ladrilhos na cozinha e no vestíbulo, enquanto acentuados com belas molduras de coroa. Um grande piso plano aberto e uma cozinha aguardam com bancadas de granito e aparelhos de elogios, para tornar este um espaço perfeito para cozinhar ou divertir. Armazenamento adicional sob a escada e um banho de 1/2 completam o primeiro nível. No andar de cima, o quarto principal é incrível. Espaçoso e com muito armazenamento no armário. A suíte master também apresenta portas francesas duplas que levam a uma varanda aberta privada. O banheiro principal tem um chuveiro de grandes dimensões e uma grande banheira de jardim com vaidades duplas. No andar de cima é concluído com uma grande lavanderia para conveniência - a nova lavadora e a secadora fica com a unidade - e 2 grandes quartos adicionais com armários de grandes dimensões. Ambos os quartos compartilham um banheiro perfeito no estilo Jack e Jill com bancadas de granito e uma combinação cheia de banheira e chuveiro. Perfeito para qualquer família. A comunidade apresenta portões de acesso à segurança, casa de clube, piscina comunitária com espreguiçadeiras. A uma curta distância da trilha da lagoa de conservação de Carillon, Boardwalk e Wildlife. Relaxe e desfrute da Flórida que vive nesta comunidade incrível. O Villas of Carillon é uma comunidade segura, fechada, fechada e para animais de estimação. Convenientemente localizado em 275 e a uma curta distância de carro das praias, ambos aeroportos e todas as grandes comodidades da área da baía de Tampa! O HOA inclui: seguro contra inundações, água/esgoto/lixo, pintura externa e manutenção da varanda, portões com segurança drive-through, paisagismo profissional, piscina aquecida e casa de piscina, manutenção de edifícios externos, incluindo substituição do telhado e área de caixa de correio central.
Considerações Financeiras
Preço:
$440,000
Taxa de HOA:
760
Valor do Imposto:
$3971
Preço por m²:
$221.11
Descrição Legal do Imposto:
Villas de Carillon Fase II e III BLK 34, lote 2
Características Exteriores
Tamanho do Lote:
1703
Características do Lote:
Calçada, Privada
Beira-mar:
Não
Vagas de Estacionamento:
N/D
Estacionamento:
N/D
Telhado:
Telha
Piscina:
Não
Características da Piscina:
Gunite, no solo
Características Interiores
Quartos:
3
Banheiros:
3
Aquecimento:
Central
Resfriamento:
Central Aérea
Eletrodomésticos:
Máquina de lavar louça, descarte, secadora, micro-ondas, fogão, geladeira, lavadora
Mobiliado:
Não
Andar:
Carpete, Azulejo Cerâmico, Madeira
Níveis:
Dois
Características Adicionais
Subtipo de Imóvel:
Moradia
Estilo:
N/D
Ano de Construção:
2006
Tipo de Construção:
Tijolo, Estuque
Vagas na Garagem:
Sim
Vagas Cobertas:
N/D
Orientação da Fachada:
Norte
Animais Permitidos:
Sim
Condição Especial:
Nenhum
Características Adicionais:
Varanda, Portas Francesas
Características Adicionais 2:
VER HOA
Mapa
  • Endereço
    184 VALENCIA CIR
Fale com um profissional
Por Que Nos Escolher?
  • Comunicação e Transparência
  • Negociação Qualificada
  • Rede Profissional Robusta
  • Suporte Pós-Venda
Propriedades em Destaque

Imóveis relacionados

avt
Daniel Dourado
$ 299,500
avt
Daniel Dourado
$ 303,990
avt
Daniel Dourado
$ 296,720
avt
Daniel Dourado
$ 249,950
img
  • Featured
  • Active
Townhouse

1050 STARKEY RD #601

  • 4
  • 4
  • 170 m²
avt
Daniel Dourado
$ 395,000
avt
Daniel Dourado
$ 387,000
avt
Daniel Dourado
$ 399,900
img
  • Featured
  • Active
Townhouse

2419 MIDNIGHT PEARL DR

  • 3
  • 3
  • 160 m²
avt
Daniel Dourado
$ 370,000
avt
Daniel Dourado
$ 399,990
img
  • Featured
  • Active
Townhouse

1201 ROYAL ST GEORGE BLVD

  • 3
  • 3
  • 174 m²
avt
Daniel Dourado
$ 319,900
avt
Daniel Dourado
$ 338,988
img
  • Featured
  • Active
Townhouse

4350 BUTTERSCOTCH CIR

  • 3
  • 3
  • 136 m²
avt
Daniel Dourado
$ 270,990