Active

$1,500,000

Características:
  • Quartos
  • 0 Banheiros
  • 0 m²
Visão Geral
  • ID: MFRT3399822
  • Quartos:
  • Banheiros: 0
  • Tamanho: 0 m²
Detalhes do Imóvel
Observações
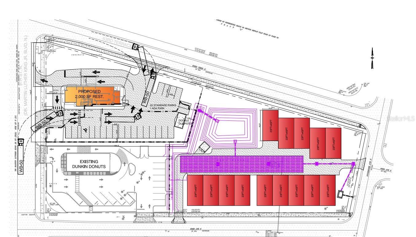
Sonho do investidor: Oportunidade de desenvolvimento Prime em São Petersburgo! Chamando todos os investidores visionários, desenvolvedores experientes e entusiastas da cidade! Esta oferta excepcional apresenta uma chance de ouro de moldar a paisagem da cidade com uma variedade de possibilidades. Zonado CCS-1, esses dois lotes, totalizando 0,917 acres, aguardam seu toque criativo. Situados no coração vibrante de São Petersburgo, essas parcelas possuem um local estratégico que se casa perfeitamente com a conveniência com o estilo de vida. Imagine isto: um notável Haven de 14 unidades previsto pela ARO Engineering, mostrando uma pegada cuidadosamente criada de 23x45 pés quadrados. Com dois pisos cuidadosamente projetados, abrangendo aproximadamente 2.070 pés quadrados de espaço de vida luxuoso, essas residências estão prontas para redefinir a elegância urbana. Como um toque adicional, a arquitetura de cada unidade antecipa uma garagem no térreo, elevando a conveniência e a funcionalidade. Embora o conceito de engenharia ARO seja um ponto de partida impressionante, é essencial observar que o design ainda está para embarcar em sua jornada formal de aprovação, permitindo amplo espaço para suas modificações e aprimoramentos pessoais. Além das fronteiras desse desenvolvimento promissor, um mundo de conveniência aguarda. Descubra a facilidade de acesso ao Aeroporto Internacional de Tampa, I-275, e à icônica ponte Gandy, fornecendo conectividade perfeita às regiões vizinhas. O fascínio do centro da cidade de São Petersburgo e das praias primitivas fica a apenas momentos de distância, convidando um estilo de vida que harmoniza o trabalho, o jogo e o relaxamento. Não deixe que essa oportunidade excepcional deslize pelos dedos. Mergulhe no coração da crescente história de crescimento de São Petersburgo e contribua para sua transformação dinâmica. Revise os anexos fornecidos para obter detalhes abrangentes sobre os dois lotes. Embora se acredita que todas as informações contidas sejam precisas, é aconselhável a verificação do comprador para garantir a confiança em seu investimento. Experimente a emoção de criar um novo capítulo na evolução de São Petersburgo - sua obra -prima aguarda!
Considerações Financeiras
Preço:
$1,500,000
Taxa de HOA:
N/D
Valor do Imposto:
$299.3
Preço por m²:
$53.81
Descrição Legal do Imposto:
Penelope Plat Lote 1 e Lila Thomas Plat
Características Exteriores
Tamanho do Lote:
27878
Características do Lote:
N/D
Beira-mar:
Não
Vagas de Estacionamento:
N/D
Estacionamento:
N/D
Telhado:
N/D
Piscina:
Não
Características da Piscina:
N/D
Características Interiores
Quartos:
Banheiros:
0
Aquecimento:
N/D
Resfriamento:
N/D
Eletrodomésticos:
N/D
Mobiliado:
Não
Andar:
N/D
Níveis:
N/D
Características Adicionais
Subtipo de Imóvel:
N/D
Estilo:
N/D
Ano de Construção:
N/D
Tipo de Construção:
N/D
Vagas na Garagem:
Não
Vagas Cobertas:
N/D
Orientação da Fachada:
N/D
Animais Permitidos:
Não
Condição Especial:
Nenhum
Características Adicionais:
N/D
Características Adicionais 2:
N/D
Mapa
  • Endereço
    DR MARTIN LUTHER KING JR ST N
Fale com um profissional
Por Que Nos Escolher?
  • Comunicação e Transparência
  • Negociação Qualificada
  • Rede Profissional Robusta
  • Suporte Pós-Venda
Propriedades em Destaque

Imóveis relacionados

img
  • Featured
  • Active

5 DOCTOR'S PATH

  • 0
  • 0 m²
avt
Daniel Dourado
$ 325,000
img
  • Featured
  • Active

4226 DOWNEAST LN

  • 0
  • 0 m²
avt
Daniel Dourado
$ 11,800,000
img
  • Featured
  • Active

1425 DOUGLAS RD

  • 0
  • 0 m²
avt
Daniel Dourado
$ 245,000
img
  • Featured
  • Active

11031 ARROWTREE BLVD

  • 0
  • 0 m²
avt
Daniel Dourado
$ 265,000
avt
Daniel Dourado
$ 999,000
img
  • Featured
  • Active

15071 E COLONIAL DR

  • 0
  • 0 m²
avt
Daniel Dourado
$ 850,000
img
  • Featured
  • Active

2233 HICKS RD

  • 0
  • 0 m²
avt
Daniel Dourado
$ 320,000
img
  • Featured
  • Active

2205 HICKS RD

  • 0
  • 0 m²
avt
Daniel Dourado
$ 628,320
img
  • Featured
  • Active

2046 ALAMEDA AVE

  • 0
  • 0 m²
avt
Daniel Dourado
$ 5,500,000
img
  • Featured
  • Active

9511 RIVER COVE DR

  • 0
  • 0 m²
avt
Daniel Dourado
$ 895,000
img
  • Featured
  • Active

3473 HAMILTON AVE

  • 0
  • 0 m²
avt
Daniel Dourado
$ 979,900
img
  • Featured
  • Active

3780 JOHN ANDERSON DR

  • 0
  • 0 m²
avt
Daniel Dourado
$ 699,000