Sold

$875,995

Características:
  • 5 Quartos
  • 4 Banheiros
  • 293 m²
Visão Geral
  • ID: MFRO6272395
  • Quartos: 5
  • Banheiros: 4
  • Tamanho: 293 m²
Detalhes do Imóvel
Observações
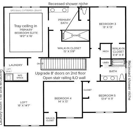
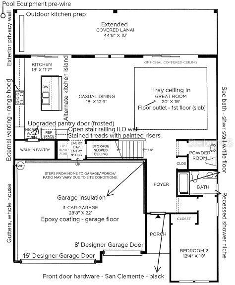
Em construção. Convidando a elevação do Coastal Cottage, esta casa possui cinco quartos, três banheiros completos, um lavabo e garagem para três carros. A cozinha gourmet foi totalmente atualizada com armários de design duplo, ilha em cascata de quartzo e eletrodomésticos atualizados. O quarto principal está localizado no segundo andar, com um banheiro deslumbrante, incluindo acabamentos premium e uma banheira vitoriana. O loft no segundo andar dispõe de uma varanda coberta com grades em estilo costeiro. A tranquila vista arborizada do quintal é o cenário perfeito para criar lembranças felizes em reuniões de família e amigos. Ligue hoje para um tour privado.
Considerações Financeiras
Preço:
$875,995
Taxa de HOA:
181
Valor do Imposto:
$2810
Preço por m²:
$257.59
Descrição Legal do Imposto:
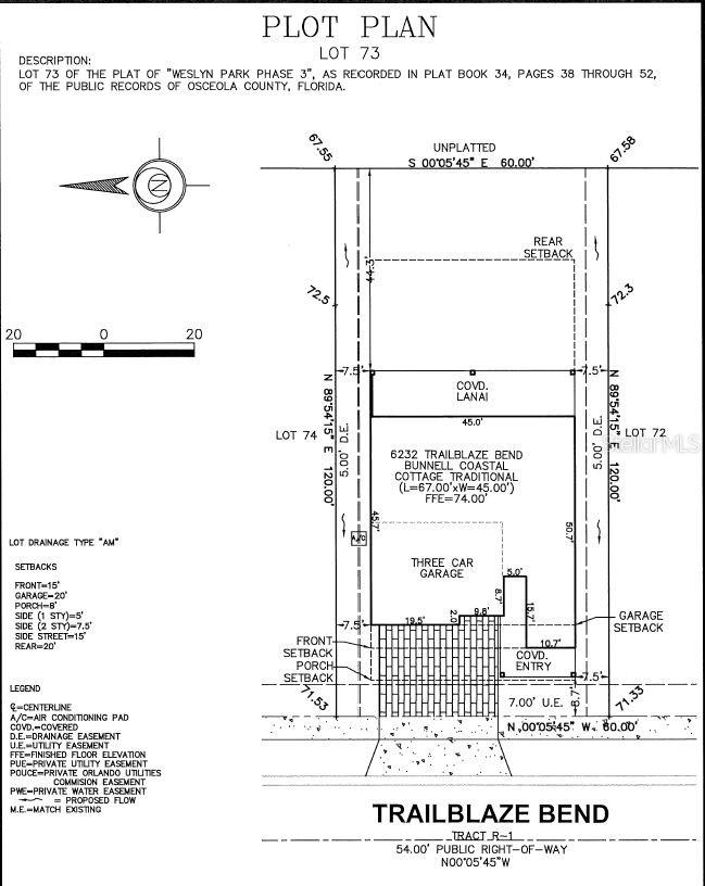
Weslyn Park Fase 2 Plat Livro 32 páginas 72-94 Lote 73
Características Exteriores
Tamanho do Lote:
8276
Características do Lote:
Limpo, paisagístico, calçada, pavimentado
Beira-mar:
Não
Vagas de Estacionamento:
N/D
Estacionamento:
N/D
Telhado:
Telha
Piscina:
Não
Características da Piscina:
N/D
Características Interiores
Quartos:
5
Banheiros:
4
Aquecimento:
Central, Elétrica
Resfriamento:
Central Aérea
Eletrodomésticos:
Forno embutido, Cooktop, Máquina de lavar louça, Descarte, Esquentador elétrico, Microondas, Exaustor
Mobiliado:
Não
Andar:
Tapete, Azulejo Cerâmico
Níveis:
Dois
Características Adicionais
Subtipo de Imóvel:
Residência Unifamiliar
Estilo:
N/D
Ano de Construção:
2025
Tipo de Construção:
Quadro
Vagas na Garagem:
Sim
Vagas Cobertas:
N/D
Orientação da Fachada:
Oeste
Animais Permitidos:
Sim
Condição Especial:
Nenhum
Características Adicionais:
Calçada, portas de correr
Características Adicionais 2:
N/D
Mapa
  • Endereço
    6232 TRAILBLAZE BND
Fale com um profissional
Por Que Nos Escolher?
  • Comunicação e Transparência
  • Negociação Qualificada
  • Rede Profissional Robusta
  • Suporte Pós-Venda
Propriedades em Destaque

Imóveis relacionados

avt
Daniel Dourado
$ 300,000
avt
Daniel Dourado
$ 254,900
avt
Daniel Dourado
$ 835,000
avt
Daniel Dourado
$ 350,000
avt
Daniel Dourado
$ 332,900
avt
Daniel Dourado
$ 340,000